Gå till huvudinnehåll

Uppsala Boländerna

Danmarksgatan 24

Lager/Logistik

Yta

315 kvm

Tillträdesdatum

Enl. ök.

Våningsplan

0

Enkel lagerlokal i markplan

En enkel lagerlokal på 315 kvm mitt i industriområdet Boländerna, beläget i markplan i sutteräng med fönster åt ett håll. Lokalen kan anpassas efetr behov. Det finns inlastningsport för enkel inlastning och markparkering i anslutning till lokalen.

Enkel standard.
Takhöjd ca 3 m.
3fas-uttag inne i lokalen.
Lastport i markplan

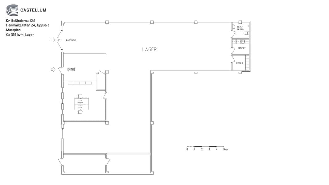
Planlösning

Lokalen har en kontorsdel med plats för tre arbetsplatser, en lageryta med en takhöjd på cirka 3 meter samt wc, omklädningsrum och pentry. Betonggolv i lagerdel och en trött linoleum i kontorsdelen. Entrédörr och mindre lastport i markplan, fönster ut mot parkeringen.
Ytskikt och allmänbelysning anpassas utifrån behov.
Pentry, wc och omklädningsrum ligger ett trapsteg upp, tillgänglighetsanpassas vid behov med ramp.

Området

Boländerna är ett välkänt expansivt industri- och volymhandelsområde med flera life-science-bolag, lättare industriverksamheter, stora butikskedjor, varuhus och livsmedelsbutiker.
Det finns även inslag av grömområden med promenadstråk genom Bolandsparken som leder till ett väl tilltaget utegym längs med Fålhagsleden.

Kommunikationer

Fastigheten är lättillgänglig genom sin närhet till E4 som ligger några minuter bort. Uppsala resecentrum ligger mindre än 2 kilometer bort vilket ger möjligheten att cykla, promenera eller att enkelt ta stadsbussen till fastigheten. Linje 11 med hållplats Danmarksgatan är närmaste busshållplats.

Parkering

Markparkering intill byggnaden

Service

Livsmedelsbutiker, resturanger, caféer, gym, shopping och grönområden är ett axplock av vad som finns att nyttja i närheten av fastigheten. Hunddagis ligger på adressen intill, Danmarksgatan 22.

Fastigheten

Fastigheten är strategiskt belägen i det expansiva Boländerna,

Byggnaden är Uppsalas enda byggnad ritad av Ralph Erskine, den ritades till livsmedelsgrossisten L E Andersson och användes sedan av Banankompaniet och Dagab. Största hyresgästen idag är välkända Andersson & Tillman, producent av olika charketurier med närproducerade råvaror.

  • Lätttillgänglig i markplan
  • Rymlig och flexibel lokal
  • Strategiskt belägen

Faciliteter i fastigheten

Lastport Parkering

Service i området

Buss Parkering Restaurang Shopping Gym

Energi & hållbarhet

  • Certifieringar: BREEAM In-Use, Good
  • Total energianvändning (2025): 8 kWh/m²
  • Klimatpåverkan: 10,23 kg CO₂e/m² (platsbaserad)

Andra hyresgäster i fastigheten

Andersson & Tillman AB - UPPSALA STADSBUDSKONTOR Aktiebolag - Scienta Scientific AB - Citymail Sweden AB - Dhinox AB - Biotage Sweden AB - LivingIn Uppsala AB - Klas Hunter VVS AB

Karta

Dokument

Kontaktperson

Kommersiell Förvaltare

Maria Hydling

Fråga oss!

Nyfiken på den här lokalen? Eller behöver du hjälp att hitta rätt lokal för din verksamhet? Oavsett om du vet exakt vad du söker eller om du behöver rådgivning, så finns vi här och hjälper till.

Vi ser fram emot att höra av dig.

Intresseanmälan

Kontaktinformation

All behandling av personuppgifter sker i enlighet med dataskyddsförordningen och annan dataskyddslagstiftning. Läs mer om GDPR

Ett eget husteam ingår i hyran

Som hyresgäst hos oss får ni ett lokalt husteam som ser till att ni trivs och att allt fungerar som det ska. Vi hjälper till med allt från fastighetsskötsel och energioptimering till skyltning och parkering. Ingen fråga är för stor eller för liten. Och skulle era behov förändras brukar vi alltid kunna erbjuda en lösning, vad det än gäller. Varmt välkommen till en värd bortom det förväntade.

Liknande lokaler i Uppsala