Kontor i attraktivt läge i Boländerna
Denna ljusa och yteffektiva lokal är belägen i markplan på trevliga Fålhagsleden 55. Lokalen inrymmer både kontorlandskap, rum för möte och enskilt arbete, pentry, omklädningsrum samt lättare lager.
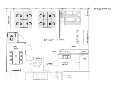
Planlösning
Kontorslandskapet har plats för 6-8 arbetsplatser, de två kontorsrummen har använts för både möte och enskilt arbete. Förrådsytan kan användas för lättare lager men även byggas om till samtalsrum med mindre förråd. I omklädningsrummet finns en wc och en hwc med dusch.
Området
Främre Boländerna är ett expansivt område som nu omvandlas från industri till kontorsområde.
Kommunikationer
Lättillgängligt läge, nära Tycho Hedéns väg och E4, busshållplats intill fastigheten för linje 6,10 och 11, ca 1 km från Resecentrum.
Parkering
Fri parkering för anställda, besöksparkering med p-skiva. Det finns 6 st öppna platser för elbilsladdnig.
Service
Inom promenadavstånd finns ett bra utbud av lunchrestauranger och motionsmöjligheter med både fina promenadstråk, padelbana i Bolandsparken och ett nybyggt utegym i Fålhagsparken. Närmast på Bolandsgatan ligger blandade butiker med flera seconhandbutiker, en mindre saluhall och butik för designmöbler. Hunddagis finns i närområdet på Danmarksgatan 20.
Fastigheten
Strategiskt belägen i Boländerna med goda kommunikationer för bil och buss med endast en kvarts promenad från Resecentrum. Fastigheten ligger fritt belägen med en trevlig utsikt mot flera väderstreck.
- Attraktivt läge i Boländerna
- Inflyttningsklart
- Markplan
Faciliteter i fastigheten
Service i området
Energi & hållbarhet
- Hållbarhetscertifiering: Miljöbyggnad nyproduktion, Guld
- Total energianvändning: 65 kWh / m², år
- Energi CO2-påverkan: 0,2 kg CO₂ / m², år
Andra hyresgäster i fastigheten
Karta
Dokument
Planritning
Broschyr
Kontaktperson

Nyfiken på den här lokalen? Eller behöver du hjälp att hitta rätt lokal för din verksamhet? Oavsett om du vet exakt vad du söker eller om du behöver rådgivning, så finns vi här och hjälper till.
Vi ser fram emot att höra av dig.