Gå till huvudinnehåll

Uppsala Boländerna

Fålhagsleden 57 A

Kontor

Yta

125 kvm

Arbetsplatser

9 st

Så räknar vi antal arbetsplatser

Detta spann är en uppskattning. Det finns flera faktorer som påverkar hur många arbetsplatser som kan rymmas i en lokal. Inte bara storleken på själva lokalen utan även hur den disponeras. Exempelvis kräver en lokal med många enskilda kontor mer plats än öppen planlösning. Andra begränsningar kan vara tillgången på luft och kyla, eller utrymningsvägar.

Tillträdesdatum

Enl. ök.

Våningsplan

1

Liten kontorslokal med stora möjligheter i lättillgängligt läge

Välkommen till en ljus och rymlig kontorslokal i markplan med generös takhöjd och stor potential. Lokalen nås via trapphuset och har nyligen delats, vilket innebär att den nu anpassas för ny hyresgäst. Här ges en unik möjlighet att vara med och utforma en optimal planlösning helt efter er verksamhets behov – från rumsindelning till val av nya, moderna ytskikt.

För den som önskar finns även möjlighet att ta upp en dörr mot baksidan och skapa direkt access till en liten uteplats intill fasaden – perfekt för en paus i solen eller informella möten utomhus.

Läget är mycket lättillgängligt med goda kommunikationer både med buss och bil, och det tar endast cirka 10–15 minuter att promenera till Uppsala centralstation. I direkt anslutning till fastigheten finns dessutom en uppskattad motionsslinga och ett utegym – idealiskt för en aktiv arbetsdag.

En perfekt lokal för företag som söker något att sätta sin egen prägel på i ett attraktivt och lättillgängligt läge.

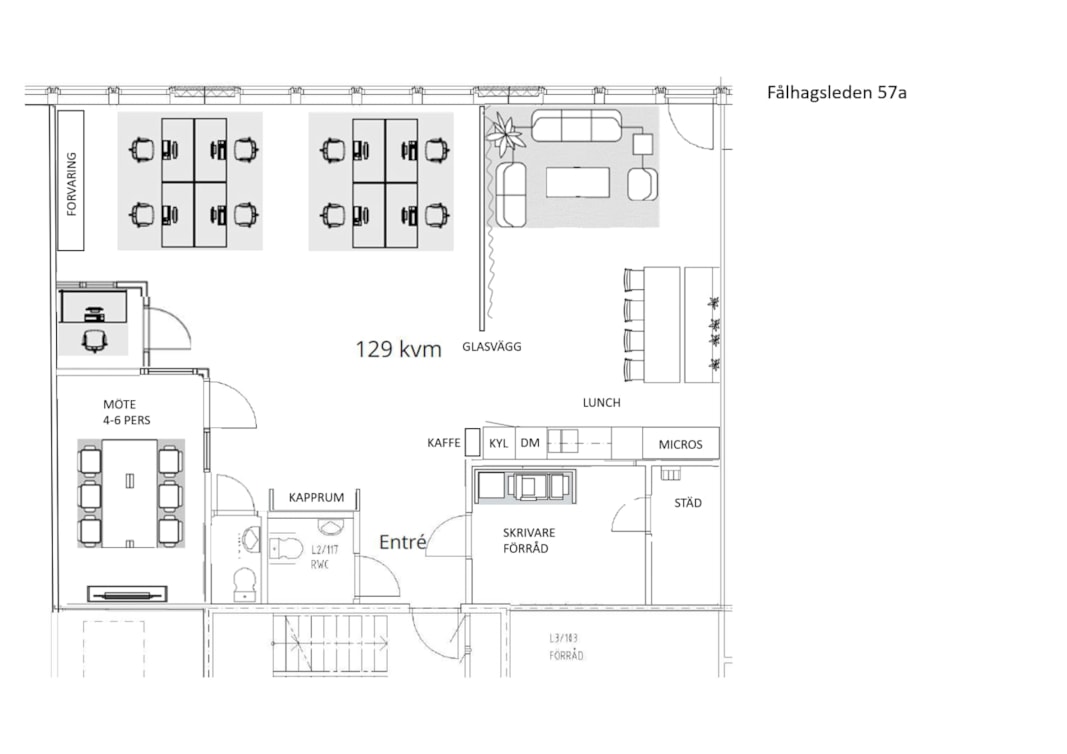
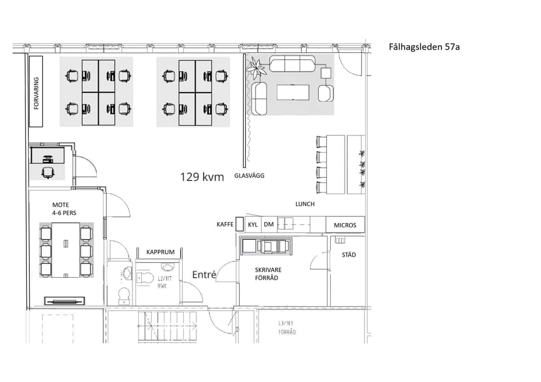
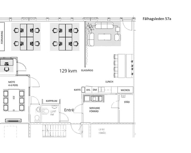
Planlösning

Lokalen kommer att anpassas i samråd med tillträdande hyresgäst vilket ger stora möjligheter att skapa den optimala lösningen för just er verksamhet.

Området

Fålhagsleden är perfekt för dig som vill ha ett semicentralt läge men med god parkeringsmöjligheter i anslutning till lokalen. I en grön miljö har du nära till det mesta och om du vill nyttja lunchen till motion så finns en jättefin motionsslinga samt utegym på andra sidan Fålhagsleden.

Kommunikationer

Lättillgängligt läge, nära Tycho Hedéns väg och E4, busshållplats intill fastigheten för linje 6,10 och 11, ca 1 km från Resecentrum.

Parkering

Fri parkering för anställda, besöksparkering med p-skiva. Det finns 6 st öppna platser för elbilsladdning

Service

Inom promenadavstånd finns ett bra utbud av lunchrestauranger och motionsmöjligheter med både fina promenadstråk, padelbana i Bolandsparken ett nybyggt utegym i Fålhagsparken samt boulebana. Närmast på Bolandsgatan ligger blandade butiker med flera seconhandbutiker, butik för designmöbler mm. Hunddagis finns i närområdet på Danmarksgatan 20.

Fastigheten

Strategiskt belägen i Boländerna med goda kommunikationer för bil och buss med endast en kvarts promenad från Resecentrum. Fastigheten ligger fritt belägen med en trevlig utsikt mot flera väderstreck.

  • Gott om parkering
  • Attraktivt läge i Boländerna
  • Anpassningsbar lokal

Faciliteter i fastigheten

Omklädningsrum Parkering

Service i området

Buss Parkering Utegym Restaurang Café Grönområde

Energi & hållbarhet

  • Certifieringar: Miljöbyggnad nyproduktion, Guld
  • Total energianvändning (2025): 21 kWh/m²
  • Klimatpåverkan: 7,31 kg CO₂e/m² (platsbaserad)

Andra hyresgäster i fastigheten

NCC Sverige AB - Hälsoäventyret - Siemens - Optinova Nordic AB - Wefixit Svenska AB - Avanta Ekonomitjänster AB - Borrtjänst Mälardalen Aktiebolag - Aveio AV-Teknik AB - Twoday - Kiwa Sweden AB - Sweax AB - Projektidé i Uppsala Aktiebolag - MK Collection AB - Sesab - QD Sverige AB - Götenehus AB - Tele2 Sverige AB - Kiwa Sweden AB

Karta

Dokument

Kontaktperson

Kommersiell Förvaltare

Maria Hydling

Fråga oss!

Nyfiken på den här lokalen? Eller behöver du hjälp att hitta rätt lokal för din verksamhet? Oavsett om du vet exakt vad du söker eller om du behöver rådgivning, så finns vi här och hjälper till.

Vi ser fram emot att höra av dig.

Intresseanmälan

Kontaktinformation

All behandling av personuppgifter sker i enlighet med dataskyddsförordningen och annan dataskyddslagstiftning. Läs mer om GDPR

Ett eget husteam ingår i hyran

Som hyresgäst hos oss får ni ett lokalt husteam som ser till att ni trivs och att allt fungerar som det ska. Vi hjälper till med allt från fastighetsskötsel och energioptimering till skyltning och parkering. Ingen fråga är för stor eller för liten. Och skulle era behov förändras brukar vi alltid kunna erbjuda en lösning, vad det än gäller. Varmt välkommen till en värd bortom det förväntade.

Liknande lokaler i Uppsala