Gå till huvudinnehåll

Uppsala City

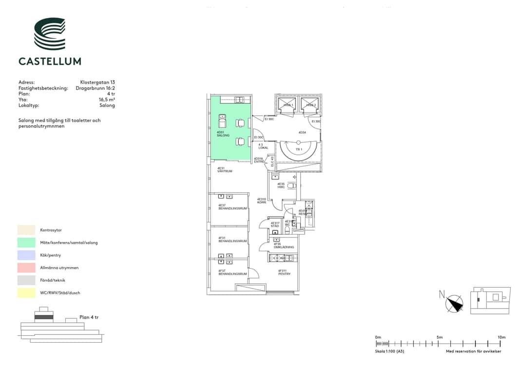
Klostergatan 13

Kontor

Yta

16 kvm

Tillträdesdatum

Enl. ök.

Våningsplan

4

Mindre lokal i centrala Uppsala

Nu finns möjligheten för den mindre verksamheten att kunna etablera sig i centrala Uppsala.
Här delar man väntrum och pentry med andra verksamheter men har ett avskilt rum att bedriva sin verksamhet i.

Området

I hjärtat av Uppsala centrum ligger Dragarbrunn, ett område känt för sin kommersiella aktivitet och liv och rörelse. Här, i vad som en gång var S:t Pers församling, hittar man en koncentration av handel och kultur. Denna del av staden har historiskt varit stadens kommersiella hjärta, med rötter som sträcker sig tillbaka till medeltiden då staden var känd som Östra Aros.

Kommunikationer

Det är enkelt att ta sig hit, oavsett varifrån du kommer. Om du går från Uppsala C är du här på bara några minuter. Närmsta busshållplats är inom synhåll från entrén. Behöver du bilen är det snabbt och enkelt att ta sig hit då det finns parkeringsgarage med laddplatser i huset.
Vi vill också slå ett slag för cykeln som du smidigt parkerar i det låsta cykelrummet i garaget.

Parkering

Plats i parkeringsgarage finns att hyra

Service

Här har ni nära till allt city kan erbjuda i form av service och upplevelser. Allra närmast har vi nya Filmstaden Luxe och S:t Per gallerian med matbutik, och apotek. Lite längre bort på Dragarbrunnsgatan finns även Forsa Hembageri med fantastiska bröd och konditorivaror. Actic och Fitness 24/7 är bara ett par kvarter bort liksom Stora Torget.
Vad gäller restauranger har ni näst intill obegränsat med valmöjligheter. Till Centralstationen är det bara drygt 500 meter att gå.

Fastigheten

Dragarbrunnstorg är perfekt för er som letar efter ett centralt läge, bra med parkeringsmöjligheter och närhet till all tänkbar service. Flera restauranger finns i huset, Plock, Kött Kött & Bar och Frans bistro. Har man behov av lite större mötesytor ibland och inte vill ha dessa i egna lokalen så har man en uppsjö av alternativ precis om hörnet. Hotell Gillet rakt över torget, nya Filmstaden Luxe precis intill.

  • Central
  • Tillgänglig
  • Klar för inflytt

Faciliteter i fastigheten

Cykelrum Parkering Elbilsladdning Skyltläge Garage

Service i området

Resecentrum Buss Parkering Restaurang Café Hotell Tåg Shopping Elbilsladdning Gym

Energi & hållbarhet

  • Certifieringar: BREEAM In-Use, Good
  • Total energianvändning (2025): 49 kWh/m²
  • Klimatpåverkan: 13,84 kg CO₂e/m² (platsbaserad)

Andra hyresgäster i fastigheten

Kött Kök & Bar - Frans Bistro - Plock - PQR - Löplabbetgruppen AB - Stockholms Handelskammares Service AB - Vinnergi AB - Energikontoret i Mälardalen AB - Newhouse - Perkem Kemtvätt i Uppsala AB - Statistikakademin AB - Löplabbetgruppen AB - Gladare Fötter - Petras Fotvård - Fotpappan - Cillas fotvård - E.ON Drive AB

Karta

Dokument

Kontaktperson

Kommersiell Förvaltare

Gustav Sköld

Fråga oss!

Nyfiken på den här lokalen? Eller behöver du hjälp att hitta rätt lokal för din verksamhet? Oavsett om du vet exakt vad du söker eller om du behöver rådgivning, så finns vi här och hjälper till.

Vi ser fram emot att höra av dig.

Intresseanmälan

Kontaktinformation

All behandling av personuppgifter sker i enlighet med dataskyddsförordningen och annan dataskyddslagstiftning. Läs mer om GDPR

Liknande lokaler i Uppsala