Gå till huvudinnehåll

Göteborg Högsbo/Sisjön

E A Rosengrens Gata 15

Kontor Lager/Logistik

Hyresindikation

44 000 kr/mån

Detaljerad hyresinformation

Hyresindikation i befintligt skick:
Kallhyra: 1550 kr/kvm
Driftkostnad: 181 kr/kvm
Fastighetskatt: 41 kr/kvm
Moms tillkommer med 25%

Yta

340 kvm

Arbetsplatser

20 st

Så räknar vi antal arbetsplatser

Detta spann är en uppskattning. Det finns flera faktorer som påverkar hur många arbetsplatser som kan rymmas i en lokal. Inte bara storleken på själva lokalen utan även hur den disponeras. Exempelvis kräver en lokal med många enskilda kontor mer plats än öppen planlösning. Andra begränsningar kan vara tillgången på luft och kyla, eller utrymningsvägar.

Tillträdesdatum

Enl. ök.

Våningsplan

1

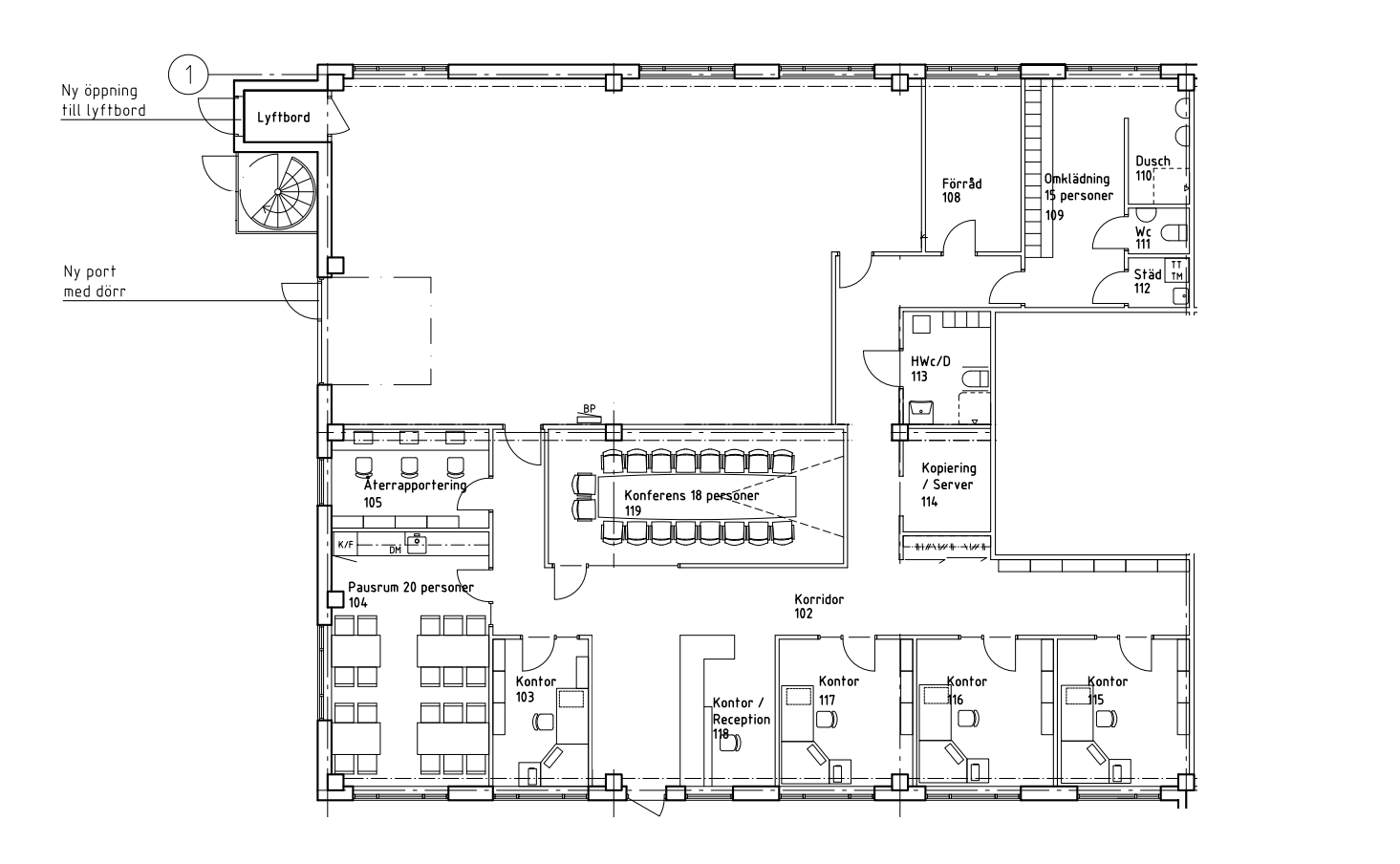
Kombinerad kontors- och lagerlokal i markplan!

Nu finns möjlighet att hyra en välplanerad och funktionell lokal om totalt 340 kvm i markplan på attraktiva E A Rosengrens gata 15. Lokalen lämpar sig väl för verksamheter som söker en kombination av kontor, lager och god logistik.

Lokalen består av 225 kvm kontor och 115 kvm lager med smidig access via markport. Kontorsdelen har egen entré med plats för reception och en effektiv planlösning som omfattar sex kontorsrum, konferensrum för upp till 18 personer, pausrum med pentry, kopieringsrum, HWC samt ett rymligt omklädningsrum med WC och dusch, anpassat för cirka 15 personer.

Ytskikten är ljusa och trivsamma med plastmatta i korridorer, nålfiltsmatta i kontor och konferensrum samt betonggolv i lagret, vilket ger en praktisk och lättskött miljö. Lagerdelen om 115 kvm nås via egen markport, vilket underlättar in- och utleveranser.

Lokalen erbjuder en flexibel lösning för företag som värdesätter närhet mellan administration och lager/logistik i ett lättillgängligt läge.

Välkommen att kontakta oss för mer info och visning!

Planlösning

Lokalen omfattar totalt 340 kvm, fördelat på 225 kvm kontor och 115 kvm lager. Kontorsdelen har egen entré med plats för reception och består av sex kontorsrum, konferensrum för ca 18 personer, pausrum med pentry, kopieringsrum, HWC samt omklädningsrum med WC och dusch anpassat för cirka 15 personer. Lagerdelen är belägen i markplan med egen markport, vilket ger smidig logistik och enkel varuhantering.

Området

Endast några minuters bilavstånd från Linnéplatsen i Göteborg centrum. Fastigheten ligger precis vid leden, dvs bästa skyltläget!!

Kommunikationer

Bra allmänna kommunikationer med busshållplatser inom ett par minuters promenadavstånd.

Fastigheten

Fastigheten är belägen i Högsbo industriområde som ligger i västra Göteborg.

Fastigheten är bebyggd med en industri-/kontorsbyggnad i två plan. Gården består dels av gräsmattor dels av asfalterade ytor med parkeringsplatser.

Inom området finns tillgång till all typ av närservice i form av banker, post, lunchrestauranger, dagligvaruhandel och detaljister. Köpcentret 421 och Sisjö handelsområde ligger inom gångavstånd. Göteborg centrum ligger inom mkt kort bil/cykelavstånd.

  • Skyltläge ut mot Dag Hammarskjöldsleden
  • Närhet till parkering och restaurang
  • Yteffektiv kontors- och lagerlokal

Faciliteter i fastigheten

Lastport Parkering Skyltläge

Service i området

Buss Parkering Restaurang

Energi & hållbarhet

  • Certifieringar: BREEAM In-Use, Good
  • Total energianvändning (2025): 58 kWh/m²
  • Klimatpåverkan: 0,16 kg CO₂e/m² (platsbaserad)

Andra hyresgäster i fastigheten

Kylkontroll Göteborg Aktiebolag - Blinkentools AB - Time it tid - och installationsamordnin - Carlsberg Sverige Aktiebolag - Edi solutions AB

Karta

Dokument

Kontaktperson

Uthyrare

Ylva Brodin

Fråga oss!

Nyfiken på den här lokalen? Eller behöver du hjälp att hitta rätt lokal för din verksamhet? Oavsett om du vet exakt vad du söker eller om du behöver rådgivning, så finns vi här och hjälper till.

Vi ser fram emot att höra av dig.

Intresseanmälan

Kontaktinformation

All behandling av personuppgifter sker i enlighet med dataskyddsförordningen och annan dataskyddslagstiftning. Läs mer om GDPR

Ett eget husteam ingår i hyran

Som hyresgäst hos oss får ni ett lokalt husteam som ser till att ni trivs och att allt fungerar som det ska. Vi hjälper till med allt från fastighetsskötsel och energioptimering till skyltning och parkering. Ingen fråga är för stor eller för liten. Och skulle era behov förändras brukar vi alltid kunna erbjuda en lösning, vad det än gäller. Varmt välkommen till en värd bortom det förväntade.

Liknande lokaler i Göteborg