Gå till huvudinnehåll

Stockholm Västberga

Västbergavägen 25

Kontor

Yta

164 kvm

Arbetsplatser

8 - 11 st

Så räknar vi antal arbetsplatser

Detta spann är en uppskattning. Det finns flera faktorer som påverkar hur många arbetsplatser som kan rymmas i en lokal. Inte bara storleken på själva lokalen utan även hur den disponeras. Exempelvis kräver en lokal med många enskilda kontor mer plats än öppen planlösning. Andra begränsningar kan vara tillgången på luft och kyla, eller utrymningsvägar.

Tillträdesdatum

Enl. ök.

Våningsplan

2

Välplanerad kontorslokal med närhet till service och E4/E20

Välkommen till en ljus och välplanerad lokal om cirka 164 kvm med en genomtänkt och flexibel planlösning. Här möts du av ett öppet kontorslandskap, separata mötesrum samt en generös konferensdel som skapar goda förutsättningar för både samarbete och avskilt arbete.

Läget erbjuder ett brett serviceutbud och goda kommunikationer. I närheten finns Västberga Handel med ett varierat utbud av handel och service. För dig som pendlar med bil nås både E4 och E20 snabbt via smidig påfart. I fastigheten finns restaurangen Spiskroken som serverar varierade luncher med salladsbuffé och erbjuder en trevlig takterrass där ni kan avnjuta er lunch.

Välkommen att boka visning!

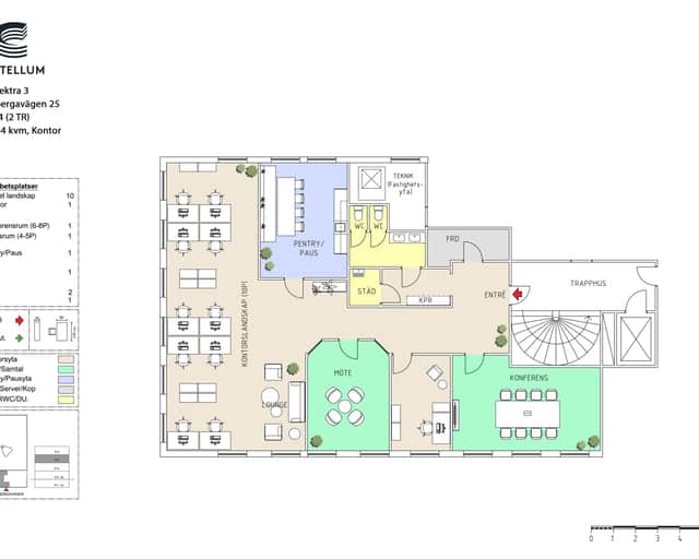
Planlösning

Planlösningen är effektiv och tydligt disponerad med en öppen arbetsyta som kompletteras av separata mötesrum och en större konferensdel. I anslutning finns pentry och pausyta som skapar en naturlig samlingspunkt i lokalen.

Området

Fastigheten är belägen i Västberga industriområde, ett av Stockholms centrala industriområde som ligger öster om E4/E20 vid Stockholms södra infart och södra Stockholms viktigaste godsterminal.

I området finns Västberga Handel som inrymmer Stora Coop, Rusta och Cykloteket samt att det i industriområdet finns flertalet lunchrestauranger.

Kommunikationer

Denna fastighet är belägen i Västberga Industriområde som lätt nås till och från E4/E20.
En kort promenad från fastigheten finner du busshållplats med ett flertal bussar. Närmaste tunnelbanestation är Telefonplan som ligger ca 1 km från fastigheten.

Parkering

Här finns det parkeringsplatser att hyra.

Fastigheten

Fastigheten uppfördes 1945 och förgylls av historiska originaldetaljer.
Huset består av en stor och välplanerad tegelbyggnad som innehåller kontor, industrilokaler samt lager. Det finns även en tillbyggnad bestående av lageryta.

  • Västbergas bästa läge!
  • Direkt anslutning till E4/E20
  • Nära Västberga Handel

Faciliteter i fastigheten

Parkering Skyltläge Restaurang

Service i området

Buss Parkering Restaurang Shopping Gym Grönområde T-bana

Energi & hållbarhet

  • Total energianvändning (2025): 5 kWh/m²
  • Klimatpåverkan: 2,76 kg CO₂e/m² (platsbaserad)

Andra hyresgäster i fastigheten

Forté Sweden AB - Elektroskandia Sverige AB - Elektra 3 - JOBmeal - IT Underhåll Stockholm AB - Spiskroken - RUGU BYGG AB - Cbeco AB - Jansson Entreprenad i Linköping AB - FRONT RK AB - Siljeströms Projektledning AB - MTM Group AB - Onex Lab AB - PJBD - Peter Klingström Måleri Aktiebolag - Ällmora Bygg o Kakel AB - Martin Aruste

Karta

Dokument

Kontaktperson

Uthyrare

Mia Idre

Fråga oss!

Nyfiken på den här lokalen? Eller behöver du hjälp att hitta rätt lokal för din verksamhet? Oavsett om du vet exakt vad du söker eller om du behöver rådgivning, så finns vi här och hjälper till.

Vi ser fram emot att höra av dig.

Intresseanmälan

Kontaktinformation

All behandling av personuppgifter sker i enlighet med dataskyddsförordningen och annan dataskyddslagstiftning. Läs mer om GDPR

Liknande lokaler i Stockholm