Gå till huvudinnehåll

Kungsbacka Varla

Energigatan 21

Industri Kontor Lager/Logistik

Yta

2 263 kvm

Arbetsplatser

5 - 30 st

Så räknar vi antal arbetsplatser

Detta spann är en uppskattning. Det finns flera faktorer som påverkar hur många arbetsplatser som kan rymmas i en lokal. Inte bara storleken på själva lokalen utan även hur den disponeras. Exempelvis kräver en lokal med många enskilda kontor mer plats än öppen planlösning. Andra begränsningar kan vara tillgången på luft och kyla, eller utrymningsvägar.

Tillträdesdatum

2027-07-01

Våningsplan

0

Lager- och logistikfastighet i populära Varla

Ledig lager- och logistikfastighet i populära Varla industriområde. Stora öppna ytor med en takhöjd på 7 meter. Det finns kontorsrum för avskilt arbete, personalutrymme och omklädningsrum. Smidig in- och utlastning via lastbrygga med portar och portar i markplan. Lättillgängligt nära E6:an.

All tänkbar service i form av butiker, lunchrestauranger och caféer finns i närheten på Kungsmässan och Hede Outlet.

Välkommen att kontakta oss för mer info och visning!

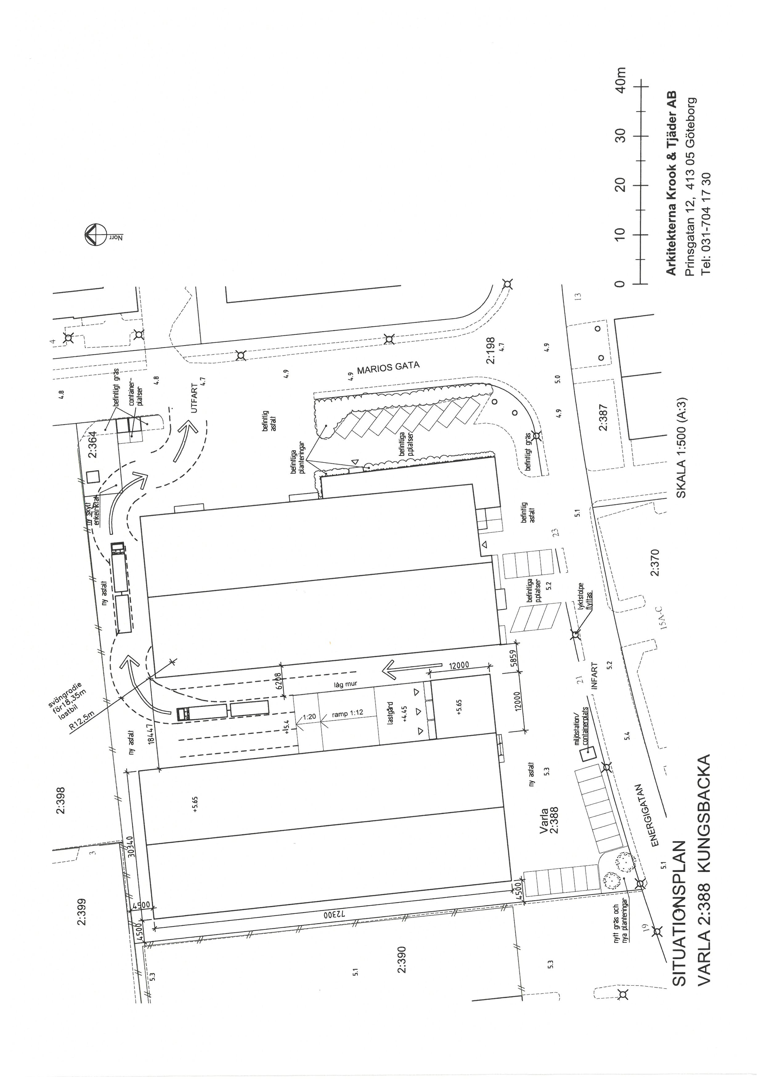
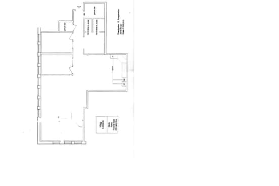
Planlösning

Stor öppen lageryta med 7 meter i takhöjd samt personalutrymmen. Portar i markplan samt lastbrygga.

Området

I norra Kungsbacka, ca två mil söder om Göteborg, ligger norra Varla industriområde. Ett naturnära men ändå centralt industriområde med shopping och kommunikationer i närheten.
I Kungsbacka har flera nya och välordnade kontors- och industriområden växt fram på senare år och nya planeras. Näringslivet domineras av små och medelstora företag. Tillväxten i kommun har varit stark sedan 1970-talet.

Kommunikationer

Buss kör i närområdet och det finns bra kollektivtrafik norrut mot Göteborg och Mölndal i form av pendeltåg och expressbuss. Söderut mot Varberg, Falkenberg och Halmstad går tåg varje timma.
Påfarten till E6 ligger två minuts färd bort och det är enkelt att når kontinenten via färjorna i Göteborg och Varberg. Inom 30 minuter är man på Landvetter Flygplats eller Göteborgs centrala delar.

Service

I närheten ligger Hede Fashion Outlet och fler restauranger finns att välja på. I Kungsbacka innerstad , som ligger nära, finns gott om caféer och restauranger likaså i Kungsmässan köpcenter finns all tänkbar service med många butiker, systembolag, bank, apotek, mataffärer.
Parkeringar finns i anslutning till fastigheten.
Havet, badstränderna och de många naturreservaten ger möjligheter till fina upplevelser på. Gottskär och Särö är klassiska seglarmiljöer.
Kungsbacka Innerstad, med anor från medeltiden, präglas av träbebyggelse från förra sekelskiftet.

  • Lastbrygga
  • Portar i markplan
  • Lättillgängligt via E6:an

Faciliteter i fastigheten

Omklädningsrum Lastkaj Parkering

Service i området

Buss Parkering Grönområde

Energi & hållbarhet

  • Certifieringar: BREEAM In-Use, Good
  • Klimatpåverkan: 0,06 kg CO₂e/m² (platsbaserad)

Andra hyresgäster i fastigheten

Coloplast Aktiebolag - Kungsbacka Kommun - Ergoseat i Sverige AB

Karta

Dokument

Kontaktperson

Uthyrare

Mathias Grahn

Fråga oss!

Nyfiken på den här lokalen? Eller behöver du hjälp att hitta rätt lokal för din verksamhet? Oavsett om du vet exakt vad du söker eller om du behöver rådgivning, så finns vi här och hjälper till.

Vi ser fram emot att höra av dig.

Intresseanmälan

Kontaktinformation

All behandling av personuppgifter sker i enlighet med dataskyddsförordningen och annan dataskyddslagstiftning. Läs mer om GDPR

Liknande lokaler i Kungsbacka