Gå till huvudinnehåll

Stockholm Skärholmen

Ekholmsvägen 36

Lager/Logistik

Yta

276 kvm

Tillträdesdatum

2028-12-01

Effektiv lager- och kontorslokal med lastkaj nära E4/E20

Nu finns möjlighet att hyra en funktionell lager- och kontorslokal intill Skärholmen Centrum.

Lokalen erbjuder en välplanerad kombination av lager och kontor. Lagerdelen omfattar cirka 140 kvm med generös takhöjd om cirka 4,2 meter, vilket skapar goda förutsättningar för effektiv hantering och förvaring. I anslutning finns sluss, port samt lastkaj med lastbord som underlättar in- och utleveranser.

Till lokalen hör även en kontorsdel om cirka 69 kvm med plats för arbetsplatser och mötesrum – en praktisk lösning för verksamheter som vill samla administration och lager under samma tak.

Läget ger närhet till tunnelbana, ett brett serviceutbud samt smidig access till E4/E20. I fastigheten finns dessutom goda parkeringsmöjligheter.

Lokalen passar exempelvis för e-handel, serviceverksamhet, lättare logistik eller företag som söker en kombinerad lager- och kontorslösning i södra Stockholm.

Välkommen att kontakta oss för mer information eller för att boka visnin

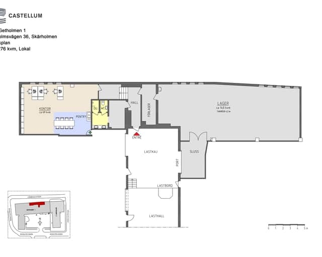
Planlösning

Lokalen är disponerad med en tydlig uppdelning mellan lager och kontor. Lagerdelen har generös takhöjd och är direkt kopplad till sluss, port och lastkaj för smidiga leveranser.

Området

Vår fastighet i Skärholmen angränsar nära till E4/E20 med en avfart direkt in till fastigheten. Resväg till centrala Stockholm med bil är cirka 15 minuter. Mycket bra kommunikationer med tunnelbana som ligger precis vid gallerian samt många busslinjer trafikerar området runt SKHLM. Regionen kring Skärholmen är ett mycket starkt läge och byggnationen av "Förbifart Stockholm" medför ännu kortare restider.
Det händer mycket i Skärholmen med 6000 nya bostäder som planeras i närområdet vilket medför ett ytterligare stärkt Skärholmen.

Kommunikationer

På några minuter promenerar du till tunnelbanestationen Skärholmen. Du kan gå genom SKHLM-gallerian och ha tak över huvudet nästan hela vägen till tunnelbanan. Till centralen tar det inte mer än 20 minuter med tunnelbanans röda linje. Utanför fastigheten går även bussar mot Huddinge.

Med bil tar man sig lätt till och från fastigheten via E4/E20.
Parkering finns att hyra utanför eller i våra garage som tillhör fastigheten.

Parkering

Här finns det gott om garage- och parkeringsplatser att hyra.

Fastigheten

Fastigheten ligger precis intill södra delen av Skärholmen Centrum. Här kan du uträtta alla dina ärenden smidigt på en lunch. Byggnaden inrymmer kontor och ett mindre lager och har synnerligen god standard med en trevlig inglasad innergård som sprider ljus in till lokalerna.

  • Tillgång till lastkaj
  • Gott om parkering
  • Smidig access till E4/E20

Faciliteter i fastigheten

Lastkaj Cykelrum Parkering Skyltläge Garage

Service i området

Buss Parkering Restaurang Café Hotell Shopping Gym T-bana

Energi & hållbarhet

  • Certifieringar: LEED O+M, Gold
  • Total energianvändning (2025): 7 kWh/m²
  • Klimatpåverkan: 0,13 kg CO₂e/m² (platsbaserad)

Andra hyresgäster i fastigheten

Stadsteatern - Jobbtorget - Sector Alarm AB - Getholmen 1 - Green Three D Invest AB - Tandakuten Skärholmen AB - Iris Hadar AB - Getholmen 1 - Mervida AB - Cigell AB

Karta

Dokument

Kontaktperson

Uthyrare

Mia Idre

Fråga oss!

Nyfiken på den här lokalen? Eller behöver du hjälp att hitta rätt lokal för din verksamhet? Oavsett om du vet exakt vad du söker eller om du behöver rådgivning, så finns vi här och hjälper till.

Vi ser fram emot att höra av dig.

Intresseanmälan

Kontaktinformation

All behandling av personuppgifter sker i enlighet med dataskyddsförordningen och annan dataskyddslagstiftning. Läs mer om GDPR

Liknande lokaler i Stockholm