Gå till huvudinnehåll

Stockholm Globen/Bolidenplan

Skolvägen 10

Kontor

Yta

308 kvm

Arbetsplatser

15 - 20 st

Så räknar vi antal arbetsplatser

Detta spann är en uppskattning. Det finns flera faktorer som påverkar hur många arbetsplatser som kan rymmas i en lokal. Inte bara storleken på själva lokalen utan även hur den disponeras. Exempelvis kräver en lokal med många enskilda kontor mer plats än öppen planlösning. Andra begränsningar kan vara tillgången på luft och kyla, eller utrymningsvägar.

Tillträdesdatum

Enl. ök.

Inflyttningsklart kontor nära Globen!

Välkommen till ett ljust och trivsamt kontor med fina ytskikt och en genomtänkt planlösning. Lokalen är belägen högst upp i huset, vilket ger ett generöst ljusinsläpp och en härlig känsla av rymd.

Kontoret erbjuder ett attraktivt skyltläge mot Nynäsvägen, där ert varumärke får god exponering mot förbipasserande trafik. En välplanerad arbetsmiljö som passar företag som söker ett representativt kontor i ett synligt läge.

Välkommen att boka visning!

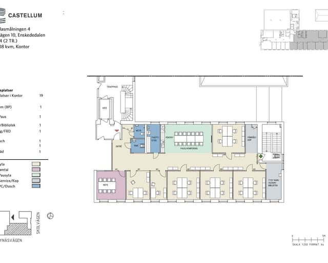
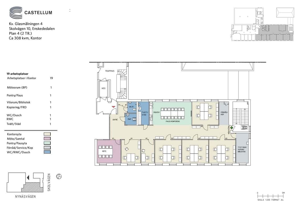
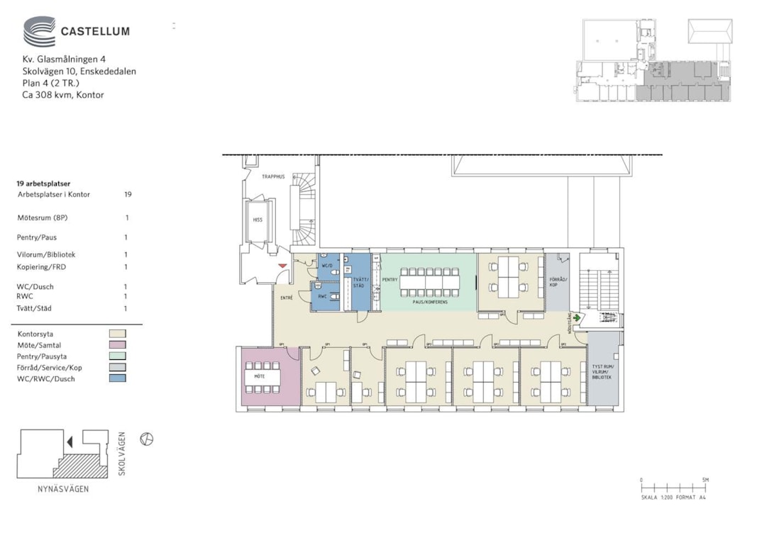
Planlösning

Kontorslokal om ca 308 kvm på plan 4 (2 tr), anpassad för cirka 19 arbetsplatser. Lokalen har en effektiv och tydlig planlösning med arbetsplatser i kontorsrum, kompletterat med ett mötesrum för upp till 8 personer.

Centralt i lokalen finns pentry med paus-/konferensyta, som fungerar som en naturlig samlingspunkt. Lokalen erbjuder även vilorum/bibliotek, kopierings- och förrådsutrymmen, samt WC, RWC, dusch och tvätt/städ.

En välplanerad och funktionell kontorsmiljö med god struktur och bra intern logistik, lämpad för företag som söker ett lugnt och effektivt kontor med tydlig uppdelning mellan arbete, möten och gemensamma ytor.

Området

Fastigheten är belägen med bästa skyltläge invid 73:an / Nynäsvägen. Runt omkring finns huvudsakligen flerbostadshusbebyggelse.

Kommunikationer

Ca 400 meters avstånd till närmaste T-bana Sandsborg eller Blåsut. Även gångavstånd till Globen där det finns tvärbana, T-bana och buss. Fastigheten ligger invid Söderledens upp-/nedfart till väg 73 / Nynäsvägen.

Byggnaden har en accesspunkter (fiberkoppling) från Stokab benämnd ENSK1715. Vika denna går det att erhålla mycket hög och redundant digital uppkoppling via flera olika internetleverantörer för kunder med höga krav på access och säkerhet.

Service

8 minuters promenad, ligger Tolv Stockholm / Globen Shopping med många restauranger och all tänkbar service du behöver under dagen.

Fastigheten

Kontorsfastighet

  • Bra kommunikationer
  • Inflyttningsklart
  • Ljusa lokaler

Faciliteter i fastigheten

Skyltläge

Service i området

Buss Restaurang Café Shopping Gym Grönområde T-bana

Energi & hållbarhet

  • Total energianvändning (2025): 35 kWh/m²
  • Klimatpåverkan: 4,4 kg CO₂e/m² (platsbaserad)

Andra hyresgäster i fastigheten

Fiskarhedenvillan AB - ACKlein Skolrestauranger AB - Burkert Sweden AB - Sångbolaget ek.för - Instruktörerna i Norden AB - Telenor Tower Sweden AB - Trafikverket

Karta

Dokument

Kontaktperson

Uthyrare

Mia Idre

Fråga oss!

Nyfiken på den här lokalen? Eller behöver du hjälp att hitta rätt lokal för din verksamhet? Oavsett om du vet exakt vad du söker eller om du behöver rådgivning, så finns vi här och hjälper till.

Vi ser fram emot att höra av dig.

Intresseanmälan

Kontaktinformation

All behandling av personuppgifter sker i enlighet med dataskyddsförordningen och annan dataskyddslagstiftning. Läs mer om GDPR

Ett eget husteam ingår i hyran

Som hyresgäst hos oss får ni ett lokalt husteam som ser till att ni trivs och att allt fungerar som det ska. Vi hjälper till med allt från fastighetsskötsel och energioptimering till skyltning och parkering. Ingen fråga är för stor eller för liten. Och skulle era behov förändras brukar vi alltid kunna erbjuda en lösning, vad det än gäller. Varmt välkommen till en värd bortom det förväntade.

Liknande lokaler i Stockholm