Gå till huvudinnehåll

Göteborg Högsbo/Sisjön

Gustav Melins Gata 7

Industri Kontor Lager/Logistik

Hyresindikation

180 000 kr/mån

Detaljerad hyresinformation

Hyresindikation i befintligt skick:
Kallhyra: 1200 kr/kvm
Driftkostnbad: 175 kr/kvm
Fastighetskatt: 72 kr/kvm

Yta

1 800 kvm

Arbetsplatser

15 - 50 st

Så räknar vi antal arbetsplatser

Detta spann är en uppskattning. Det finns flera faktorer som påverkar hur många arbetsplatser som kan rymmas i en lokal. Inte bara storleken på själva lokalen utan även hur den disponeras. Exempelvis kräver en lokal med många enskilda kontor mer plats än öppen planlösning. Andra begränsningar kan vara tillgången på luft och kyla, eller utrymningsvägar.

Tillträdesdatum

2026-04-01

Våningsplan

0

Kombilokal med höglager, kontor och god tillgänglighet i Högsbo

Här erbjuds en egen fastighet i hjärtat av Högsbo industriområde, med mycket goda logistiska och verksamhetsmässiga förutsättningar.
Fastigheten har fyra stora markportar, stor rangeringsyta med möjlighet att köra runt huset samt 22 egna parkeringsplatser, med möjlighet att tillskapa ytterligare p-platser vid behov.

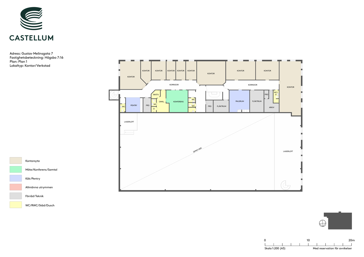
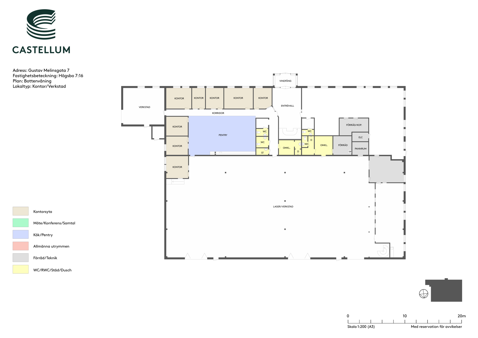
Lokalen omfattar cirka 800 kvm höglager i kombination med cirka 1 000 kvm kontor fördelat på två plan. Delar av kontorets bottenplan kan vid behov anpassas till labbverksamhet eller låglager vilket skapar stor flexibilitet för olika typer av verksamheter.

Kontorsytorna är i dag huvudsakligen uppdelade i kontorsrum, konferensrum och pentry, kompletterat med öppna ytor för samarbete och gemensamt arbete. Planlösningen är flexibel och kan anpassas i samråd med hyresgästen. Det finns även möjlighet att hyra ut del av kontoret till andrahandshyresgäst om så önskas.

Fastigheten har ett strategiskt läge i Högsbo, med närhet till större trafikleder samt ett brett utbud av restauranger, butiker och gym. Förutom goda parkeringsmöjligheter finns även nära bussförbindelser med smidig kommunikation till centrala Göteborg, Hovås, Mölndal och Frölunda.

Välkommen att kontakta oss för mer info och visning!

Planlösning

Lokalen erbjuder en välbalanserad kombination av lager, kontor och flexibla ytor. Lagerdelen om cirka 800 kvm är anpassad för höglagring och har direkt access via tre markportar. Kontorsdelen om cirka 1 000 kvm är fördelad på två plan och består huvudsakligen av cellkontor, konferensrum och pentry, kompletterat med öppna ytor för samarbete.

Planlösningen är mycket flexibel och kan anpassas efter verksamhetens behov. Delar av kontorets bottenplan kan byggas om till labb eller låglager, och det finns möjlighet att dela av kontorsytor för andrahandsuthyrning.

Fastigheten

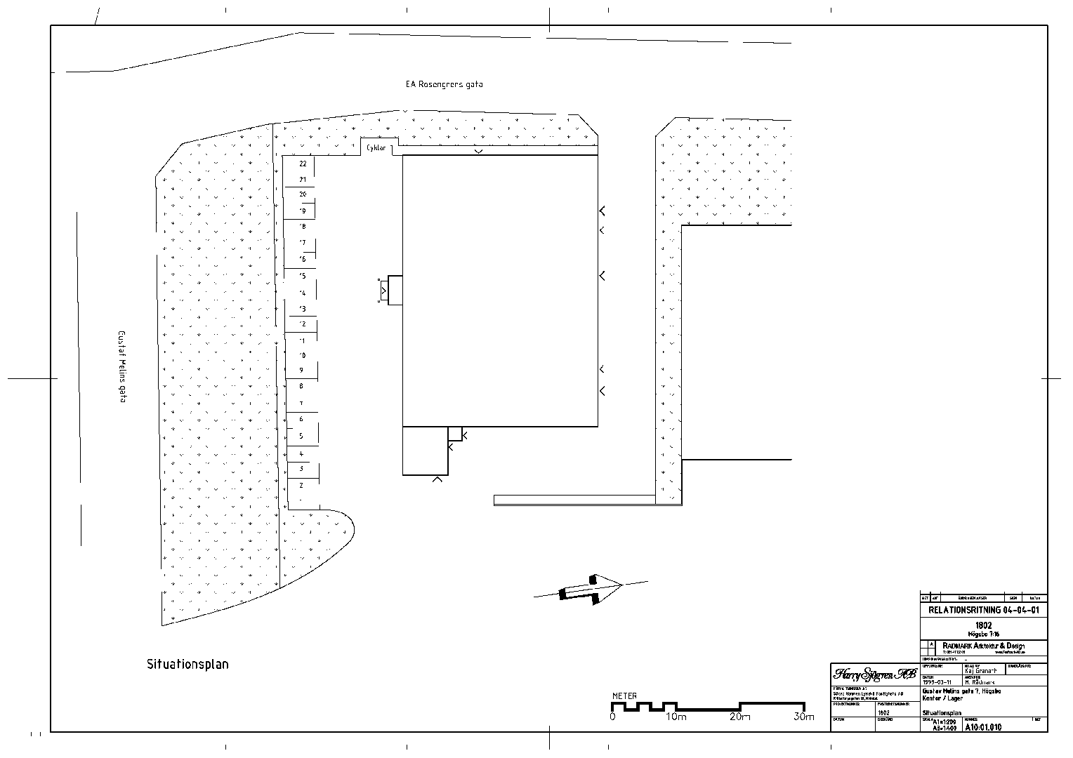
Fastigheten är belägen i Högsbo industriområde som ligger i västra Göteborg.

Fastigheten är bebyggd med en lager-/kontorsbyggnad i ett till två plan samt vidbyggt garage. Enplansdelen består av lager och tvåplansdelen av kontor. Gården är asfalterad och försedd med parkeringsplatser och lastgata samt har planteringar mot gatan.

Inom området finns tillgång till all typ av närservice i form av banker, lunchrestauranger, dagligvaruhandel och detaljister. Post finns inom 5 minuters bilavstånd.

  • Stark logistikfunktion
  • Egen fastighet
  • Många parkeringsplatser

Faciliteter i fastigheten

Omklädningsrum Uteplats Parkering Kök Elbilsladdning Reception Skyltläge

Service i området

Buss Parkering Restaurang Café Elbilsladdning Gym Grönområde

Energi & hållbarhet

  • Total energianvändning (2025): 11 kWh/m²
  • Klimatpåverkan: 0,27 kg CO₂e/m² (platsbaserad)

Andra hyresgäster i fastigheten

Dometic Sandinavia AB

Karta

Dokument

Kontaktperson

Uthyrare

Ylva Brodin

Fråga oss!

Nyfiken på den här lokalen? Eller behöver du hjälp att hitta rätt lokal för din verksamhet? Oavsett om du vet exakt vad du söker eller om du behöver rådgivning, så finns vi här och hjälper till.

Vi ser fram emot att höra av dig.

Intresseanmälan

Kontaktinformation

All behandling av personuppgifter sker i enlighet med dataskyddsförordningen och annan dataskyddslagstiftning. Läs mer om GDPR

Liknande lokaler i Göteborg