Gå till huvudinnehåll

Göteborg Högsbo/Sisjön

Järnbrotts Prästväg 2

Kontor

Hyresindikation

23 000 kr/mån

Detaljerad hyresinformation

Kallhyra = 1600 kr/kvm
Driftkostnad =245 kr/kvm
Fastighetskatt = 54 kr/kvm
Verksamhetsel tillkommer
Moms om 25% tillkommer

Yta

171 kvm

Arbetsplatser

6 - 10 st

Så räknar vi antal arbetsplatser

Detta spann är en uppskattning. Det finns flera faktorer som påverkar hur många arbetsplatser som kan rymmas i en lokal. Inte bara storleken på själva lokalen utan även hur den disponeras. Exempelvis kräver en lokal med många enskilda kontor mer plats än öppen planlösning. Andra begränsningar kan vara tillgången på luft och kyla, eller utrymningsvägar.

Tillträdesdatum

Enl. ök.

Våningsplan

3

Ljust och effektivt kontor!

Välkommen till ett modernt och välplanerat kontor på plan 2! Här finns flera kontorsrum med glaspartier, ett stort konferensrum samt två mindre samtalsrum och förråd.

Fastigheten erbjuder förstklassig service med egen receptionist, konferensmöjligheter, gym och restaurang. Här finns också trevliga gemensamma ytor, såsom en ljusgård och en inbjudande uteplats – perfekt för avkoppling och nätverkande.

För extra bekvämlighet finns förråd eller lager att hyra i samma byggnad och det är gott om parkeringsplatser precis utanför vilket gör det smidigt för både medarbetare och besökare.

Ett stilrent kontor i en fullservicefastighet – kontakta oss för en visning idag!

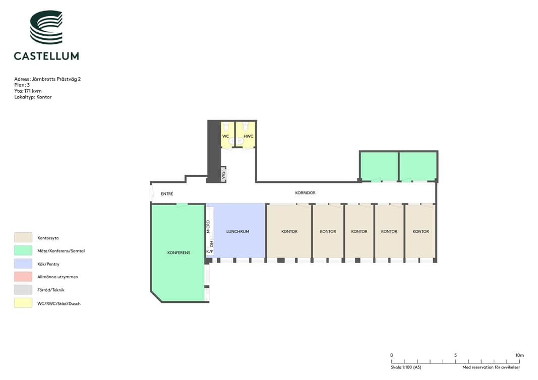
Planlösning

Denna välplanerade erbjuder flera kontorsrum med glaspartier, ett stort konferensrum och två mindre samtalsrum.

Området

Fastigheten ligger i stadsdelen Järnbrott i hjärtat av Västra Frölunda. I omgivningen finns bostadsområden, två välbesökta köpcentrum och bra kommunikationer.

En kort promenad bort finns livliga Frölunda centrum.
Där hittar du bland annat ett köpcentrum med en mängd olika butiker, gym, apotek, postombud, systembolag, caféer och restauranger.

Kommunikationer

Härifrån har du nära till flera kommunikationsnav. Det tar fem minuter att gå till den nya knutpunkten för bussar i Järnbrott.
I närheten finns även knutpunkterna Frölunda Torg och Marklandsgatan. Det är enkelt att ta sig hit med bil också eftersom både Söderleden och Dag Hammarskjöldsleden ligger nära byggnaden.

Service

I byggnaden ligger uppskattade lunchrestaurangen Kockar & Kastruller som lagar husmanskost med mycket hjärta.
I källaren finns ett gym med bastu och omklädningsrum som är tillgängligt för alla hyresgäster.
I fastigheten finns det möjlighet att hyra olika konferensrum i olika storlekar som går att hyra. Antingen heldag eller halvdagar. De går även att beställa till fika och catering.
I entrén har vi en receptionstjänst under dagtid, där du kan få hjälp med post,felanmälan , nycklar och konferensbokningar.

Fastigheten

Kontorsfastighet i Järnbrotts bästa läge!
Fastigheten erbjuder en modern och bekväm arbetsmiljö med ett brett utbud av service direkt i huset, smidigt tillgängligt via vår receptionstjänst. Här får hyresgästerna stöd i vardagen och en professionell första kontakt för besökare.

I hjärtat av byggnaden finns en ny, ljus och inbjudande ljusgård som erbjuder en naturlig mötesplats för både spontana samtal och bokade möten. Den passar lika bra för en avkopplande fika som för inspirerande arbetsstunder i en trivsam miljö.

Som en extra förmån ingår även tillgång till ett gym med bastu för alla hyresgäster och konferensmöjligheter för allt mellan 16-50 personer.

  • Service i toppklass
  • Modern och trivsam miljö
  • Planlösning med kontorsrum

Faciliteter i fastigheten

Cykelrum Parkering Elbilsladdning Reception Konferensservice Restaurang

Service i området

Buss Gym

Energi & hållbarhet

  • Total energianvändning (2025): 20 kWh/m²
  • Klimatpåverkan: 3,86 kg CO₂e/m² (platsbaserad)

Andra hyresgäster i fastigheten

Stiftelsen Ebba Petterssons Privatskola - LSS-Konsult AB - Restaurang Kockar och Kastruller AB - Samordningsförbundet Göteborg - Marlink AB - Taxi Göteborg Ekonomisk Förening - DS Smith Packaging - Rimab Facility Service AB - Wesmans Scandinavia AB - InfraCom Managed Services AB - Energiprojekt E&S AB - iLab Medical AB - Claes-Göran Svensson Invest AB - Gynius Plus AB - Castellum Väst Aktiebolag - EON Development AB - Taxinet Sverige AB

Karta

Dokument

Kontaktperson

Uthyrare

Denise Ström

Fråga oss!

Nyfiken på den här lokalen? Eller behöver du hjälp att hitta rätt lokal för din verksamhet? Oavsett om du vet exakt vad du söker eller om du behöver rådgivning, så finns vi här och hjälper till.

Vi ser fram emot att höra av dig.

Intresseanmälan

Kontaktinformation

All behandling av personuppgifter sker i enlighet med dataskyddsförordningen och annan dataskyddslagstiftning. Läs mer om GDPR

Ett eget husteam ingår i hyran

Som hyresgäst hos oss får ni ett lokalt husteam som ser till att ni trivs och att allt fungerar som det ska. Vi hjälper till med allt från fastighetsskötsel och energioptimering till skyltning och parkering. Ingen fråga är för stor eller för liten. Och skulle era behov förändras brukar vi alltid kunna erbjuda en lösning, vad det än gäller. Varmt välkommen till en värd bortom det förväntade.

Liknande lokaler i Göteborg