Gå till huvudinnehåll

Stockholm Solna

Slåttervägen 20

Butik Kontor

Yta

126 kvm

Tillträdesdatum

Enl. ök.

Våningsplan

0

Unik lokal med direktaccess från gatan för butik, handel eller showroom!

Välkommen till denna lokal på två plan, med generös takhöjd och glasväggar som släpper in ett härligt dagsljus.

Här får du som hyresgäst en separat ingång från gatan samt en direkt access från fastigheten.

Drömmer du om att starta en mysig butik, arrangera spännande pop-up events, bedriva handel eller visa upp dina produkter i ett showroom? Då har du hittat rätt lokal.

Beläget med ett suveränt skyltläge mot E4:an, är din verksamhet garanterad att synas av en bred publik.

Välkommen på visning!

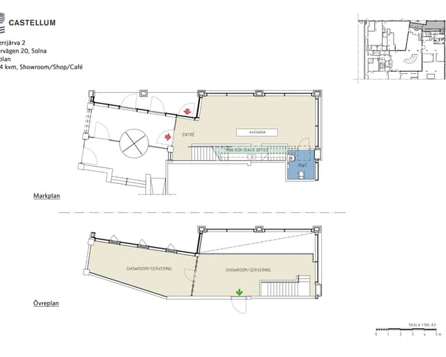
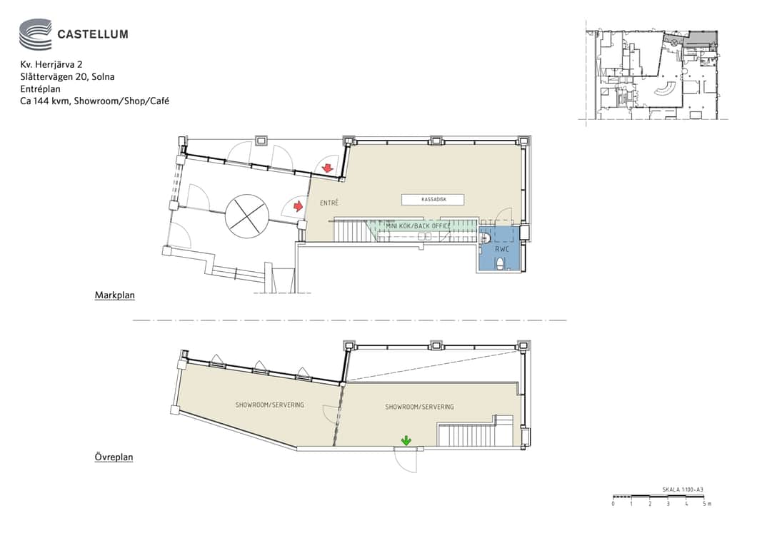
Planlösning

Lokalen erbjuder två plan med generösa öppna ytor. Lokalens entré har kassadisk, ett mindre kök eller backoffice samt RWC. Passande för butik, konceptyta eller café i ett attraktivt läge.

Området

Välkommen till Järva Krog – En levande kvartersstad med allt inom räckhåll

Järva Krog är en blomstrande och dynamisk stadsdel med en unik kombination av moderna, miljöcertifierade kontorsbyggnader, trivsamma bostäder, charmiga lokala butiker och välbesökta restauranger. Här möts det bästa av stadens puls och naturens lugn, vilket skapar en motiverande och inkluderande miljö både för företag och boende.

Här finns allt du behöver – och lite till:

Attraktivt läge: Endast några minuter från natursköna Brunnsviken, Skandinaviens största galleria och Sveriges nationalarena.

Fullservice när du behöver: Konferensfaciliteter, gym, co-working, hotell och eventlokaler, allt samlat på en plats.

En levande vardag: Restauranger och butiker i området ger en härlig mix av bekvämlighet och trivsel.

Järva Krog är under ständig utveckling för att möta framtidens behov. Här skapas möjligheter för människor och företag att växa och trivas i en miljö som kombinerar funktion, innovation och gemenskap.

Välkommen till Järva Krog – här blir livet enkelt

Kommunikationer

Här går Arlanda flygbuss, flertalet busslinjer till city och andra destinationer. Utanför dörren går Sveriges störta trafikleder E4 och E18.

Pendeltåg endast en kort promenad bort.

Parkering

Här finns delad parkering med laddmöjlighet i huset samt ett stort publikt garage på gångavstånd, även det med möjlighet till elbilsladdning.

Service

Järva Krog, en kvartersstad med fullservice i området: Konferensfaciliteter, gym, co-working, hotell och eventlokaler, restauranger och butiker som ger en härlig mix av bekvämlighet och trivsel

Fastigheten

Här möts funktionalitet och trivsel i en varm och inkluderande miljö. Den rymliga inomhusgården, täckt av ett imponerande glastak, skapar en perfekt plats för möten och gemenskap. En elegant, snäckformad trappa leder upp till kontoren, där ljuddämpat glas säkerställer en lugn och produktiv arbetsmiljö.

Bekvämlighet på alla plan:

Levande gatuplan: Restauranger, service och ett toppmodernt cykelrum med cykelservice som underlättar din vardag.

Effektiva lösningar: Lastfartsintag med lastkaj och direktanslutning till lasthiss gör logistiken enkel och smidig.

Fullservice när ni behöver: En dedikerad facility-managementaktör finns till hands för att erbjuda all den kontorsservice ni kan tänkas behöva.

Dessutom får ni Stockholms bästa skyltläge, en unik möjlighet att visa upp ert varumärke på ett av stadens mest eftertraktade skyltläge.

Allt nära tillhands när ni behöver det.

  • Egen ingång
  • Skyltläge mot E4:an

Faciliteter i fastigheten

Omklädningsrum Cykelrum Elbilsladdning Skyltläge Konferensservice Garage Restaurang Gym

Service i området

Buss Restaurang Café Hotell Tåg Gym Grönområde

Energi & hållbarhet

  • Certifieringar: BREEAM New Construction,Excellent
  • Total energianvändning (2025): 15 kWh/m²
  • Klimatpåverkan: 0,11 kg CO₂e/m² (platsbaserad)

Andra hyresgäster i fastigheten

HPE - Puma Nordic AB - Viatris - Circular Tire Services Europe AB - Trafikverket - Herrjärva 2 - Haugen-Gruppen AB - Exclusive Networks Sweden AB - Joyweek - Boon Edam Sweden AB - Motonet AB - Adns House of Service AB - Nooch AB - Råsunda Säkerhetsentreprenad AB - Reimers Café & Catering AB - Klaver Cykelparkering AB

Karta

Dokument

Kontaktperson

Uthyrare

Jessica Andrée

Fråga oss!

Nyfiken på den här lokalen? Eller behöver du hjälp att hitta rätt lokal för din verksamhet? Oavsett om du vet exakt vad du söker eller om du behöver rådgivning, så finns vi här och hjälper till.

Vi ser fram emot att höra av dig.

Intresseanmälan

Kontaktinformation

All behandling av personuppgifter sker i enlighet med dataskyddsförordningen och annan dataskyddslagstiftning. Läs mer om GDPR

Liknande lokaler i Stockholm