Modern kontorsfastighet på attraktiv adress i Kista
Välkommen till Isafjordsgatan – en representativ kontorsfastighet med utmärkt läge mitt i Kista Science City, norra Europas främsta IT- och teknikkluster. Här får ditt företag möjlighet att etablera sig i en dynamisk miljö med närhet till ledande bolag, service och goda kommunikationer.
Fastigheten erbjuder:
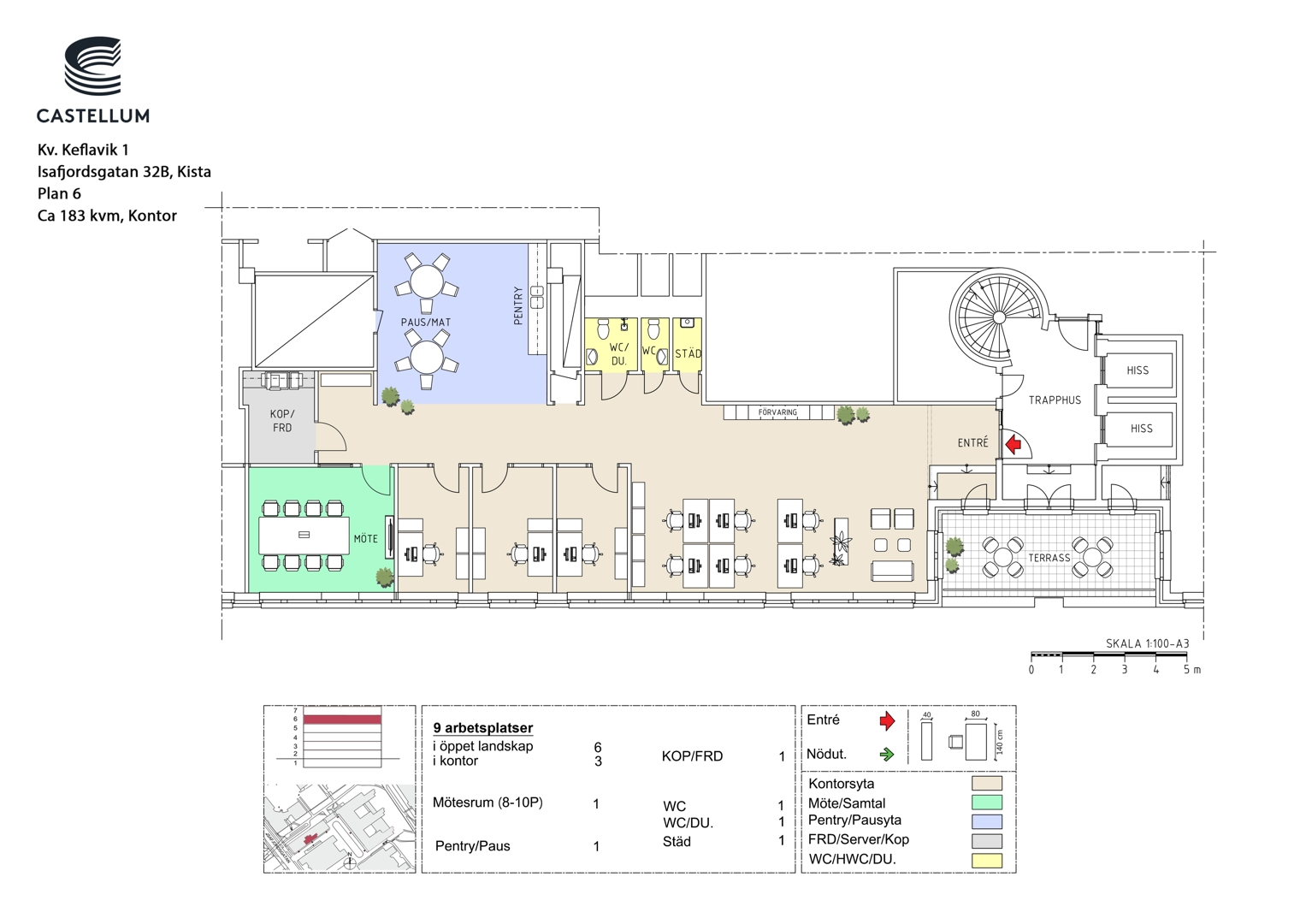
Flexibla kontorsytor anpassningsbara efter verksamhetens behov
Ljusa och moderna lokaler med stora fönster och generös takhöjd
Effektiva planlösningar för både öppet landskap och enskilda rum
Garageplatser och cykelparkering i huset
Restauranger, caféer, gym och service inom gångavstånd
Området
Hej, hello, guten tag, ni hao, marhaba. Välkommen till Kista. Platsen där människor från hela världen samlas för att upptäcka, utforska, uppfinna och uppleva. Här testkörs ny teknik, här breder gatukonsten ut sig, här överraskar restaurangerna och här frodas grönska och innovationer, precis som nya förmågor och forskarstjärnor. Ändå har Kista mer att erbjuda. De närmaste åren kommer stadsdelen få flera tusen nya bostäder och arbetsplatser samt bli en del av tvärbanan, så att livet kan sprudla i varje hörn och under dygnets alla timmar. Och för att ytterligare ta vara på Kistas fulla potential har vi på Castellum gått samman med andra aktörer i ett initiativ som ger stadsdelen en kulturell och social skjuts. Vad som händer mellan milstolparna är det ingen som vet. Men hör ni hemma bland de nytänkande, är detta platsen för er. Vi lovar att alltid vara på tårna för att hålla jämna steg med både ert företags och Kistas utveckling.
Kommunikationer
Kista är svårslaget om man vill sitta i ett område med bra kommunikationer. Det tar 3 minuter att promenera från fastigheten till Kista tunnelbanestation. Flera busslinjer går genom området, bland annat buss 523 och 178 som stannar vid pendeltågsstationen Helenelund. Du tar dig till Arlanda och Bromma flygplats med pendeltåg eller flygbuss. Snart kommer även Tvärbanan att korsa Kista. Den byggs ut från Norra Ulvsunda via Bromma flygplats.
Service
En kort promenad från fastigheten ligger Kista Galleria. Den är en av Stockholms mest välbesökta gallerior och har ett stort utbud av shopping, restauranger och nöjesaktiviteter - bland annat bowling, bio och gokart.
Fastigheten
En fin och välskött kontorsfastighet med trevliga utemiljöer. Fastigheten är på ca 25 000 kvm. Parkering erbjuds i varmgarage eller utomhus.
Energi & hållbarhet
- Hållbarhetscertifiering: LEED O+M, Silver
- Total energianvändning: 46 kWh / m², år
- Energi CO2-påverkan: 2,3 kg CO₂ / m², år
Andra hyresgäster i fastigheten
Stockholm Kommun - Keflavik 1 - Tibble Campus Kista AB - Järvaskolan AB - Jensen Education Aktiebolag - HRF Hörselskadades Riksförbund - Keflavik 1 - Intel Sweden AB - SSC - Infineon Technologies Nordic AB - Cadence Design Systems AB - Kista Stars International Preschool AB - SOS Alarm - Keflavik 1 - International Preschool Kista AB - El Birria Group AB - Onsemi - Iris Hadar AB - Ingate Systems AB - Järva Ungdomsmottagning - RoyalTable AB - AKG Sverige AB - Radio Evolution Sweden AB - Järva Unga Beroendecentrum - Gateway Digital Sweden AB - Balanced Competence Sweden AB - Kista Rekond - CommScope Sweden AB - Svenska TakVisionärerna AB - Retail 24 - Telpartner Sverige AB - Returab Sverige Aktiebolag - Xclusive Idrott & Kulturförening - Base of Trade Stockholm AB - Abonos omsorg AB - Aviareps AB - Dicentia AB - ABD Bygg AB - Lyx lampor i Göteborg AB - Glowly AB - Dromator Service AB
Karta
Dokument
Broschyr
Kontaktperson

Nyfiken på den här lokalen? Eller behöver du hjälp att hitta rätt lokal för din verksamhet? Oavsett om du vet exakt vad du söker eller om du behöver rådgivning, så finns vi här och hjälper till.
Vi ser fram emot att höra av dig.