Gå till huvudinnehåll

Stockholm Kista

Jan Stenbecks Torg 17

Kontor

Yta

734 - 1 355 kvm

Arbetsplatser

45 - 92 st

Så räknar vi antal arbetsplatser

Detta spann är en uppskattning. Det finns flera faktorer som påverkar hur många arbetsplatser som kan rymmas i en lokal. Inte bara storleken på själva lokalen utan även hur den disponeras. Exempelvis kräver en lokal med många enskilda kontor mer plats än öppen planlösning. Andra begränsningar kan vara tillgången på luft och kyla, eller utrymningsvägar.

Tillträdesdatum

Enl. ök.

Våningsplan

1

Unik och representativa lokal med 200 kvm egen terrass precis vid Kista Galleria!

Upptäck denna unika lokal med stor terrass – ett kontor som verkligen lyfter arbetsdagen!

Lokalen erbjuder flexibla ytor som kan anpassas efter din verksamhets behov. Vi kan erbjuda lokaler från 734 kvm upp till 1 355 kvm.

Här möts ni av generösa, öppna ytor som skapar en dynamisk och levande arbetsmiljö. Den luftiga planlösningen främjar både samarbete och kreativitet, samtidigt som flera mindre kontorsrum och välplacerade mötesrum erbjuder rum för fokus och ostörda samtal. Terrassen blir en naturlig förlängning av kontoret – perfekt för lunch i solen, informella möten eller en stunds återhämtning mellan arbetspassen.

Lokalen är belägen i Kista One, en av Castellums mest attraktiva fastigheter. Här får ni ett strategiskt läge precis intill Kista Galleria, vilket innebär nära till all tänkbar service, restauranger, butiker och kommunikationer – enkelt för både medarbetare och besökare att ta sig hit.

I fastigheten finns dessutom ett brett utbud av service:
– Två bemannade receptioner
– Konferensrum
– Gym
– Restauranger och caféer

Detta är en kontorslösning för företag som söker en kombination av kvalitet, flexibilitet och en inspirerande arbetsmiljö i ett av Kistas mest attraktiva lägen.

Kontakta oss gärna för en personlig visning för dig och ditt företag.
Vi ser fram emot att höra från er!

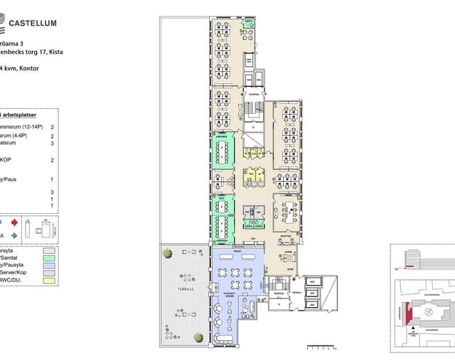
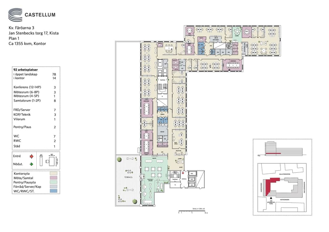
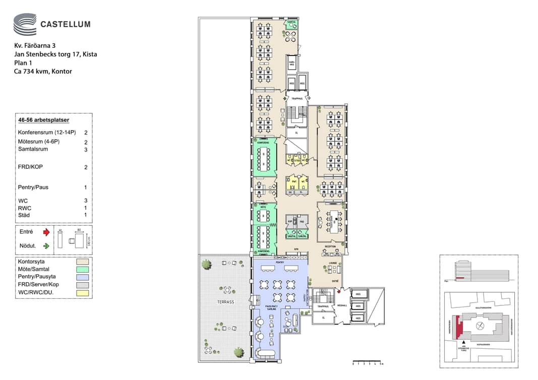
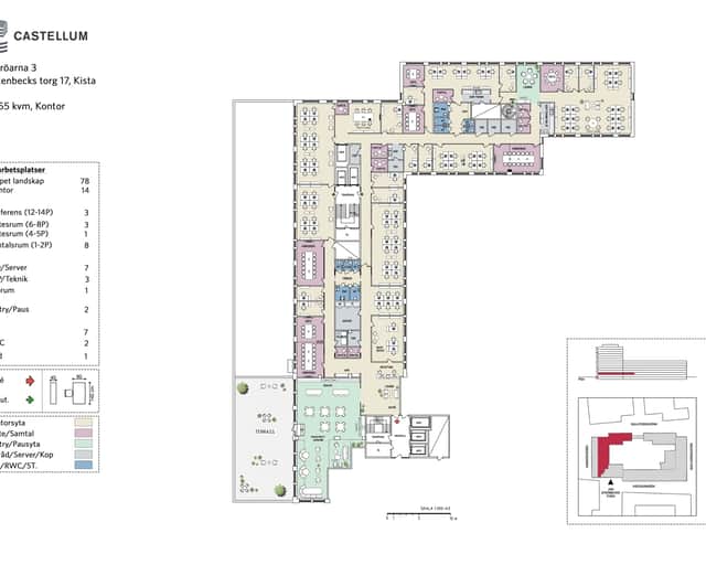
Planlösning

Denna kontorslokal om ca 1 355 kvm erbjuder en mycket välplanerad och funktionell layout med fokus på flexibilitet, flöde och trivsel. Lokalen rymmer totalt 92 arbetsplatser, varav 78 i öppet landskap och 14 i rumsindelade kontor, placerade längs fasaderna för att maximera ljusinsläpp och skapa en ljus och behaglig arbetsmiljö.

Centralt i lokalen finns en generös pentry- och pausdel som fungerar som en naturlig samlingspunkt och ligger i direkt anslutning till en stor terrass, perfekt för luncher eller möten utomhus. I anslutning till kärnan finns flera mötesrum – ett större konferensrum för 12–14 personer, två mötesrum för 6–8 personer samt tre samtalsrum för 2 personer. Dessa kompletteras av en flexibel yta för informella möten och samarbete.

Längs lokalens övre del finns en rad fokus- och vilrum, servicefunktioner såsom kopiator, förråd och teknikrum, samt WC och RWC strategiskt fördelade. Tydliga gångstråk, flera nödutgångar och separata zoner skapar logiska flöden och gör lokalen enkel att navigera.

En modern, ljus och mycket yteffektiv kontorslösning med stor anpassningspotential för växande verksamheter.

Området

Välkommen till Kista. Platsen där människor från hela världen samlas för att upptäcka, utforska, uppfinna och uppleva. Här testkörs ny teknik, här breder gatukonsten ut sig, här överraskar restaurangerna och här frodas grönska och innovationer, precis som nya förmågor och forskarstjärnor.

Ändå har Kista mer att erbjuda. De närmaste åren kommer stadsdelen få flera tusen nya bostäder och arbetsplatser samt bli en del av tvärbanan, så att livet kan sprudla i varje hörn och under dygnets alla timmar. Och för att ytterligare ta vara på Kistas fulla potential har vi på Castellum gått samman med andra aktörer i ett initiativ som ger stadsdelen en kulturell och social skjuts.

Vad som händer mellan milstolparna är det ingen som vet. Men hör ni hemma bland de nytänkande, är detta platsen för er. Vi lovar att alltid vara på tårna för att hålla jämna steg med både ert företags och Kistas utveckling.

Kommunikationer

Kista är svårslaget om man vill sitta i ett område med bra kommunikationer. Det tar 3 minuter att promenera från fastigheten till Kista tunnelbanestation. Flera busslinjer går genom området, bland annat buss 523 och 178 som stannar vid pendeltågsstationen Helenelund. Du tar dig till Arlanda och Bromma flygplats med pendeltåg eller flygbuss. Snart kommer även Tvärbanan att korsa Kista. Just nu byggs den ut från Norra Ulvsunda via Bromma flygplats till Ursvik för att sedan fortsätta till Kista och Helenelund.

Service

Som hyresgäst på Kista One får du tillgång till en rad olika tjänster som förenklar vardagen för dig och dina kollegor. De två bemannade receptionerna vid huvudentréerna erbjuder receptionsservice och uthyrning av gemensamma konferensrum. Ett fullt utrustat fastighetsgym som drivs av Motion Studios är öppet för samtliga hyresgäster. Garage och separat cykelrum finns i fastigheten och hissar går direkt mellan de olika planen. Där finns laddningsstationer för elbilar och elcyklar tillsammans med tryckluft för pumpning av däck. I garaget erbjuds också biltvätt med service.

Kista One erbjuder nu ett nytt gym och en rad andra bekvämligheter för hyresgästerna – allt för att underlätta och höja vardagsupplevelsen i fastigheten.

En kort promenad från fastigheten ligger Kista Galleria. Den är en av Stockholms mest välbesökta gallerior och har ett stort utbud av shopping, restauranger och nöjesaktiviteter - bland annat bowling, bio och gokart.

Fastigheten

Fastigheten Kista One är platsen för alla. Vi erbjuder en rad olika kontorslösningar med ett serviceutbud som innehåller allt ett företag behöver. Med två bemannade receptioner och fyra konferensrum, som drivs av teamet på I Know A Guy, sträcker sig vår service från effektiv posthantering till professionell eventplanering, och såklart allt där emellan!

På innergården har vi skapat en inbjudande miljö med mängder av sittplatser, en terrass och massor av grönytor. Dessutom har Fastigheten Kista One investerat i hållbarhet. Med en solcellsanläggning, geoanläggning och en egen biodling strävar vi mot att minska vår påverkan på miljön. Vår fastighet är stolt certifierad som LEED Gold, vilket understryker vårt engagemang för hållbarhet och miljöansvar.

  • Egen terrass!
  • Representativ lokal
  • Bra kommunikationer

Faciliteter i fastigheten

Cykelrum Parkering Reception Garage Restaurang Gym

Service i området

Buss Restaurang Café Shopping Gym T-bana

Energi & hållbarhet

  • Certifieringar: LEED New Construction, Gold
  • Total energianvändning (2025): 35 kWh/m²
  • Klimatpåverkan: 0,27 kg CO₂e/m² (platsbaserad)

Andra hyresgäster i fastigheten

Excillum AB - ACO Hud Nordic AB - Regus - Cellmax Technologies AB - Signify Sweden AB - Sigma Connectivity WSI AB - Pirelli Tyre Nordic Aktiebolag - Wind River AB - Joyweek - Grenkeleasing AB - Responda Group AB - Synoptik - Tillmobil i Norden AB - Analog Devices AB - Mama Mia - MACOM - Hamilton Nordic AB - Comfort-Kedjan AB - Akkodis Edge Sweden AB - TeraSi AB - Nefab Aktiebolag - Castellum Stockholm AB - Din Vårdcentral i Stockholm AB - Bitlog Nordic AB - Init Sweden AB - Sunway Communication AB - ResMed Sweden AB - T2 Data Aktiebolag - Altegra Consulting AB - Microchip Technology Sweden AB - Photomate Scandinavia AB - Retail 24 - Excedo Networks AB - Global House AB - Swereco AB - VFS Global Sweden AB - Nordic Bulkers AB - Innophase IoT AB - Holy Greens AB - Bramsburgers AB - Audika AB - Färöarna 3 - Molex Sweden - Intersurgical AB - Ugglan Dental

Karta

Dokument

Kontaktperson

Uthyrare

Rolf Marias

Fråga oss!

Nyfiken på den här lokalen? Eller behöver du hjälp att hitta rätt lokal för din verksamhet? Oavsett om du vet exakt vad du söker eller om du behöver rådgivning, så finns vi här och hjälper till.

Vi ser fram emot att höra av dig.

Intresseanmälan

Kontaktinformation

All behandling av personuppgifter sker i enlighet med dataskyddsförordningen och annan dataskyddslagstiftning. Läs mer om GDPR

Liknande lokaler i Stockholm