Gå till huvudinnehåll

Helsingborg Berga

Florettgatan 9

Industri Kontor Lager/Logistik

Yta

3 015 kvm

Tillträdesdatum

Enl. ök.

Rymlig och flexibel lokal med kontor, lager och lastport på Florettgatan 9 i Helsingborg

Välkommen till en smart planerad lokal som kombinerar kontor och lager i ett effektivt flöde. Här finns flera kontorsrum, mötesrum, pentry, pausrum samt omklädning, dusch och WC. Lagerytan har egen lastport för enkel in- och utlastning samt en del med extra högt i tak, perfekt för verksamheter som behöver volym eller vill bygga på höjden. En flexibel lokal som ger goda möjligheter att anpassa ytorna efter din verksamhets behov.

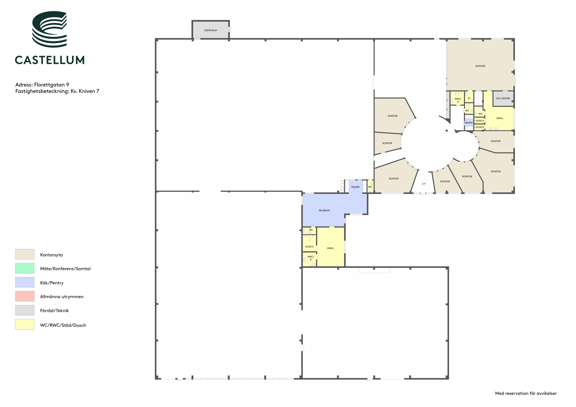
Planlösning

Lokalen är uppdelad i två delar – en kontorsdel och en större lagerdel. Kontoren är placerade kring ett centralt mötesutrymme med närhet till pentry och pausrum. Lagerdelen erbjuder öppna ytor, ett kök med matplats, lastport samt en öppning med rullband direkt till container för smidig hantering. En sektion har förhöjd takhöjd, perfekt för höglager eller större utrustning. Planlösningen är flexibel och skapar en effektiv arbetsmiljö med smidig koppling mellan kontor och lager.

Området

Berga är ett etablerat handels- och verksamhetsområde med ett strategiskt läge strax norr om Helsingborgs centrum. Här erbjuds mycket god tillgänglighet med närhet till motorväg och smidiga kommunikationer.
Området har ett brett utbud av handel, service och företag, vilket skapar ett levande och dynamiskt företagsklimat.
Ett attraktivt läge för verksamheter som söker tillgänglighet, service och goda utvecklingsmöjligheter.Läget medger också ett mycket bra skyltläge.

Kommunikationer

Att ta sig till och från Berga är enkelt, både för den dagliga pendlingen och för transporter. Motorvägen ligger i direkt anslutning till området och i närheten finns även pågatågsstation, vilket ger goda kollektivtrafikförbindelser.

Parkering

Markparkering finns att tillgå på fastigheten.

Service

Berga handelsområde erbjuder ett brett och etablerat serviceutbud med verksamheter inom många olika branscher. Här finns bland annat banker, kontor, byggvaruhus, bilförsäljning, restauranger, hotell, bagerier samt grossister och detaljister.

Fastigheten

Kniven 7 är en lager- och kontorsfastighet om cirka 3 000 kvm, belägen på Florettgatan i Berga industriområde – ett av Helsingborgs största och mest etablerade verksamhetsområden.
Fastigheten erbjuder en kombination av lager och kontor, vilket ger flexibel användning för olika typer av verksamheter.
Kniven 7 är en funktionell och välplacerad fastighet i ett starkt logistikläge med god tillgänglighet och närliggande service.

Karta

Dokument

Kontaktperson

Uthyrare

Jeanette Zigante

Fråga oss!

Nyfiken på den här lokalen? Eller behöver du hjälp att hitta rätt lokal för din verksamhet? Oavsett om du vet exakt vad du söker eller om du behöver rådgivning, så finns vi här och hjälper till.

Vi ser fram emot att höra av dig.

Intresseanmälan

Kontaktinformation

All behandling av personuppgifter sker i enlighet med dataskyddsförordningen och annan dataskyddslagstiftning. Läs mer om GDPR

Ett eget husteam ingår i hyran

Som hyresgäst hos oss får ni ett lokalt husteam som ser till att ni trivs och att allt fungerar som det ska. Vi hjälper till med allt från fastighetsskötsel och energioptimering till skyltning och parkering. Ingen fråga är för stor eller för liten. Och skulle era behov förändras brukar vi alltid kunna erbjuda en lösning, vad det än gäller. Varmt välkommen till en värd bortom det förväntade.

Liknande lokaler i Helsingborg