Gå till huvudinnehåll

Lund Ideon

Systemeraregatan 2

Kontor Restaurang/Café

Yta

2 000 - 5 450 kvm

Arbetsplatser

100 - 600 st

Så räknar vi antal arbetsplatser

Detta spann är en uppskattning. Det finns flera faktorer som påverkar hur många arbetsplatser som kan rymmas i en lokal. Inte bara storleken på själva lokalen utan även hur den disponeras. Exempelvis kräver en lokal med många enskilda kontor mer plats än öppen planlösning. Andra begränsningar kan vara tillgången på luft och kyla, eller utrymningsvägar.

Tillträdesdatum

2027-06-01

Nexus, den strategiska etableringen i norra Lund

I Brunnshög utvecklas en modern näringsfastighet för företag som vill växa i ett av Sveriges mest innovativa områden. Nexus erbjuder 5 450 kvadratmeter flexibla kontorsytor med stark synlighet och ett optimalt kommunikationsläge, mitt i Ideons dynamiska kunskapsstråk.

Med närhet till forskningsanläggningar, teknikbolag och framtidens talanger får företag en etablering som stärker både konkurrenskraft och varumärke. Nexus blir en naturlig knutpunkt mellan Ideon och Brunnshög – en plats där verksamheter kan utvecklas och samverka i takt med områdets tillväxt.

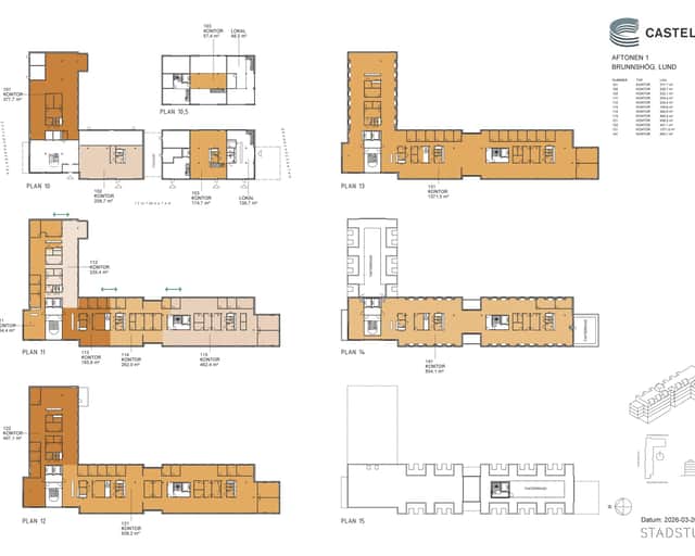
Planlösning

Ytan är disponerad med ett tydligt och effektivt flöde där entré och gemensamma ytor samlar verksamheten och skapar naturliga mötesplatser. Arbetsplatserna är placerade längs fasaden för att ta tillvara ljusinsläppet, med möjlighet till både öppna kontorslandskap och mer avskilda rum för möten och fokusarbete. Planlösningen medger flexibla lösningar för samarbete, konferens och sociala ytor, samtidigt som den enkelt kan anpassas efter olika arbetssätt och verksamhetsstorlekar. Utformningen ger goda förutsättningar för en modern och framtidsinriktad arbetsmiljö med hög effektivitet och trivsel.

Fastigheten

Castellums kommande kontorshus i Ideons kunskapsstråk, det perfekta valet!

Med ett fantastiskt skyltläge får ditt företag optimal synlighet i hjärtat av detta dynamiska affärsnav.

Här kombineras modern arkitektur och flexibla ytor, vilket skapar möjligheter för företag i alla storlekar att växa och blomstra i en kreativ och effektiv miljö. Nära till restauranger, service och grönområden skapas en trivsam och harmonisk arbetsplats där det är lätt att balansera arbete och fritid.

Dessutom ligger kontorshuset på ett utmärkt kommunikationsläge, med spårvagnshållplatsen bara ett stenkast bort – vilket underlättar smidiga resor för både medarbetare och kunder.

Ge ditt företag den bästa starten– välkommen att etablera dig här!

  • Takterass
  • Närhet till spårvagn
  • Synlighet/ Skyltläge

Faciliteter i fastigheten

Balkong Omklädningsrum Café Cykelrum Terrass Kök Reception Skyltläge Restaurang

Service i området

Parkering Restaurang Café Hotell Gym Spårvagn Grönområde

Karta

Dokument

Kontaktperson

Uthyrare

Linda Corneliusson

Fråga oss!

Nyfiken på den här lokalen? Eller behöver du hjälp att hitta rätt lokal för din verksamhet? Oavsett om du vet exakt vad du söker eller om du behöver rådgivning, så finns vi här och hjälper till.

Vi ser fram emot att höra av dig.

Intresseanmälan

Kontaktinformation

All behandling av personuppgifter sker i enlighet med dataskyddsförordningen och annan dataskyddslagstiftning. Läs mer om GDPR

Ett eget husteam ingår i hyran

Som hyresgäst hos oss får ni ett lokalt husteam som ser till att ni trivs och att allt fungerar som det ska. Vi hjälper till med allt från fastighetsskötsel och energioptimering till skyltning och parkering. Ingen fråga är för stor eller för liten. Och skulle era behov förändras brukar vi alltid kunna erbjuda en lösning, vad det än gäller. Varmt välkommen till en värd bortom det förväntade.

Liknande lokaler i Lund