Gå till huvudinnehåll

Borås Hässleholmen

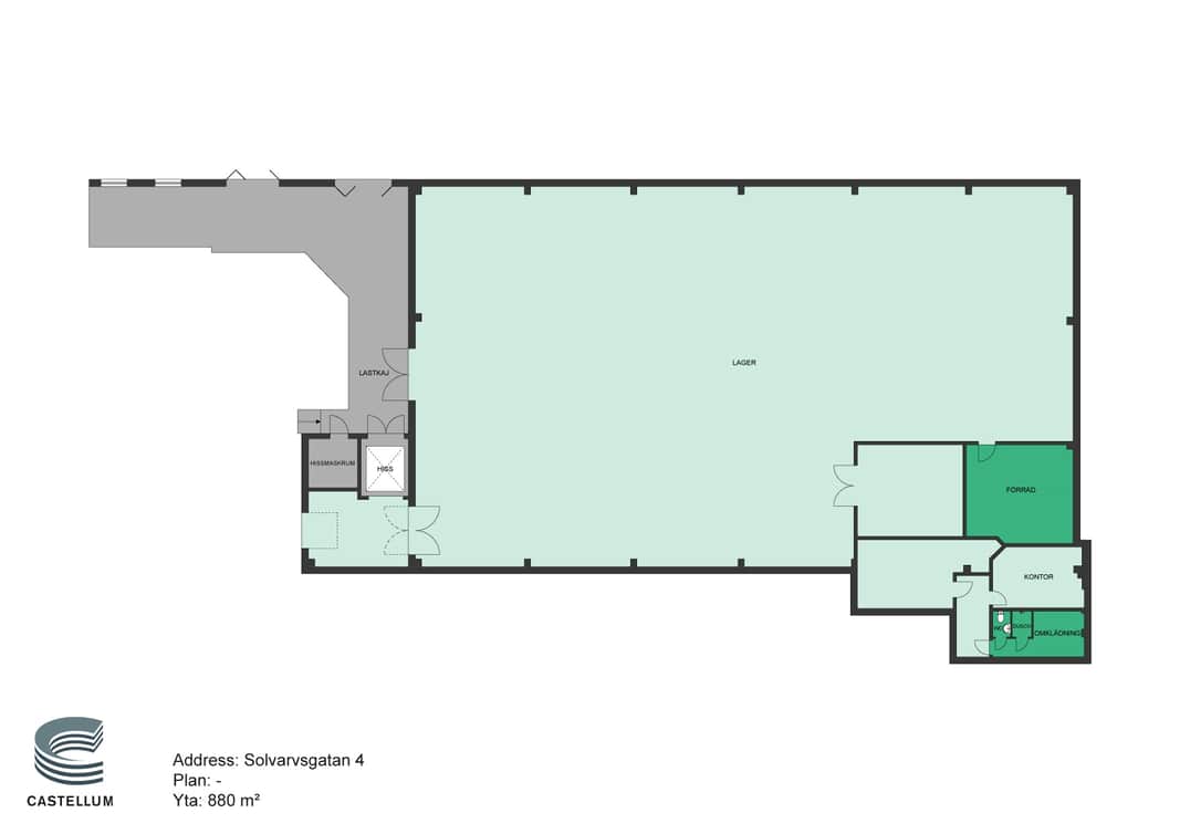
Solvarvsgatan 4

Lager/Logistik

Hyresindikation

51 000 kr/mån

Detaljerad hyresinformation

Tillkommer till hyran:
Driftkostnader f n 140 kr/kvm och år
Fastighetsskatt fn 14 kr/kvm och år
Moms 25%

Yta

880 kvm

Arbetsplatser

3 - 15 st

Så räknar vi antal arbetsplatser

Detta spann är en uppskattning. Det finns flera faktorer som påverkar hur många arbetsplatser som kan rymmas i en lokal. Inte bara storleken på själva lokalen utan även hur den disponeras. Exempelvis kräver en lokal med många enskilda kontor mer plats än öppen planlösning. Andra begränsningar kan vara tillgången på luft och kyla, eller utrymningsvägar.

Tillträdesdatum

Enl. ök.

Våningsplan

1

Lager med två lastbryggor med en port vid varje brygga! Lättillgängligt intill R40!

Här har ni den praktiska lagerlokalen som kan erbjuda förvaring med smidig åtkomst för era leveranser, in- och utlastning. Två lastbryggor med varsin port till vardera brygga. Lastbryggan är delas med andra hyresgäster i huset.

Lättillgängligt med snabb på- och avfart till R40.

Det är en sluttande takhöjd på ca 5,0 m - 6,20 m
Höjden på portarna ca 3,25 m och 2,0 m

Välkommen att kontakta oss för mer info och visning!

Planlösning

Utöver lagerdelen finns ett kontorsrum, omklädningsrum med dusch, wc och pentry.

Området

Fastigheten är belägen i området Hulta, lite utanför Borås Centrum. Här är du nära vatten, skog och natur. Samtidigt är det lätt att ta sig både till och från fastigheten då R40 ligger precis intill.
I närområdet finns bl a en livsmedelsbutik och bensinmack.

Kommunikationer

Busshållplats precis invid fastigheten. Fastigheten belägen precis invid R40, lätt att ta sig till och från fastigheten. Till Borås Centrum tar det ca 7 min med bil.

Parkering

Parkeringar finns i anslutning till fastigheten.

Service

Hos oss har varje hyresgäst ett eget team!

Med ett starkt lokalt engagemang är vi måna om att leva upp till de förväntningar som ställs på en trygg och långsiktig hyresvärd, varje dag, i stort och smått.
Alla våra fastigheter sköts av vår egen personal och som hyresgäst har du tillgång till ett eget Castellumteam som ser till att du trivs hos oss. Och om dina behov så småningom förändras kan vi, tack vare vår storlek, nästan alltid erbjuda en lösning.
För att göra det enkelt för våra hyresgäster att leva hållbart erbjuder vi bland annat gröna hyresavtal och förnybar el.

Fastigheten

I fastigheten finns det blandade verksamheter så som kontor, lager och utbildning.
Fastigheten har ett mycket bra skytläge mot R40.

  • Lättillgängligt
  • Markparkering
  • Lastbrygga

Faciliteter i fastigheten

Omklädningsrum

Energi & hållbarhet

  • Total energianvändning (2025): 19 kWh/m²
  • Klimatpåverkan: 3,26 kg CO₂e/m² (platsbaserad)

Andra hyresgäster i fastigheten

Unigraphics AB - Skolföreningen Borås Folkhögskola - Borås Elskåp AB - Borås Stad - Milen 7 - Parnass Presentreklam Sweden AB - Stora Enso Packaging AB

Karta

Dokument

Kontaktperson

Uthyrare

Erik Williamson

Fråga oss!

Nyfiken på den här lokalen? Eller behöver du hjälp att hitta rätt lokal för din verksamhet? Oavsett om du vet exakt vad du söker eller om du behöver rådgivning, så finns vi här och hjälper till.

Vi ser fram emot att höra av dig.

Intresseanmälan

Kontaktinformation

All behandling av personuppgifter sker i enlighet med dataskyddsförordningen och annan dataskyddslagstiftning. Läs mer om GDPR

Liknande lokaler i Borås