Gå till huvudinnehåll

Borås Knalleland

Evedalsgatan 5

Industri Kontor Lager/Logistik

Yta

1 400 kvm

Arbetsplatser

2 - 40 st

Så räknar vi antal arbetsplatser

Detta spann är en uppskattning. Det finns flera faktorer som påverkar hur många arbetsplatser som kan rymmas i en lokal. Inte bara storleken på själva lokalen utan även hur den disponeras. Exempelvis kräver en lokal med många enskilda kontor mer plats än öppen planlösning. Andra begränsningar kan vara tillgången på luft och kyla, eller utrymningsvägar.

Tillträdesdatum

2026-06-01

Våningsplan

0

Lager med högt i tak! Beläget nära centrum och Knalleland!

Den perfekta lokalen för dig som vill lagerförvara! Det är ca 8 meter i takhöjd utan pelare. Golvbelastning 2000 kg/kvm.

Personalutrymme finns i form av pausrum, omklädningsrum och wc.

Smidigt belägen mellan centrum och Knalleland.

Välkommen att kontakta oss för mer info och visning!

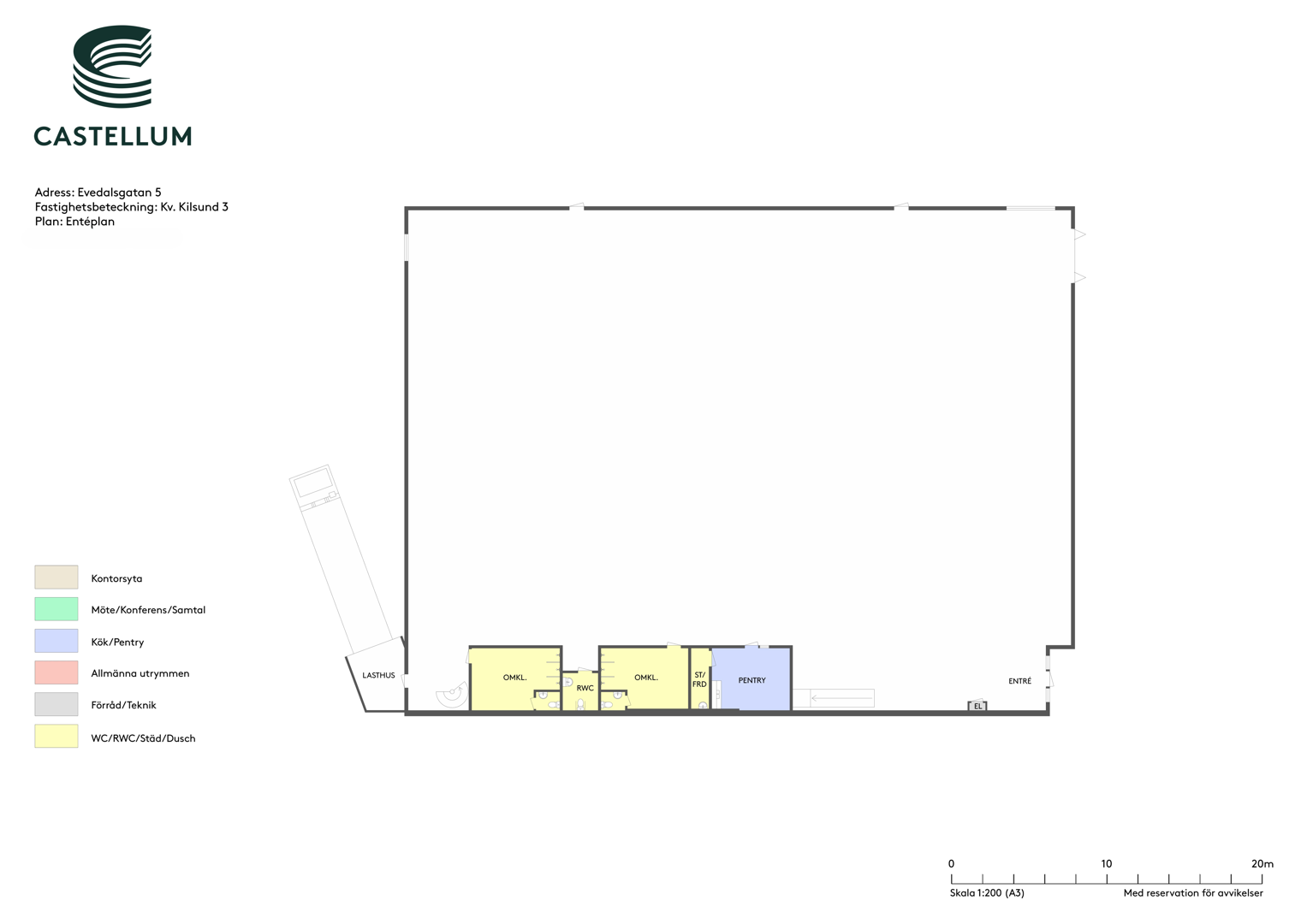
Planlösning

Helt öppen yta med ett entresol, två omklädningsrum, pausrum och WC och förråd. Lokalen kan återställas med ursprångliga portar, 2 st portar i markplan och 1 st lastbrygga/lasthus med 1 st port.

Området

Gångavstånd till restauranger, gym, handel och apotek. Fastigheten ligger på gångavstånd till både Knalleland och Borås centrum.

Kommunikationer

Med fastighetens läge mellan centrum och Knalleland kommer man snabbt ut på lederna. Det finns dessutom bra busskommunikationer, då hållplats är belägen direkt utanför.

Parkering

Bra parkeringsmöjligheter.

Service

Hos oss har varje hyresgäst ett eget team!
Med ett starkt lokalt engagemang är vi måna om att leva upp till de förväntningar som ställs på en trygg och långsiktig hyresvärd, varje dag, i stort och smått.
Alla våra fastigheter sköts av vår egen personal och som hyresgäst har du tillgång till ett eget Castellumteam som ser till att du trivs hos oss.
Och om dina behov så småningom förändras kan vi, tack vare vår storlek, nästan alltid erbjuda en lösning. För att göra det enkelt för våra hyresgäster att leva hållbart erbjuder vi bland annat gröna hyresavtal och förnybar el.

Fastigheten

Fastigheten är relativt centralt belägen vid en genomfartsled, lättillgänglig för besökande och varutransporter.

Fastigheten är en kontors- och industri/lagerbyggnad med stor flexibilitet och bra in-/ urlastningsmöjligheter.

Teknisk information

Portar som kan återställas:
Lastportar: ca 3 m bred och 3,5 m höjd
Vikport: ca 3,45 m bred och 4,5 m höjd

  • Centalt belägen
  • 8 m i takhöjd
  • Två stycken omklädningsrum

Faciliteter i fastigheten

Omklädningsrum Parkering

Service i området

Buss Parkering Restaurang Café Shopping

Energi & hållbarhet

  • Total energianvändning (2025): 5 kWh/m²
  • Klimatpåverkan: 3,48 kg CO₂e/m² (platsbaserad)

Andra hyresgäster i fastigheten

NEFAB Packaging Sweden AB - Craft of Scandinavia AB - Padelcity 1809 AB - Tumstocken Viran 28 AB - Nefab Edge Emballage AB - Assemblin El AB

Karta

Dokument

Kontaktperson

Uthyrare

Erik Williamson

Fråga oss!

Nyfiken på den här lokalen? Eller behöver du hjälp att hitta rätt lokal för din verksamhet? Oavsett om du vet exakt vad du söker eller om du behöver rådgivning, så finns vi här och hjälper till.

Vi ser fram emot att höra av dig.

Intresseanmälan

Kontaktinformation

All behandling av personuppgifter sker i enlighet med dataskyddsförordningen och annan dataskyddslagstiftning. Läs mer om GDPR

Liknande lokaler i Borås