Gå till huvudinnehåll

Borås Knalleland

Lundbygatan 1

Kontor

Yta

3 575 kvm

Arbetsplatser

50 - 180 st

Så räknar vi antal arbetsplatser

Detta spann är en uppskattning. Det finns flera faktorer som påverkar hur många arbetsplatser som kan rymmas i en lokal. Inte bara storleken på själva lokalen utan även hur den disponeras. Exempelvis kräver en lokal med många enskilda kontor mer plats än öppen planlösning. Andra begränsningar kan vara tillgången på luft och kyla, eller utrymningsvägar.

Tillträdesdatum

2026-12-01

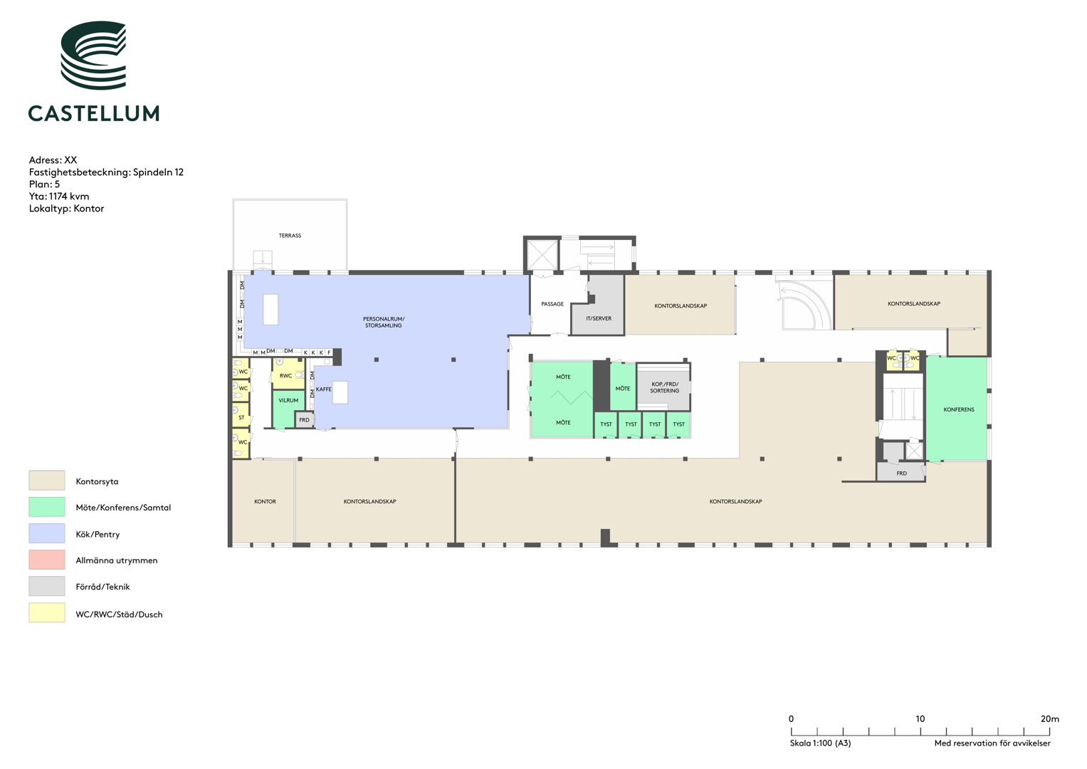
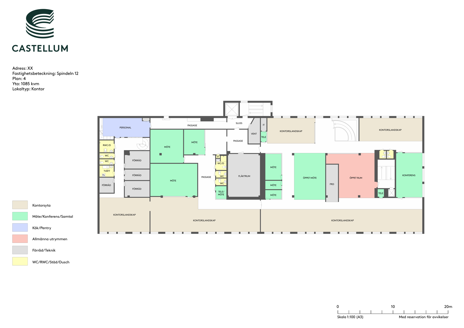
Våningsplan

5

Flexibel kontorslokal med egen terrass i hjärtat av Knalleland

Nu finns möjligheten att etablera er verksamhet i en centralt belägen kontorslokal i populära Knalleland, nära till all service som köpcentrumet erbjuder även närhet till Borås City med ytterligare utbud.

Lokalen sträcker sig över tre våningsplan (plan 3–5) och binds samman av en interntrappa som skapar ett naturligt flöde mellan ytorna. Gott om ljusinsläpp, utmärkt för både kreativa och traditionella arbetsmiljöer. Idealiskt för företag som vill kombinera arbetsplats med visningsyta eller produktion.

Våningsplanen går att hyra var för sig, varje plan är ca 1100-1300 kvm.

En extra bonus är den egna takterrassen, som ger möjlighet till både avkoppling och representativa möten i en inspirerande miljö. Skapa de bästa förutsättningarna för ditt företag, medarbetarna och kunderna.

Detta är en lokal som erbjuder både funktion och karaktär – perfekt för företag som vill ta nästa steg. Var med och utforma planlösningen efter era behov. I samband med lokalanpassning eller ombyggnad är vår ambition att använda återbrukat material så långt det är möjligt och vi prioriterar hållbarhet för minsta möjliga miljöpåverkan. Genom att välja klimatsmarta lösningar kan vi tillsammans göra en stor skillnad.

Välkommen att kontakta oss för mer info och visning!

Planlösning

Generösa och öppna kontorslandskap med möjlighet till showroom och studios. Personalutrymmen och egen takterrass.

Området

Knalleland ligger i ett handelsområde endast 1 km från Borås centrum som håller på att utvecklas till en blandstad. Här finner du både handel, restauranger och bra övrig service. Arenastaden ligger även den här.

Kommunikationer

Goda kommunkationer med buss och enkelt att ta sig hit med bil.

Parkering

Gott om parkering i anslutning till fastigheten.

Service

All tänkbar service i form av t ex butiker, restauranger, caféer.

Fastigheten

En kontors-och handelsfastighet.

  • Egen takterrass
  • Knalleland
  • Stora öppna ytor

Faciliteter i fastigheten

Parkering Terrass Skyltläge Restaurang Gym

Service i området

Buss Parkering Restaurang Café Shopping Gym

Energi & hållbarhet

  • Total energianvändning (2025): 32 kWh/m²
  • Klimatpåverkan: 0,16 kg CO₂e/m² (platsbaserad)

Andra hyresgäster i fastigheten

Nelly NLY AB - Clas Ohlson AB - Fitness 24Seven AB - Nilson Group AB - ZC Trading AB - Espresso House Sweden Aktiebolag - Nestor 2 - Knallens Pizzeria AB - Reitan Convenience Sweden AB

Karta

Dokument

Kontaktperson

Uthyrare

Erik Williamson

Fråga oss!

Nyfiken på den här lokalen? Eller behöver du hjälp att hitta rätt lokal för din verksamhet? Oavsett om du vet exakt vad du söker eller om du behöver rådgivning, så finns vi här och hjälper till.

Vi ser fram emot att höra av dig.

Intresseanmälan

Kontaktinformation

All behandling av personuppgifter sker i enlighet med dataskyddsförordningen och annan dataskyddslagstiftning. Läs mer om GDPR

Liknande lokaler i Borås