Gå till huvudinnehåll

Borås Knalleland

Evedalsgatan 5

Industri Kontor Lager/Logistik

Yta

2 700 kvm

Arbetsplatser

1 - 100 st

Så räknar vi antal arbetsplatser

Detta spann är en uppskattning. Det finns flera faktorer som påverkar hur många arbetsplatser som kan rymmas i en lokal. Inte bara storleken på själva lokalen utan även hur den disponeras. Exempelvis kräver en lokal med många enskilda kontor mer plats än öppen planlösning. Andra begränsningar kan vara tillgången på luft och kyla, eller utrymningsvägar.

Tillträdesdatum

Enl. ök.

Våningsplan

0

Centralt lagerlokal med 2 st portar på lastbrygga.

Trivsam egen entré till kontoret med stora sammanhängande lagerytor i markplan. Personalutrymme med lunchrum, omklädningsrum, dusch, wc. Letar du lagerytor i kombination med kontor i centralt läge är detta rätt val.
Enkel inlastning till lagerdelen via lastbrygga med 2 st portar. Planlösning går att förändra för att passa ert företag och medarbetarna på bästa sätt. Vid anpassningar försöker vi alltid ha hållbarhet och återbruk i åtanke. Vi har tätt samarbete med arkitekt och projektledare när vi utför ombyggnader.

Parkering finns i anslutning till fastigheten.

Välkommen att kontakta oss för mer info och visning!

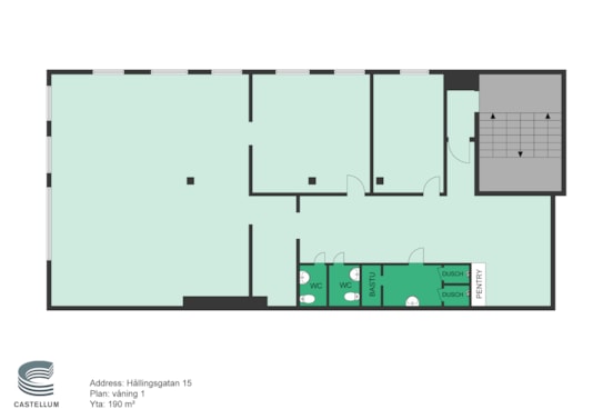
Planlösning

Lagerdelen har en stor öppen planlösning som ger utrymme för flexibla lösningar i markplan i kombination med kontor om ca 250 kvm och möjlighet till omklädning och dusch.

Området

Gångavstånd till restauranger, gym, handel och apotek. Fastigheten ligger på gångavstånd till både Knalleland och Borås centrum.

Kommunikationer

Med fastighetens läge mellan centrum och Knalleland kommer man snabbt ut på lederna. Det finns dessutom bra busskommunikationer, då hållplats är belägen direkt utanför.

Parkering

Bra parkeringsmöjligheter.

Service

Hos oss har varje hyresgäst ett eget team!
Med ett starkt lokalt engagemang är vi måna om att leva upp till de förväntningar som ställs på en trygg och långsiktig hyresvärd, varje dag, i stort och smått.
Alla våra fastigheter sköts av vår egen personal och som hyresgäst har du tillgång till ett eget Castellumteam som ser till att du trivs hos oss.
Och om dina behov så småningom förändras kan vi, tack vare vår storlek, nästan alltid erbjuda en lösning. För att göra det enkelt för våra hyresgäster att leva hållbart erbjuder vi bland annat gröna hyresavtal och förnybar el.

Fastigheten

Fastigheten är relativt centralt belägen vid en genomfartsled, lättillgänglig för besökande och varutransporter.

Fastigheten är en kontors- och industri/lagerbyggnad med stor flexibilitet och bra in-/ urlastningsmöjligheter.

Teknisk information

Lokalens närhet till genomfartsled underlättar transporter och med egen lastbrygga och två portar blir det enkelt och snabbt med in- och utlastning.
Goda parkeringsmöjligheter direkt utanför entré, även enkelt att ta sig med buss.

  • 2 st portar
  • Centralt
  • Lastbrygga

Faciliteter i fastigheten

Parkering

Service i området

Shopping

Energi & hållbarhet

  • Total energianvändning (2025): 5 kWh/m²
  • Klimatpåverkan: 3,29 kg CO₂e/m² (platsbaserad)

Andra hyresgäster i fastigheten

NEFAB Packaging Sweden AB - Craft of Scandinavia AB - Padelcity 1809 AB - Tumstocken Viran 28 AB - Nefab Edge Emballage AB - Assemblin El AB

Karta

Dokument

Kontaktperson

Uthyrare

Erik Williamson

Fråga oss!

Nyfiken på den här lokalen? Eller behöver du hjälp att hitta rätt lokal för din verksamhet? Oavsett om du vet exakt vad du söker eller om du behöver rådgivning, så finns vi här och hjälper till.

Vi ser fram emot att höra av dig.

Intresseanmälan

Kontaktinformation

All behandling av personuppgifter sker i enlighet med dataskyddsförordningen och annan dataskyddslagstiftning. Läs mer om GDPR

Ett eget husteam ingår i hyran

Som hyresgäst hos oss får ni ett lokalt husteam som ser till att ni trivs och att allt fungerar som det ska. Vi hjälper till med allt från fastighetsskötsel och energioptimering till skyltning och parkering. Ingen fråga är för stor eller för liten. Och skulle era behov förändras brukar vi alltid kunna erbjuda en lösning, vad det än gäller. Varmt välkommen till en värd bortom det förväntade.

Liknande lokaler i Borås