Gå till huvudinnehåll

Örebro Aspholmen

Rörvägen 1 B

Kontor

Yta

832 kvm

Arbetsplatser

35 - 60 st

Så räknar vi antal arbetsplatser

Detta spann är en uppskattning. Det finns flera faktorer som påverkar hur många arbetsplatser som kan rymmas i en lokal. Inte bara storleken på själva lokalen utan även hur den disponeras. Exempelvis kräver en lokal med många enskilda kontor mer plats än öppen planlösning. Andra begränsningar kan vara tillgången på luft och kyla, eller utrymningsvägar.

Tillträdesdatum

Enl. ök.

Våningsplan

2

Möjlighet att etablera er på populära Aspholmen!

Nu ges möjlighet att hyra en modern och lättillgänglig kontorslokal med bästa läge på Aspholmen. Med bara 1 km in till Örebro centrum så får ni det bästa med två världar – närheten till stadens puls och samtidigt ett lugnt område för fokuserat arbete. Det är lätt att ta sig till området med bil tack vare smidiga parkeringslösningar, men det finns också bra tillgång till cykelvägar och bussförbindelser för den som föredrar hållbara resalternativ. Här erbjuds ljusa och öppna ytor där vi tillsammans med er utformar ert framtida kontor helt efter era önskemål och behov.

Lokalen har goda möjligheter till flexibel planlösning, vilket gör det enkelt att anpassa för både mindre team och större verksamheter. Passa på att ta chansen till en härligare arbetsmiljö, som både gynnar medarbetare och affärer!

Hör gärna av er för mer information och för att boka in en visning – vi hjälper er gärna att hitta ert nya drömkontor på Aspholmen!

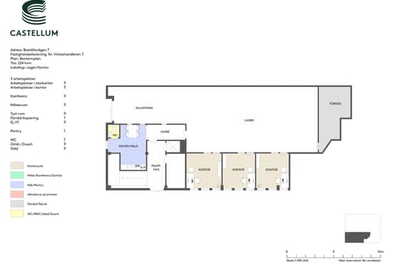
Planlösning

832 kvm fördelat på öppna kontorslandskap, pausyta, konferensrum samt separata kontor/samtalsrum. Här finns möjlighet att anpassa lokalen efter just er verksamhet och behov.

Området

Aspholmen är ett av Örebros snabbast växande områden och det är inte undra på. Här har du allt du behöver för att lösa det där kluriga vardagspusslet.

Kommunikationer

Tack vare närheten till E18/E20 tar du dig snabbt in och ut ur området. Området ligger både smart och centralt, oavsett om du tar dig hit med buss, bil eller varför inte cykel? En fin och nyrenoverad cykelbana löper hela vägen in till city.

Parkering

På Aspholmen är det lätt att parkera bilen, här finns gott om p-platser i hela området. Urladdat batteri eller tom tank? Inga problem, här har du nära till såväl laddstolpar som bensinstationer.

Service

Vill du uträtta ärenden eller träna under lunchen? Här finns ett varierat utbud av butiker och träningsanläggningar, som till exempel gym, padel, bowling, simulatorgolf, simhall och massage. För den hungriga finns också mycket att välja på, allt från sallader och husmanskost till kebab och italienskt. Och varför inte passa på att köpa fredagsgodis eller fika till konferensen?
Du tar dig enkelt hit, enkelt ut på E18/E20 och enkelt in till stan.

Fastigheten

Förnyelsebar fjärrvärme och grön el.
Miljöbyggnad Silver.

  • Lätt att ta sig till och från
  • Goda parkeringsmöjligheter
  • Stort serviceutbud i området

Faciliteter i fastigheten

Parkering Restaurang

Service i området

Buss Parkering Gym

Energi & hållbarhet

  • Certifieringar: Miljöbyggnad nyproduktion, Silver
  • Total energianvändning (2025): 12 kWh/m²
  • Klimatpåverkan: 1,25 kg CO₂e/m² (platsbaserad)

Andra hyresgäster i fastigheten

Swedol - NCC - DAW Nordic - Hydroscand AB - Inköparen 1 - Würth - Rosalis Deli - Printeliten

Visualisering

Karta

Dokument

Kontaktperson

Kommersiell Förvaltare

Reynolds Ndugwa Kigula

Fråga oss!

Nyfiken på den här lokalen? Eller behöver du hjälp att hitta rätt lokal för din verksamhet? Oavsett om du vet exakt vad du söker eller om du behöver rådgivning, så finns vi här och hjälper till.

Vi ser fram emot att höra av dig.

Intresseanmälan

Kontaktinformation

All behandling av personuppgifter sker i enlighet med dataskyddsförordningen och annan dataskyddslagstiftning. Läs mer om GDPR

Liknande lokaler i Örebro