Gå till huvudinnehåll

Örebro City

Olaigatan 2-4/Östra Bangatan 28

Kontor

Yta

110 - 910 kvm

Arbetsplatser

1 - 100 st

Så räknar vi antal arbetsplatser

Detta spann är en uppskattning. Det finns flera faktorer som påverkar hur många arbetsplatser som kan rymmas i en lokal. Inte bara storleken på själva lokalen utan även hur den disponeras. Exempelvis kräver en lokal med många enskilda kontor mer plats än öppen planlösning. Andra begränsningar kan vara tillgången på luft och kyla, eller utrymningsvägar.

Tillträdesdatum

Enl. ök.

Våningsplan

3

Flexibel kontorslokal, 110 - 910 kvm

Flexibel kontorslokal med perfekt läge i centrala Örebro.

Lokalen är idag fördelad på tre plan, så beroende på er verksamhets storlek kan ni ta allt från 1-3 plan.

På våningsplan 2 är lokalen om 110 kvadratmeter.
En trappa upp, plan 3, är lokalen 329 kvadratmeter.
På plan 4 går lokalen att dela upp, från 200 kvadratmeter till en utökad yta som blir 471 kvadratmeter.

Här erbjuds både öppna ytor samt egna kontor för 1-2 personer. En bra mix och stora valmöjligheter för era anställda.

Gott om sällskapsytor, vilorum, konferensrum mm. Vill ni äta lunchlådan ute i solen finns en fin innergård att nyttja. För er som vill äta lunch på stan, sitter ni en kort promenad från Örebro citys stora utbud av restauranger!

För pendlaren sitter ni granne med Resecentrum/Centralstation och garage finns dessutom i huset!

Varmt välkomna med er intresseanmälan, denna lokal behöver ses på plats! Tilltäde enligt överenskommelse!

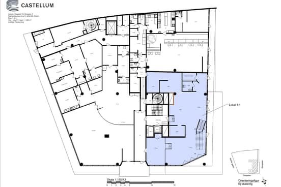
Planlösning

Vill ni sitta i öppet landskap, i enskilda rum eller kanske aktivitetsbaserat. Här finns flera valmöjligheter för er som vill vara en flexibel arbetsgivare!

Alternativa storlekar som finns att tillgå är bland annat:
110 kvm på våning 2,
329 kvm på våning 3,
och 471 kvm på våning 4.
Våning 4 skulle också kunna delas upp i två lokaler om 205 kvm respektive 266 kvm.
Alternativt om ni vill hyra hela lokalen om 910 kvm (våning 2, 3 och 4).

Området

100 meter till Järntorget och Örebro slott.

Kommunikationer

100 meter till Stadsbuss vid Järntorget. 100 meter till Örebro Centralstation och Resecentrum.

Parkering

41 stycken garageplatser för hyresgäster.

Service

Närhet till norrcity med dess kommersiella utbud. Flertal restauranger i direkt närhet till fastigheten.

Fastigheten

Vacker fastighet med mycket bra läge.

  • Flexibla ytor
  • Cityläge och granne med Resecentrum
  • Grön innergård

Faciliteter i fastigheten

Uteplats Parkering Garage Restaurang

Service i området

Resecentrum Buss Parkering Restaurang Café Hotell Tåg Shopping Gym

Energi & hållbarhet

  • Certifieringar: LEED O+M, Gold
  • Total energianvändning (2025): 19 kWh/m²
  • Klimatpåverkan: 3,2 kg CO₂e/m² (platsbaserad)

Andra hyresgäster i fastigheten

SVT - Epical Sweden AB - Ölstånkan 14 - VR Sverige AB - Ölstånkan 14 - Bergelin Business - NESC - Santi AB

Karta

Dokument

Kontaktperson

Kommersiell Förvaltare

Tomas Carlsson

Fråga oss!

Nyfiken på den här lokalen? Eller behöver du hjälp att hitta rätt lokal för din verksamhet? Oavsett om du vet exakt vad du söker eller om du behöver rådgivning, så finns vi här och hjälper till.

Vi ser fram emot att höra av dig.

Intresseanmälan

Kontaktinformation

All behandling av personuppgifter sker i enlighet med dataskyddsförordningen och annan dataskyddslagstiftning. Läs mer om GDPR

Ett eget husteam ingår i hyran

Som hyresgäst hos oss får ni ett lokalt husteam som ser till att ni trivs och att allt fungerar som det ska. Vi hjälper till med allt från fastighetsskötsel och energioptimering till skyltning och parkering. Ingen fråga är för stor eller för liten. Och skulle era behov förändras brukar vi alltid kunna erbjuda en lösning, vad det än gäller. Varmt välkommen till en värd bortom det förväntade.

Liknande lokaler i Örebro