Gå till huvudinnehåll

Jönköping Haga

Kindgrensgatan 3

Kontor Lager/Logistik

Hyresindikation

44 000 kr/mån

Detaljerad hyresinformation

Hyran inkluderar fastighetsskatt. Driftkostnader kan variera från diverse verksamheter.

Yta

524 kvm

Arbetsplatser

3 - 15 st

Så räknar vi antal arbetsplatser

Detta spann är en uppskattning. Det finns flera faktorer som påverkar hur många arbetsplatser som kan rymmas i en lokal. Inte bara storleken på själva lokalen utan även hur den disponeras. Exempelvis kräver en lokal med många enskilda kontor mer plats än öppen planlösning. Andra begränsningar kan vara tillgången på luft och kyla, eller utrymningsvägar.

Tillträdesdatum

Enl. ök.

Våningsplan

1

Lagerl/kontorslokal på Haga

På Haga finns nu en ledig lager- och kontorslokal. Lokalen erbjuds i befintligt skick, men det finns även möjlighet att anpassa den efter verksamhetens behov.

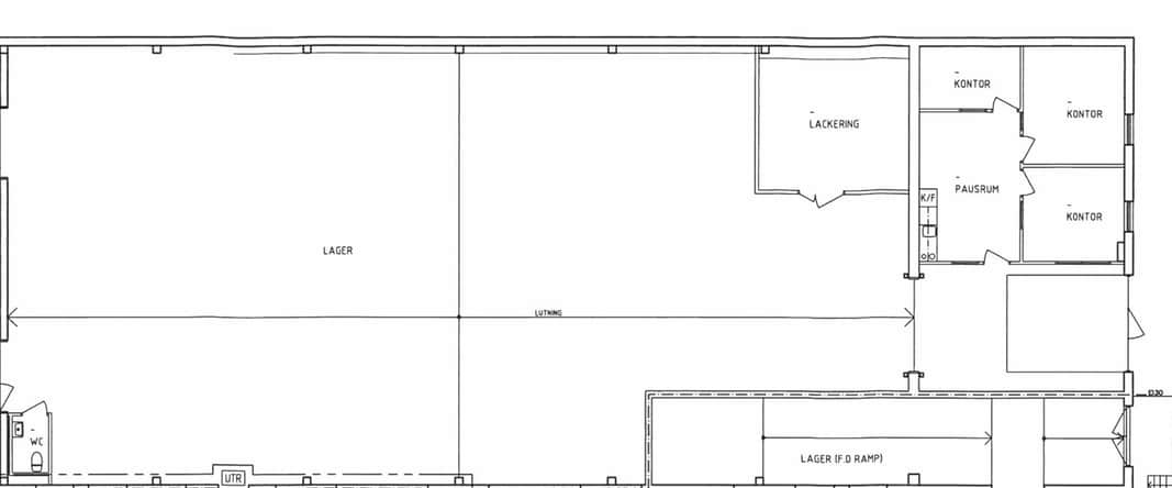
Kontorsdelen rymmer cirka 3–4 skrivbord och är utrustad med ett mindre pentry/kök.

Lagerytan är drygt 470 kvm och har en port anpassad för mindre skåpbil eller bil. Här finns gott om utrymme för förvaring.

Planlösning

Lokalen är på markplan och innehåller 1 WC, 2 kontor, 1 mindre kontor/mötesrum och kök/pentry.

Området

Haga är beläget söder om Jönköpings centrum och har en strategisk placering vid motorvägarna E4 och riksväg 40. Det är ett industriområde som har utvecklats sedan 1950-talet. Platsen har blivit attraktiv för företagsetableringar tack vare sitt läge vid en stor trafikkorsning, Trafikplats Ljungarum. Dessutom sträcker sig Tabergsån genom stadsdelen och bidrar till dess natursköna omgivningar.

Kommunikationer

Läge i anslutning till riksväg 40 och E4:an

Parkering

Parkeringsplatser till fastighetens hyresgäster och deras besökare finns i anslutning till fastigheten

Fastigheten

Överstycken 25 är en imponerande fastighet belägen längs riksväg 40 med utmärkt skyltläge. Den har snabb tillgång till E4:an och gott om parkeringsmöjligheter. Byggd år 2018, sträcker sig fastigheten över nästan 4000 kvadratmeter och erbjuder en rymlig och modern plats för olika typer av verksamheter.

  • Nära till Riksväg 40/E4
  • Port
  • Stora lagermöjligheter

Energi & hållbarhet

  • Total energianvändning (2025): 5 kWh/m²
  • Klimatpåverkan: 3,35 kg CO₂e/m² (platsbaserad)

Andra hyresgäster i fastigheten

Tobidan-Bremsomat AB - Borrman Bygg & Plattsättning AB - Miljöma Aktiebolag - Momentum Industrial AB - AB Alfort & Cronholm - Brion Rör Jönköping AB - Carspect AB - Matsco AB - Indoor Golf Jönköping AB - Tyréns Sverige AB - Kungsmöbler AB

Karta

Dokument

Kontaktperson

Kommersiell Förvaltare

Jonas Larsson

Fråga oss!

Nyfiken på den här lokalen? Eller behöver du hjälp att hitta rätt lokal för din verksamhet? Oavsett om du vet exakt vad du söker eller om du behöver rådgivning, så finns vi här och hjälper till.

Vi ser fram emot att höra av dig.

Intresseanmälan

Kontaktinformation

All behandling av personuppgifter sker i enlighet med dataskyddsförordningen och annan dataskyddslagstiftning. Läs mer om GDPR

Liknande lokaler i Jönköping