Gå till huvudinnehåll

Lund Gastelyckan

Sellerigatan 23

Butik Kontor Lager/Logistik

Yta

1 997 kvm

Arbetsplatser

10 - 30 st

Så räknar vi antal arbetsplatser

Detta spann är en uppskattning. Det finns flera faktorer som påverkar hur många arbetsplatser som kan rymmas i en lokal. Inte bara storleken på själva lokalen utan även hur den disponeras. Exempelvis kräver en lokal med många enskilda kontor mer plats än öppen planlösning. Andra begränsningar kan vara tillgången på luft och kyla, eller utrymningsvägar.

Tillträdesdatum

Enl. ök.

Perfekt läge på Gastelyckan – Rymlig och flexibel lokal med hög synlighet

Välkommen till en lokal som kombinerar funktion, tillgänglighet och synlighet på bästa sätt! Här får du generösa ytor med hela fyra portar – perfekt för smidig in- och utlastning. Lokalen passar utmärkt för handel, showroom eller byggrelaterad verksamhet och kan enkelt anpassas efter just din verksamhets behov.

Lokalen är placerad mitt i fastigheten, med Elektroskandia och JB som närmaste grannar – vilket ger ett etablerat sammanhang och goda synergier för rätt typ av verksamhet.

Det strategiska läget intill E22 ger både hög synlighet och enkel tillgång för kunder, leveranser och medarbetare. Gott om parkeringsplatser finns precis utanför entrén, vilket gör det smidigt och bekvämt för både personal och besökare.

En smart och flexibel lösning för dig som söker en representativ och praktisk lokal i ett växande och vältrafikerat område.

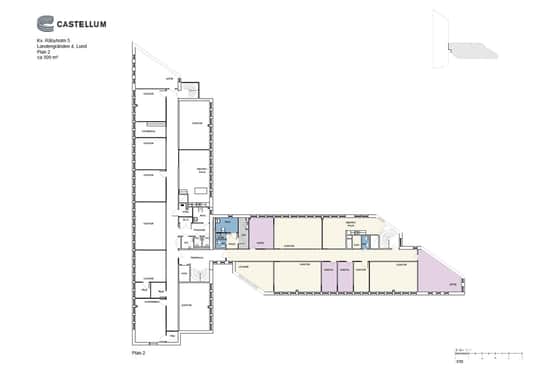
Planlösning

Plan 1 Består av butik-/verkstadsdel med oljeavskiljare samt omklädningsrum – en praktisk och funktionell yta för verksamhet med tekniska krav.

Plan 2 Erbjuder en kontorsdel med avskilt pentry, kontor, konferensrum samt ett rymligt och användbart entresolplan som skapar extra flexibilitet och även här möjlighet till omklädningsrum.

Området

Lunds största industriområde Gastelyckan ligger i stadens sydöstra delar. Området omges i väst av E22, i norr av Dalbyvägen och i öst av det nya bostadsområdet Råbylund. I Gastelyckans södra delar utvecklas just nu området och första steget i utvecklingen som togs var bygget av den nya av och påfarten till E22 samt förlängningen av Sydöstra vägen. I industriområdet har verksamheter klustrats kring fordon och fordonsförsäljning, maskinuthyrning, byggvaruhandel både för konsumenter och företag.

Parkering

Finns i direkt ansutning till fastigheten för såväl besökare som anställda.

Fastigheten

Fastigheten Sellerin 3 är geografiskt belägen på det nya exploateringsområdet Hasslanda, ett stenkast från Lunds äldsta industriområde Gastelyckan. Fastigheten är certifiread enligt miljlbyggnad silver och möjlighet till solceller finns på taket.

  • Toppläge med hög synlighet
  • Smidig logistik
  • Flexibla lokaler för flera behov

Faciliteter i fastigheten

Parkering

Energi & hållbarhet

  • Certifieringar: Miljöbyggnad nyproduktion, Silver
  • Total energianvändning (2025): 8 kWh/m²
  • Klimatpåverkan: 0,04 kg CO₂e/m² (platsbaserad)

Andra hyresgäster i fastigheten

J Bil AB - Sellerin 3 - Elektroskandia

Karta

Dokument

Kontaktperson

Uthyrare

Linda Corneliusson

Fråga oss!

Nyfiken på den här lokalen? Eller behöver du hjälp att hitta rätt lokal för din verksamhet? Oavsett om du vet exakt vad du söker eller om du behöver rådgivning, så finns vi här och hjälper till.

Vi ser fram emot att höra av dig.

Intresseanmälan

Kontaktinformation

All behandling av personuppgifter sker i enlighet med dataskyddsförordningen och annan dataskyddslagstiftning. Läs mer om GDPR

Liknande lokaler i Lund