Gå till huvudinnehåll

Malmö Kirsebergsstaden

Lundavägen 56

Lager/Logistik

Yta

553 kvm

Tillträdesdatum

Enl. ök.

Våningsplan

1

Industrilokal med bra läge i Kirseberg

Välkommen till en välplanerad och flexibel lagerlokal om 553 kvm – en yta som kombinerar funktionalitet, god logistik och trivsam arbetsmiljö. Lokalen erbjuder en generös takhöjd på cirka 3,5 meter och nås smidigt via en markport, vilket skapar effektiva flöden för både in- och utlastning. De stora fönsterpartierna i två väderstreck ger ett rikligt ljusinsläpp och bidrar till en ljus och behaglig miljö.
Här finns alla förutsättningar för en verksamhet som vill kombinera praktiska ytor med goda personalutrymmen. Lokalen är utrustad med kök samt omklädningsrum med dusch, vilket gör den särskilt lämplig för verksamheter där ombyten förekommer. Den öppna och lättmöblerade ytan ger stor flexibilitet och kan anpassas för olika typer av lagring, lättare produktion eller logistiska flöden – allt beroende på verksamhetens behov.
Detta är en lokal som erbjuder både funktion och komfort, och som enkelt kan formas för att stödja en effektiv och hållbar vardag.

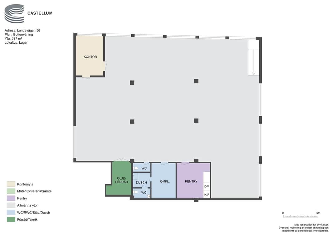
Planlösning

Planlösningen är genomtänkt för att skapa en öppen, flexibel och lättmöblerad lager- och arbetsyta där logistiken kan fungera utan hinder. Den största delen av lokalen utgörs av en sammanhållen lageryta med generös takhöjd, vilket ger goda möjligheter att arbeta med höga hyllsystem, volymkrävande varor eller intern hantering som kräver rymd och överblick. Den öppna strukturen gör det enkelt att anpassa ytan efter verksamhetens behov – oavsett om fokus ligger på lagring, packning, distribution eller lättare produktion.
Stödytorna är smart placerade för att underlätta vardagen. Ett funktionellt kök fungerar som en naturlig samlingspunkt för personalen, perfekt för pauser, kortare avstämningar eller enklare måltider. Intill köket finns omklädnings- och duschutrymmen som är integrerade på ett sätt som gör dem lättillgängliga utan att störa verksamhetens flöden.
Markporten är strategiskt placerad för att möjliggöra snabba och smidiga transporter. In- och utlastning kan hanteras effektivt utan att påverka övriga funktioner i lokalen, vilket bidrar till en trygg och välorganiserad arbetsmiljö.
Sammantaget erbjuder planlösningen en genomtänkt och användarvänlig struktur som ger verksamheten goda förutsättningar att växa och utvecklas. Lokalen kan enkelt anpassas efter olika typer av verksamheter och skapar en stabil grund för effektiva arbetsprocesser.

Området

Fastigheten är belägen ett par km norr om centrala Malmö. Omgivande bebyggelse utgörs huvudsakligen av kontor, småindustrier, butiker samt bostäder. Granne till lokalen finns bland annat Sportfiskegiganten, Centrumstäd, Lektus Bygg och projektledning.

Kommunikationer

Om man är bilburen tar man sig snabbt ut på motorvägen och på fem minuter är man inne i centrala Malmö. Region och stadsbussar stannar utanför fastigheten på Lundavägen. Stadsbuss nr 4 mot Segevång tar ca 10 minuter från Malmö Centralstation och till Lundavägen 56. Fastigheten har ett fantastiskt skyltläge mot motorvägen och järnvägen.

Service

Restauranger finns på gångavstånd och hotell finns på några minuters bilväg härifrån. Shoppingcentrat Entré ligger bara någon minuts bilfärd från fastigheten.

Fastigheten

Industrifastighet med två sammanbyggda huskroppar, en kontorsdel och en industri/lagerdel uppförda 1946.

Kontorsdelen är i tre plan med tegelfasader. Lagerdelen har betongstomme, plåtfasader och papptak.

  • Lager med markport
  • Goda kommunikationer
  • Nära ringväg och E22

Faciliteter i fastigheten

Omklädningsrum Lastport Parkering Kök Garage

Service i området

Buss Parkering Restaurang Café Shopping Gym Grönområde

Energi & hållbarhet

  • Total energianvändning (2025): 9 kWh/m²
  • Klimatpåverkan: 7,46 kg CO₂e/m² (platsbaserad)

Andra hyresgäster i fastigheten

Sportfiskegiganten i Malmö AB - The CaliFactory AB - Europeisk Kapell- och Tälttvätt AB - Naou AB - S.T.S.B.B i Skåne AB - Brinks Motor Malmö AB - Nordhaus AB - Accord Skylt & Reklam AB - Centrumstäd i Lund AB - Lektus Projekt och Byggledning i MalmöAB - Ruppel Per-Olof - RoosClean AB - GP-Service - Enterprodukter AB

Karta

Dokument

Kontaktperson

Uthyrare

Linda Corneliusson

Fråga oss!

Nyfiken på den här lokalen? Eller behöver du hjälp att hitta rätt lokal för din verksamhet? Oavsett om du vet exakt vad du söker eller om du behöver rådgivning, så finns vi här och hjälper till.

Vi ser fram emot att höra av dig.

Intresseanmälan

Kontaktinformation

All behandling av personuppgifter sker i enlighet med dataskyddsförordningen och annan dataskyddslagstiftning. Läs mer om GDPR

Ett eget husteam ingår i hyran

Som hyresgäst hos oss får ni ett lokalt husteam som ser till att ni trivs och att allt fungerar som det ska. Vi hjälper till med allt från fastighetsskötsel och energioptimering till skyltning och parkering. Ingen fråga är för stor eller för liten. Och skulle era behov förändras brukar vi alltid kunna erbjuda en lösning, vad det än gäller. Varmt välkommen till en värd bortom det förväntade.

Liknande lokaler i Malmö