Gå till huvudinnehåll

Stockholm City/Norra Bangården

Dalagatan 7

Kontor

Hyresindikation

144 000 kr/mån

Detaljerad hyresinformation

Bashyra

Yta

361 kvm

Arbetsplatser

28 - 32 st

Så räknar vi antal arbetsplatser

Detta spann är en uppskattning. Det finns flera faktorer som påverkar hur många arbetsplatser som kan rymmas i en lokal. Inte bara storleken på själva lokalen utan även hur den disponeras. Exempelvis kräver en lokal med många enskilda kontor mer plats än öppen planlösning. Andra begränsningar kan vara tillgången på luft och kyla, eller utrymningsvägar.

Tillträdesdatum

2026-07-01

Våningsplan

3

Trivsamt kontor med bra ytor nära T-centralen

Nu finns en charmig lokal på Dalagatan 7 som erbjuder generös takhöjd och stora fönsterpartier som ger fint ljus och rymd i lokalen. Kakelugn, fint burspråk och två balkonger ger även fin karaktär till lokalen.

Tillgång till garage i fastigheten för både medarbetare och besökare samt bra kommunikationer med flertalet bussar och tåg gör det enkelt att pendla till och från jobbet. Svårslaget läge då ni även har T-centralen, Arlanda express och flygbussar på gångavstånd.

Läget är toppen, med stadens puls runt husknuten och flertalet restauranger och fik att välja bland.

Kontakta oss gärna för mer information eller för att boka en visning!

Vill du skapa en arbetsplats att längta till? Behöver du hjälp att utforma ditt framtida kontor?
Ta gärna hjälp av oss på Castellum! Vi har nycklarna för att utforma en hållbar och attraktiv arbetsplats, där medarbetarna mår bra och presterar på topp.

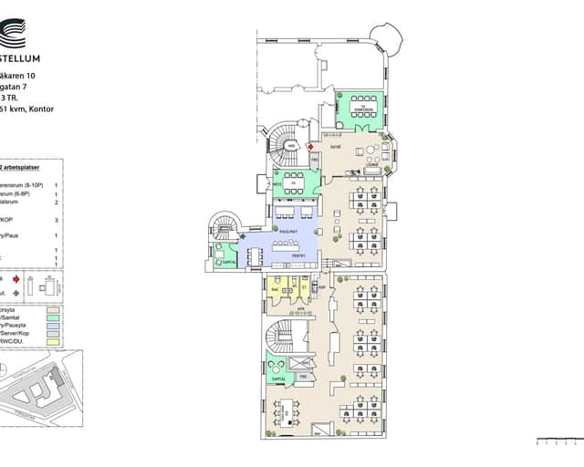
Planlösning

På plan 3 erbjuds en välplanerad kontorslokal om cirka 361 kvm, utformad för att ge en modern och trivsam arbetsmiljö med tydliga zoner för både fokus och samarbete. Lokalen välkomnar besökare med en entré som öppnar upp mot en central kärna av mötesrum och sociala ytor, vilket skapar ett naturligt flöde genom hela kontoret.
Arbetsplatserna är placerade i öppna ytor längs fasaden för att maximera ljusinsläppet och skapa en ljus och behaglig arbetsmiljö. Dessa ytor är möblerade i flexibla kluster som lämpar sig för teamarbete men kan enkelt anpassas efter olika arbetssätt eller önskad kapacitet.
Runt arbetsytorna finns flera mötesrum i varierande storlek – från större konferensrum som passar kund- och ledningsmöten till mindre rum för snabba avstämningar och digitala möten. Det finns även avskilda tysta rum som ger möjlighet till fokusarbete när det behövs.
I anslutning till lokalens mittpunkt ligger pentryt, som fungerar som både lunchyta och en social samlingsplats för medarbetarna. Här finns utrymme för informella möten och spontana samtal, vilket bidrar till en levande och dynamisk arbetsmiljö. Lokalen har även två förråd och kopieringsyta för smidig åtkomst i vardagen.
WC-gruppen, inklusive HWC, är placerad centralt i lokalen och är lätt åtkomlig från samtliga delar av kontoret. Genomtänkt placering av teknik- och serviceytor gör att lokalen är flexibel och kan anpassas efter framtida behov.
Med sin kombination av öppna ytor, mötesrum och sociala miljöer erbjuder lokalen en välbalanserad arbetsplats som stödjer både samarbete och koncentration. Den passar verksamheter som söker en modern och representativ lokal i ett attraktivt innerstadsläge.

Området

Norra Bangården – en levande knutpunkt för framtidens arbetsliv

Precis där Vasastan, Norrmalm och Kungsholmen möts växer ett nytt cityläge fram – Norra Bangården. Ett område fullt av kontraster, där industrihistorien möter modern arkitektur och framtidens arbetsplatser tar form. Här finns innerstadens hela utbud inom räckhåll, med bara några minuter till Stockholms centralstation, tunnelbana, pendeltåg, flygbussar och cykelstråk.

Norra Bangården är en plats i rörelse – med ett växande utbud av caféer, restauranger, hotell och kulturella upplevelser. Här finns plats för både fokus och flöde, med grönområden att landa i under arbetsdagen och ett stadsliv som alltid är nära. Det är en del av city som ännu känns lite hemlig – men inte så länge till.

Det här är en plats att ta del av, bjuda in till och längta tillbaka till.

Kommunikationer

Med en kort promenad når du T-Centralen, Sankt Eriksplan och Hötorget. Ett flertal busslinjer och Arlanda Express ligger precis runt knuten. För dig som cyklar finns finns både goda cykelförbindelser och cykelbanor precis utanför fastigheten. Gemensamt cykelrum med laddskåp och omklädningsrum underlättar cykelpendlingen ytterligare.

Parkering

På Torsgatan 12 finns ett garage för både besökande och reserverade garageplatser, med eller utan el. Är du intresserad kontakta Aimo Park på telefonnummer 0771-96 90 00.

Fastigheten

Läkaren 11 är en karaktärsfull kontorsfastighet från 1929, där den klassiska arkitekturen skapar en varm och inbjudande identitet redan vid första intrycket. Bakom fasaden möts du av moderna, flexibla kontorsytor med naturligt ljus och en atmosfär som gör arbetsdagen både inspirerande och effektiv.
Fastigheten är LEED Gold‑certifierad, vilket innebär höga standarder för energieffektivitet, materialval och inomhusklimat – ett kvalitetsmärke som uppskattas av företag som söker hållbara och framtidssäkra arbetsmiljöer.
Här får verksamheter en arbetsplats där historisk elegans möter modern funktionalitet. Läkaren 11 erbjuder en inspirerande miljö att arbeta i, perfekt för företag som värdesätter trivsel, hållbarhet och ett kontor som gör intryck.

  • Centralt läge
  • Garage
  • Bra kommunikationer

Faciliteter i fastigheten

Balkong Uteplats Garage

Service i området

Buss Parkering Restaurang Café Hotell Tåg Shopping Elbilsladdning Gym Grönområde T-bana

Energi & hållbarhet

  • Certifieringar: LEED O+M, Gold
  • Total energianvändning (2025): 22 kWh/m²
  • Klimatpåverkan: 4,31 kg CO₂e/m² (platsbaserad)

Andra hyresgäster i fastigheten

Etimo AB - Handelsbanken - Db Equipment Media AB - Sigholm Tech AB - Lexly AB - Martela AB - Studieförbundet - Session Map /Session Academy - Engagemangsnätverket AB - i-Centrum AB - Studio Viktor Flumé AB - Stockholms Rygg och Ledmottagning AB - Kom In Helsingborg AB

Karta

Dokument

Kontaktperson

Uthyrare

Maria Lundberg

Fråga oss!

Nyfiken på den här lokalen? Eller behöver du hjälp att hitta rätt lokal för din verksamhet? Oavsett om du vet exakt vad du söker eller om du behöver rådgivning, så finns vi här och hjälper till.

Vi ser fram emot att höra av dig.

Intresseanmälan

Kontaktinformation

All behandling av personuppgifter sker i enlighet med dataskyddsförordningen och annan dataskyddslagstiftning. Läs mer om GDPR

Liknande lokaler i Stockholm