Gå till huvudinnehåll

Stockholm Kista

Esbogatan 18

Kontor

Yta

524 kvm

Tillträdesdatum

Enl. ök.

Våningsplan

2

Ljus och modern kontorslokal med utmärkt skyltläge mot E4

Välkommen till en ljus och inbjudande kontorslokal - med generösa fönsterpartier i flera väderstreck och ett fantastiskt skyltläge mot E4.

Lokalen har en flexibel planlösning med främst stora öppna ytor och en härlig sektion som lämpar sig för många matplatser, loungeytor eller större möten.

I fastigheten finns flera restauranger och caféer där du och ditt team kan njuta av lunch eller ta en kaffe under dagen. Du har även tillgång till gym, omklädningsrum, bastu och en härlig terrass med utsikt över området.

Parkering är enkelt - både garage och markparkering finns med gott om plats för personal och besökare.

Läget är strategiskt och lättillgängligt, nära E4:an och med goda kommunikationer.
Från fastigheten tar det cirka 8 minuter att promenera till tunnelbanan (T-bana Akalla), och busslinjerna som passerar utanför byggnaden tar dig direkt till stationen.

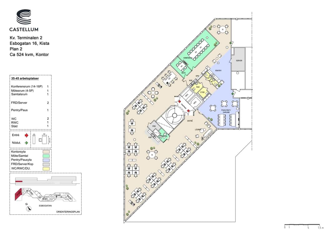
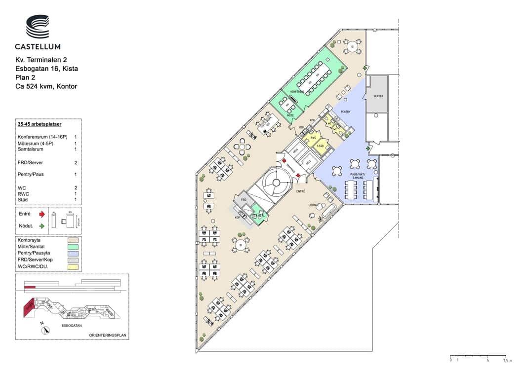
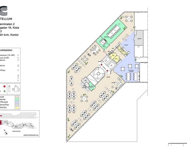
Planlösning

ChatGPT sade:

Lokalen har en öppen och luftig planlösning som skapar en naturlig balans mellan samarbete och fokus. De generösa ytorna ger plats för både arbetszoner, loungeytor och större mötesmiljöer - perfekt för företag som vill anpassa kontoret efter sina behov och skapa en modern, trivsam arbetsplats.

Området

Välkommen till Kista. Platsen där människor från hela världen samlas för att upptäcka, utforska, uppfinna och uppleva. Här testkörs ny teknik, här breder gatukonsten ut sig, här överraskar restaurangerna och här frodas grönska och innovationer, precis som nya förmågor och forskarstjärnor.

Ändå har Kista mer att erbjuda. De närmaste åren kommer stadsdelen få flera tusen nya bostäder och arbetsplatser samt bli en del av tvärbanan, så att livet kan sprudla i varje hörn och under dygnets alla timmar. Och för att ytterligare ta vara på Kistas fulla potential har vi på Castellum gått samman med andra aktörer i ett initiativ som ger stadsdelen en kulturell och social skjuts.

Vad som händer mellan milstolparna är det ingen som vet. Men hör ni hemma bland de nytänkande, är detta platsen för er. Vi lovar att alltid vara på tårna för att hålla jämna steg med både ert företags och Kistas utveckling.

Kommunikationer

Från fastigheten till tunnebanan tar det ca 8 minuter att promenera (T-bana Akalla). Olika Busslinjer går genom området. Busshållplatsen utanför fastigheten tar dig direkt till Tunnelbanestationen Akalla.

Service

I fastigheten finns restaurang, gym och idrottshall. I Kista finns det en mängd olika träningsanläggningar. S.A.T.S, Actic, Friskis och Svettis, 24-seven, alla dessa finns inom några minuters promenad. Förutom träning inomhus tar man sig lätt bort till Ursviks fina motionsspår. Det finns både 2,5 kvm, 5 kvm och 1 mils spår.

Fastigheten

Kontorsfastighet som har renoverats och utvecklas de senaste åren och har ett utmärkt skyltläge mot E4:an. Fastigheten har en area på ca: 15 000 kvm och erbjuder ett flertal entréer.

  • Utmärkt skyltläge
  • Härligt ljusinsläpp
  • Takaltan

Service i området

Buss Parkering Restaurang Gym T-bana

Energi & hållbarhet

  • Certifieringar: LEED O+M, Gold
  • Total energianvändning (2025): 26 kWh/m²
  • Klimatpåverkan: 4,76 kg CO₂e/m² (platsbaserad)

Andra hyresgäster i fastigheten

LG Electronics Nordic AB - Bilia AB - Terminalen 2 - VWR International AB - JR-FOODIE AB - FireSeal AB - ITRI Service AB - Hemmersbach Sweden AB - Stockholmsel AB

Karta

Dokument

Kontaktperson

Kommersiell Förvaltare

Helen Juhansoo

Fråga oss!

Nyfiken på den här lokalen? Eller behöver du hjälp att hitta rätt lokal för din verksamhet? Oavsett om du vet exakt vad du söker eller om du behöver rådgivning, så finns vi här och hjälper till.

Vi ser fram emot att höra av dig.

Intresseanmälan

Kontaktinformation

All behandling av personuppgifter sker i enlighet med dataskyddsförordningen och annan dataskyddslagstiftning. Läs mer om GDPR

Liknande lokaler i Stockholm