Gå till huvudinnehåll

Göteborg Hisingen

Stålverksgatan 3

Industri Kontor Lager/Logistik

Hyresindikation

67 000 kr/mån

Detaljerad hyresinformation

Drift och fastighetsskatt tillkommer.

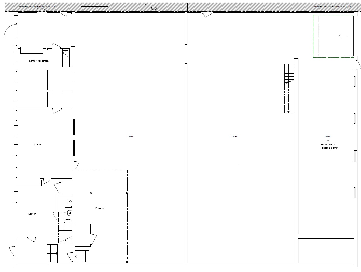
Yta

803 kvm

Arbetsplatser

20 st

Så räknar vi antal arbetsplatser

Detta spann är en uppskattning. Det finns flera faktorer som påverkar hur många arbetsplatser som kan rymmas i en lokal. Inte bara storleken på själva lokalen utan även hur den disponeras. Exempelvis kräver en lokal med många enskilda kontor mer plats än öppen planlösning. Andra begränsningar kan vara tillgången på luft och kyla, eller utrymningsvägar.

Tillträdesdatum

2026-04-01

Lager och kontor med stor inhägnad markyta

Lager och kontor med större inhägnad markyta.

Området

Fastigheten är belägen i expansiva Ringön, nära Göteborgs centrum och nära trafiklederna.

Kommunikationer

C:a 10 minuters promenad från Frihamnen och Hjalmar Brantingsplatsen.

Service

Det finns gott om lunchrestauranger i området. De är nära till Backaplans stor utbud av butiker och service.

Fastigheten

Lager- och butiksfastighet med närhet till det mesta.

Energi & hållbarhet

  • Total energianvändning (2025): 8 kWh/m²
  • Klimatpåverkan: 0,03 kg CO₂e/m² (platsbaserad)

Andra hyresgäster i fastigheten

TIER Mobility - Svenska Kvalitets Ställningar AB

Karta

Dokument

Kontaktperson

Uthyrare

Mathias Grahn

Fråga oss!

Nyfiken på den här lokalen? Eller behöver du hjälp att hitta rätt lokal för din verksamhet? Oavsett om du vet exakt vad du söker eller om du behöver rådgivning, så finns vi här och hjälper till.

Vi ser fram emot att höra av dig.

Intresseanmälan

Kontaktinformation

All behandling av personuppgifter sker i enlighet med dataskyddsförordningen och annan dataskyddslagstiftning. Läs mer om GDPR

Liknande lokaler i Göteborg