Gå till huvudinnehåll

Stockholm Sollentuna

Sofielundsvägen 2

Kontor

Yta

335 kvm

Arbetsplatser

20 - 30 st

Så räknar vi antal arbetsplatser

Detta spann är en uppskattning. Det finns flera faktorer som påverkar hur många arbetsplatser som kan rymmas i en lokal. Inte bara storleken på själva lokalen utan även hur den disponeras. Exempelvis kräver en lokal med många enskilda kontor mer plats än öppen planlösning. Andra begränsningar kan vara tillgången på luft och kyla, eller utrymningsvägar.

Tillträdesdatum

Enl. ök.

Våningsplan

5

Egen stor uteplats med en utsikt utöver det vanliga!

Granne med nya Sollentuna Centrum erbjuds nu denna fantastiskt fina och inflyttningsklara kontorslokal med ett magiskt ljusinsläpp och en generös egen terrass som ger utmärkta möjligheter till avkoppling och kreativa pauser utomhus. Lokalen omfattar hela 335 kvm och är mycket effektivt planerad med två separata entréer, vilket underlättar både flöde och flexibilitet för verksamheten. Tack vare fastighetens täta och stora fönstersättning skapas en ljus och rymlig atmosfär som bidrar till en trivsam och inspirerande arbetsmiljö.

Här finns dessutom tillgång till både varmgarage och utomhusparkering med laddplatser, vilket ger bekvämlighet för både personal och besökare. Om du söker ett modernt och funktionellt kontor där din personal verkligen kommer trivas och känna sig motiverad, är detta ett utmärkt val.

Välkommen att boka en visning och upplev själv alla möjligheter denna unika lokal har att erbjuda!

Planlösning

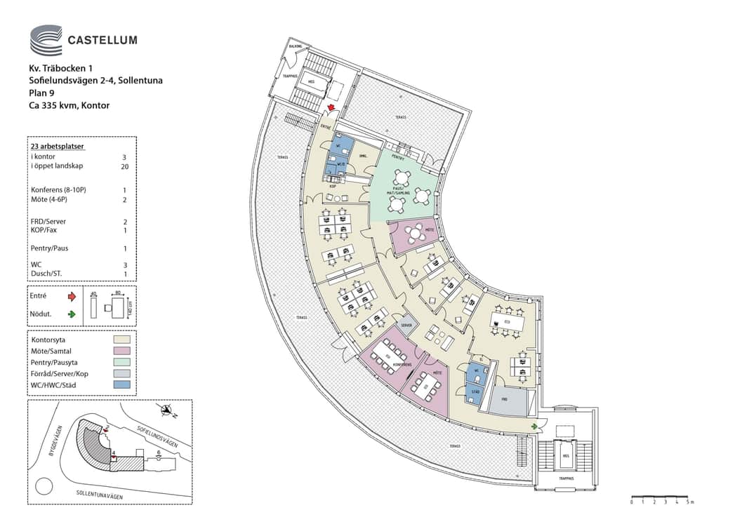
Denna kontorslokal på cirka 335 kvm, belägen på plan 9, har en modern och öppen planlösning med totalt 23 arbetsplatser, varav majoriteten är i öppet landskap och några i separata kontorsrum. Lokalen erbjuder flera mötesrum och en rymlig konferensdel, samt centralt placerade pentry- och pausytor. Den stora terrassen runt lokalen ger dessutom fina möjligheter till utomhusvistelse och ljusinsläpp.

Området

Området är på en gång centralt som nära till naturen och Sollentunas centrum. Här finns både företag och trevliga bostadsområden vilket gör det enkelt att komma ut på en skön lunchpromenad i gröna lugna kvarter.

Kommunikationer

Bra kommunikationer med pendeltåg från Sollentuna Centrum och bussar som tar dig runt i Sollentuna och till grannkommunerna.

Service

Det mesta hittar du på gångavstånd. Sollentuna Centrum ligger endast 350 m bort och här hittar du all tänkbar närservice, butiker, mode, restauranger och så klart gott kaffe

Fastigheten

Kontorsfastighet vid Sollentuna Centrum.

Faciliteter i fastigheten

Terrass Elbilsladdning Garage

Service i området

Buss Restaurang Café Tåg Shopping Gym Grönområde

Energi & hållbarhet

  • Certifieringar:
  • Total energianvändning (2025): 40 kWh/m²
  • Klimatpåverkan: 6,58 kg CO₂e/m² (platsbaserad)

Andra hyresgäster i fastigheten

Nordea Bank Abp, filial i Sverige - Träbocken 1 - Swedbank AB - Träbocken 1 - ASMPT Sweden AB - Installationsgruppen i Stockholm AB - Anooni AB - AKG Sverige AB - Träbocken 1 - Missing People Sweden

Karta

Dokument

Kontaktperson

Uthyrare

Rolf Marias

Fråga oss!

Nyfiken på den här lokalen? Eller behöver du hjälp att hitta rätt lokal för din verksamhet? Oavsett om du vet exakt vad du söker eller om du behöver rådgivning, så finns vi här och hjälper till.

Vi ser fram emot att höra av dig.

Intresseanmälan

Kontaktinformation

All behandling av personuppgifter sker i enlighet med dataskyddsförordningen och annan dataskyddslagstiftning. Läs mer om GDPR

Ett eget husteam ingår i hyran

Som hyresgäst hos oss får ni ett lokalt husteam som ser till att ni trivs och att allt fungerar som det ska. Vi hjälper till med allt från fastighetsskötsel och energioptimering till skyltning och parkering. Ingen fråga är för stor eller för liten. Och skulle era behov förändras brukar vi alltid kunna erbjuda en lösning, vad det än gäller. Varmt välkommen till en värd bortom det förväntade.

Liknande lokaler i Stockholm