Gå till huvudinnehåll

Stockholm Sollentuna

Sofielundsvägen 4

Kontor

Yta

446 kvm

Arbetsplatser

35 - 40 st

Så räknar vi antal arbetsplatser

Detta spann är en uppskattning. Det finns flera faktorer som påverkar hur många arbetsplatser som kan rymmas i en lokal. Inte bara storleken på själva lokalen utan även hur den disponeras. Exempelvis kräver en lokal med många enskilda kontor mer plats än öppen planlösning. Andra begränsningar kan vara tillgången på luft och kyla, eller utrymningsvägar.

Tillträdesdatum

Enl. ök.

Lokal utöver det vanliga med fantastiskt ljusinsläpp!

Alldeles invid Sollentuna Centrum ligger denna fantastiskt ljusa och representativa kontorslokal med stort burspråk och ett magiskt ljusinsläpp. Den täta fönstersättningen i kombination med den böjda fasaden skapar en imponerande rymd och ger lokalen ett unikt uttryck. Utsikten är häpnadsväckande och bidrar till en arbetsmiljö utöver det vanliga.

Lokalen om ca 446 kvm är mycket yteffektiv och lämpar sig väl för både öppna kontorslösningar och en mer rumsindelad planering. Här finns goda förutsättningar för moderna arbetsplatser, mötesrum, sociala ytor och stödytor – allt samlat på ett plan med naturliga flöden.

Lokalen totalanpassas i samråd med ny hyresgäst, vilket innebär stora möjligheter att påverka såväl planlösning som materialval och ytskikt. Oavsett om behovet är ett kreativt kontor, ett representativt huvudkontor eller en flexibel arbetsplats skapas här ett kontor att verkligen trivas i.

Välkommen på visning!

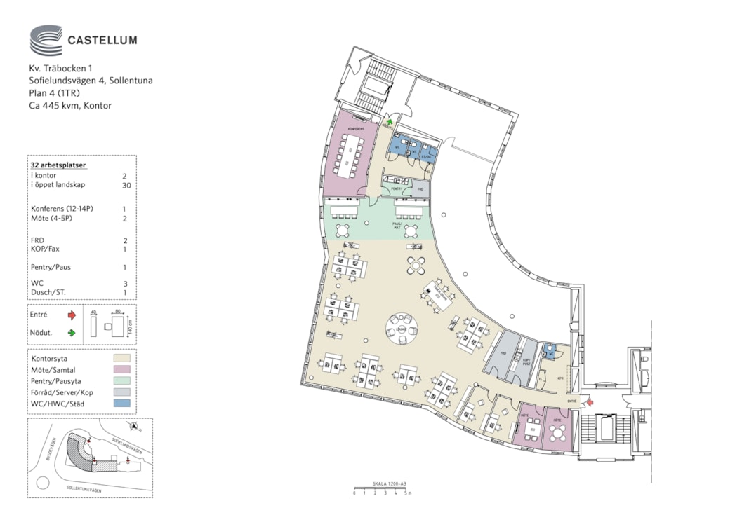
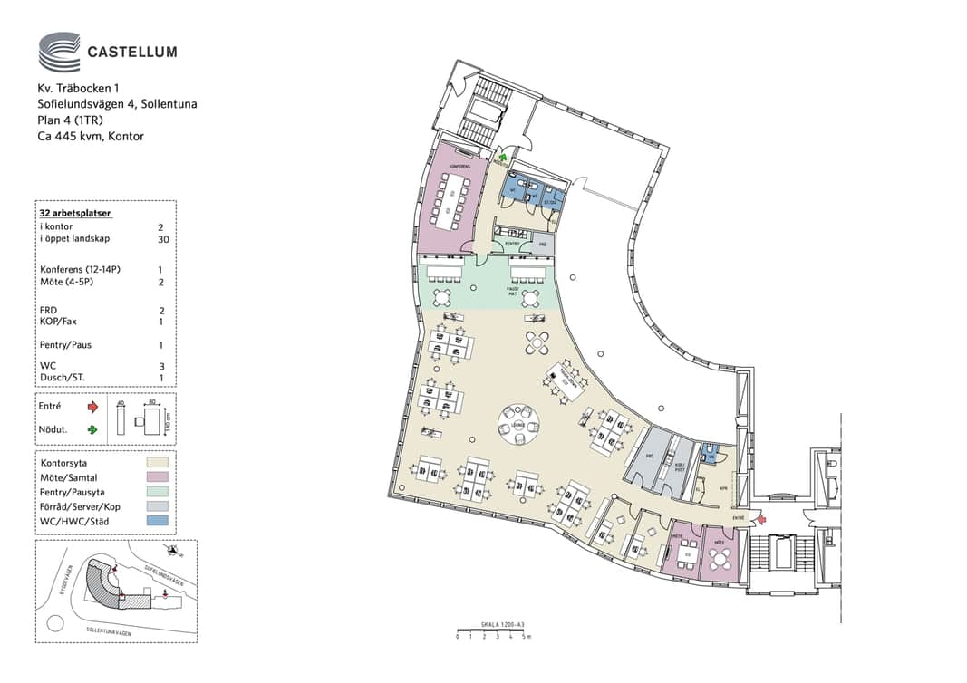
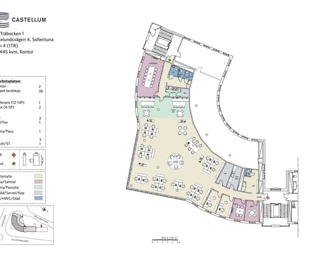
Planlösning

Lokalen om ca 445 kvm är utformad som ett sammanhållet kontorsplan med en mjukt böjd fasad som ger god tillgång till dagsljus och en öppen, modern karaktär.

Planlösningen domineras av ett öppet kontorslandskap med cirka 30 arbetsplatser, organiserade i grupper kring gemensamma ytor och en central lounge. I anslutning till arbetsytorna finns informella mötesplatser som stödjer samarbete och flexibilitet i det dagliga arbetet.

Mot ena delen av lokalen ligger mötes- och konferensdelen med ett större konferensrum för ca 12–14 personer samt två mindre mötesrum för 4–5 personer. Dessa är avskilt placerade för att skapa lugn och god akustik. Intill finns pentry och pausyta som fungerar som en naturlig samlingspunkt för personalen.

Servicefunktioner såsom förråd, serverrum, kopiering/post, WC samt dusch/städ är samlade nära entrén för effektiv logistik. Sammantaget erbjuder lokalen en välbalanserad planlösning med tydlig uppdelning mellan arbete, möten och sociala ytor, anpassad för cirka 32 arbetsplatser.

Området

Området är på en gång centralt som nära till naturen och Sollentunas centrum. Här finns både företag och trevliga bostadsområden vilket gör det enkelt att komma ut på en skön lunchpromenad i gröna lugna kvarter.

Kommunikationer

Bra kommunikationer med pendeltåg från Sollentuna Centrum och bussar som tar dig runt i Sollentuna och till grannkommunerna.

Service

Det mesta hittar du på gångavstånd. Sollentuna Centrum ligger endast 350 m bort och här hittar du all tänkbar närservice, butiker, mode, restauranger och så klart gott kaffe

Fastigheten

Kontorsfastighet vid Sollentuna Centrum.

Faciliteter i fastigheten

Sopsortering Omklädningsrum Paketbox Cykelrum Parkering Skyltläge Garage

Service i området

Buss Restaurang Café Tåg

Energi & hållbarhet

  • Certifieringar:
  • Total energianvändning (2025): 40 kWh/m²
  • Klimatpåverkan: 6,5 kg CO₂e/m² (platsbaserad)

Andra hyresgäster i fastigheten

Nordea Bank Abp, filial i Sverige - Träbocken 1 - Swedbank AB - Träbocken 1 - ASMPT Sweden AB - Installationsgruppen i Stockholm AB - Anooni AB - AKG Sverige AB - Träbocken 1 - Missing People Sweden

Visualisering

Karta

Dokument

Kontaktperson

Uthyrare

Rolf Marias

Fråga oss!

Nyfiken på den här lokalen? Eller behöver du hjälp att hitta rätt lokal för din verksamhet? Oavsett om du vet exakt vad du söker eller om du behöver rådgivning, så finns vi här och hjälper till.

Vi ser fram emot att höra av dig.

Intresseanmälan

Kontaktinformation

All behandling av personuppgifter sker i enlighet med dataskyddsförordningen och annan dataskyddslagstiftning. Läs mer om GDPR

Liknande lokaler i Stockholm