Gå till huvudinnehåll

Östersund Centrala Östersund

Kyrkgatan 76

Kontor

Yta

624 kvm

Arbetsplatser

35 - 60 st

Så räknar vi antal arbetsplatser

Detta spann är en uppskattning. Det finns flera faktorer som påverkar hur många arbetsplatser som kan rymmas i en lokal. Inte bara storleken på själva lokalen utan även hur den disponeras. Exempelvis kräver en lokal med många enskilda kontor mer plats än öppen planlösning. Andra begränsningar kan vara tillgången på luft och kyla, eller utrymningsvägar.

Tillträdesdatum

Enl. ök.

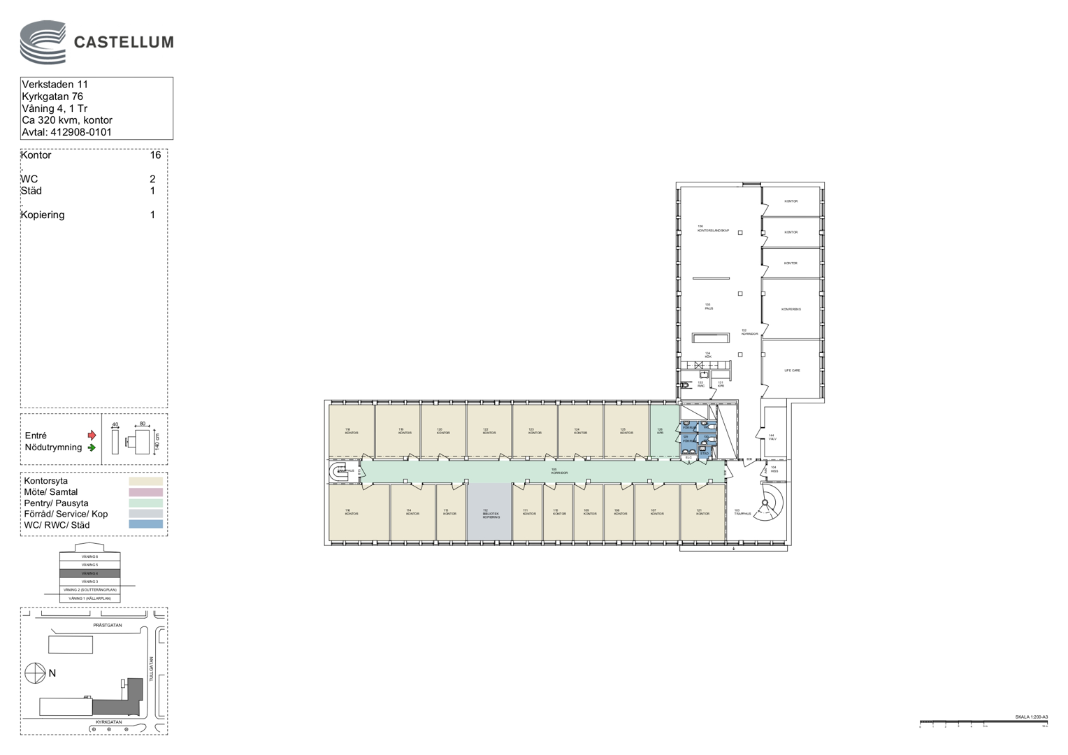
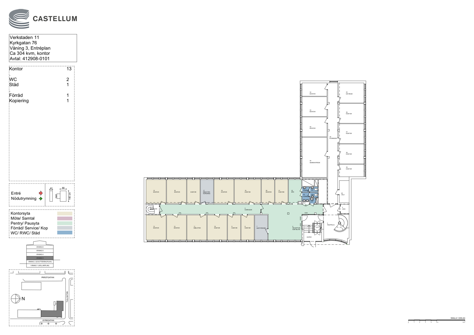
Våningsplan

3

Centralt belägen kontorslokal med parkering.

Kontorslokal i två plan på våning 3 och 4 med cellkontor i centrala Östersund. Tillträde till gemensam träningslokal med tillhörande omkl. rum och bastu. Möjlighet till ett gemensamt kök och matrum om så önskas. Egen parkering finns på fastigheten.

Området

Centralt belägen kontorsfastighet i centrala Östersund.

Kommunikationer

Fastigheten är belägen två kvarter från busstorget med såväl lokal- som landsortsbusstrafik. Flygbuss från Åre-Östersund flygplats angör busstorget. Östersunds tågstation ligger ca 4 kvarter bort.

Service

Två kvarter från fastigheten ligger Östersunds handelscentrum med all tänkbar service som t ex livsmedel, tand- och sjukvård, apotek, lunchrestauranger samt övrig shopping.

Fastigheten

Kontorsfastighet på 6 våningar med soutterrängvåning med handikappanpassad entré mot Kyrkgatan.

  • Fin utsikt
  • Gym och bastu
  • Parkering

Faciliteter i fastigheten

Motionsrum Sopsortering Omklädningsrum Uteplats Parkering Kök Elbilsladdning Skyltläge Gym

Service i området

Resecentrum Buss Parkering Restaurang Café Hotell Tåg Shopping Elbilsladdning Gym Grönområde

Energi & hållbarhet

  • Total energianvändning (2025): 9 kWh/m²
  • Klimatpåverkan: 0,89 kg CO₂e/m² (platsbaserad)

Andra hyresgäster i fastigheten

Vericate AB - Riksarkivet - Familjens Jurist i Sverige AB - Verkstaden 11 - Carcare Systems Europe AB - Östersunds Kommun - Per Bengtsson vid Storsjön AB

Karta

Dokument

Kontaktperson

Affärsområdeschef Östersund

Per Englund

Fråga oss!

Nyfiken på den här lokalen? Eller behöver du hjälp att hitta rätt lokal för din verksamhet? Oavsett om du vet exakt vad du söker eller om du behöver rådgivning, så finns vi här och hjälper till.

Vi ser fram emot att höra av dig.

Intresseanmälan

Kontaktinformation

All behandling av personuppgifter sker i enlighet med dataskyddsförordningen och annan dataskyddslagstiftning. Läs mer om GDPR

Ett eget husteam ingår i hyran

Som hyresgäst hos oss får ni ett lokalt husteam som ser till att ni trivs och att allt fungerar som det ska. Vi hjälper till med allt från fastighetsskötsel och energioptimering till skyltning och parkering. Ingen fråga är för stor eller för liten. Och skulle era behov förändras brukar vi alltid kunna erbjuda en lösning, vad det än gäller. Varmt välkommen till en värd bortom det förväntade.

Liknande lokaler i Östersund