Gå till huvudinnehåll

Jönköping A6

Bataljonsgatan 12

Kontor

Hyresindikation

78 000 kr/mån

Detaljerad hyresinformation

Hyresindikation 77 917 kr/månad

Yta

340 kvm

Arbetsplatser

15 - 35 st

Så räknar vi antal arbetsplatser

Detta spann är en uppskattning. Det finns flera faktorer som påverkar hur många arbetsplatser som kan rymmas i en lokal. Inte bara storleken på själva lokalen utan även hur den disponeras. Exempelvis kräver en lokal med många enskilda kontor mer plats än öppen planlösning. Andra begränsningar kan vara tillgången på luft och kyla, eller utrymningsvägar.

Tillträdesdatum

Enl. ök.

Våningsplan

2

Ljust och modernt kontor med toppläge intill E4:an

Här får ni en rymlig och ljus kontorslokal med fönster i flera väderstreck, belägen i attraktiva A6-området. Ni sitter i en modern och representativ fastighet med stilfull arkitektur – omgivna av etablerade nationella företag.

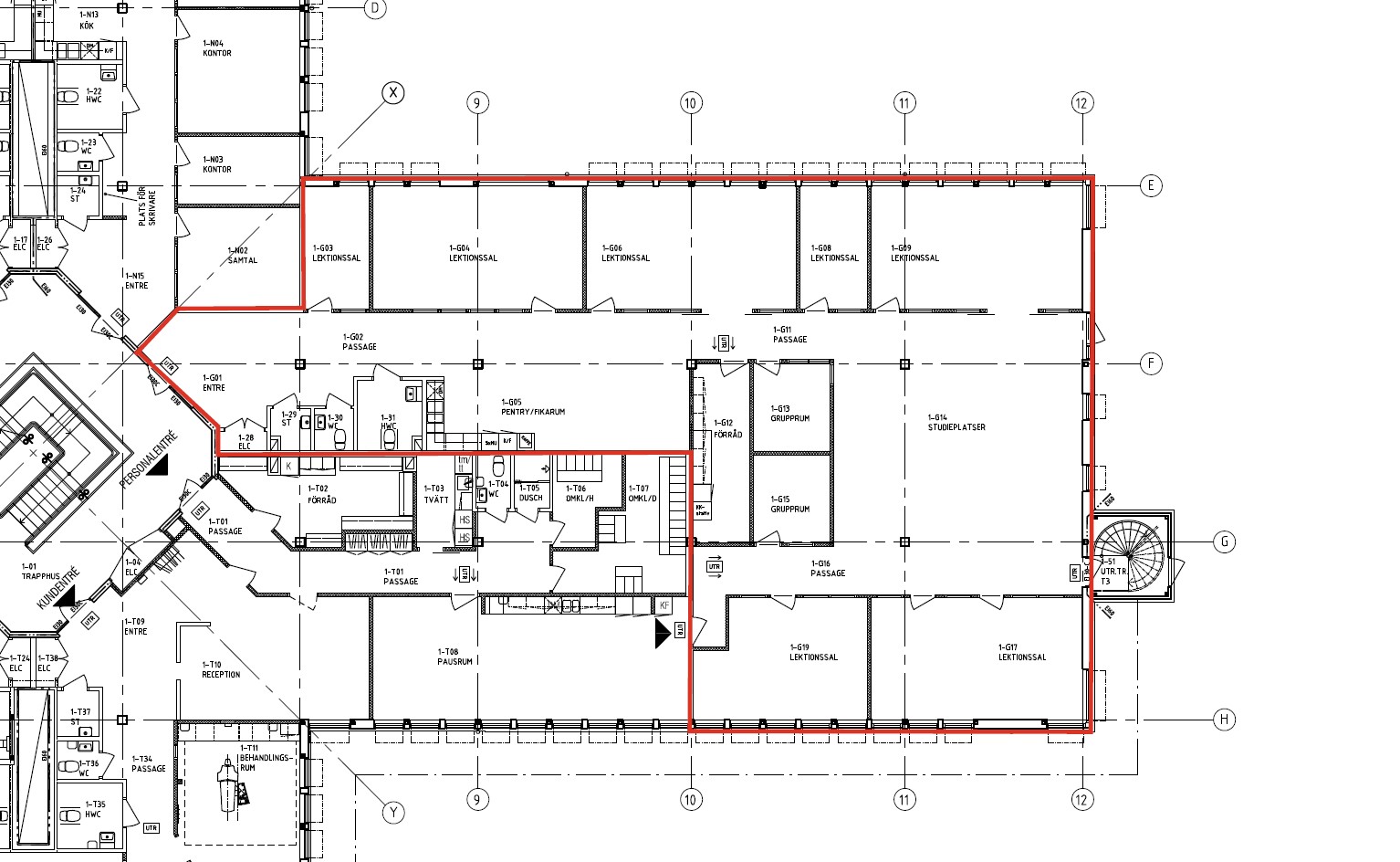
Planlösning

Bifogad planskiss är ett förslag på hur lokalen kan vara utformad. Vi anpassar planlösningen efter era behov och önskemål, men lokalen lämpar sig för en kombination av öppna kontorslandskap, projektytor och separata kontor eller mötesrum. Köket är placerat centralt i lokalen och skapar en naturlig mötesplats för medarbetare och besökare.

Området

A6-området med sitt centrala läge strax öster om Jönköpings centrum är ett verksamhetsområde med stark exponering mot E4:an.
Sedan Asecs Köpcentrum etablerades 1987 har området blivit en stor attraktion och det har årligen ca 11 miljoner besökare.
Det intilliggande verksamhetsområdet, som omfattar ca 170.000 kvm, lämpar sig väl för kunskapsintensiva företag med behov av centrumnära läge.
I direkt anslutning till området ligger även Länssjukhuset Ryhov och A6 Golfbana.

Kommunikationer

Fastigheten ligger utmed E4:an vilket gör den lättillgänglig för den bilburne. De lokala bussförbindelserna är goda och det är gångavstånd till hållplats för Krösatåget.

Parkering

Parkering för hyresgäster och besökare finns i anslutning till fastigheten. Det finns även 6 styck laddplatser som är kopplade till MER.

För besöksplatserna gäller 2 timmars parkering. Övriga parkeringsplatser kräver ett digital p-tillstånd som hanteras av respektive företag. Observera att om man har p-tillstånd kan man inte parkera på besöksplatserna.

Service

På gångavstånd finns ett brett utbud av restauranger, handel och övrig service på Asecs.
Fastigheten är även utrustad med Hjärtstartare som är placerad i det gemensamma trapphuset.

Fastigheten

Modern och tilltalande kontorsfastighet uppförd 2009. Den uthyrningbara ytan uppgår till 7.725 kvm fördelat på fyra våningsplan.

  • Attraktivt och strategiskt kontorsläge
  • Bra synlighet och exponeringsläge
  • Hållbarhet och modern infrastruktur

Faciliteter i fastigheten

Sopsortering Omklädningsrum Cykelrum Skyltläge

Service i området

Buss Parkering Restaurang Café Shopping

Energi & hållbarhet

  • Certifieringar: Miljöbyggnad befintlig, Silver
  • Total energianvändning (2025): 11 kWh/m²
  • Klimatpåverkan: 2,72 kg CO₂e/m² (platsbaserad)

Andra hyresgäster i fastigheten

Dagab Inköp & Logistik AB- Visionen 3 - Kapsch Trafficcom AB - SAAB AB- Visionen 3 - Colosseum Smile AB - BSV Arkitekter & Ingenjörer AB- Visionen 3 - Atea Sverige AB- Visionen 3 - Nordomatic Aktiebolag - Eksjöhus Aktiebolag - Atea Sverige AB - Axfood Snabbgross - Avarn Security AB

Karta

Dokument

Kontaktperson

Uthyrare

Jonas Larsson

Fråga oss!

Nyfiken på den här lokalen? Eller behöver du hjälp att hitta rätt lokal för din verksamhet? Oavsett om du vet exakt vad du söker eller om du behöver rådgivning, så finns vi här och hjälper till.

Vi ser fram emot att höra av dig.

Intresseanmälan

Kontaktinformation

All behandling av personuppgifter sker i enlighet med dataskyddsförordningen och annan dataskyddslagstiftning. Läs mer om GDPR

Ett eget husteam ingår i hyran

Som hyresgäst hos oss får ni ett lokalt husteam som ser till att ni trivs och att allt fungerar som det ska. Vi hjälper till med allt från fastighetsskötsel och energioptimering till skyltning och parkering. Ingen fråga är för stor eller för liten. Och skulle era behov förändras brukar vi alltid kunna erbjuda en lösning, vad det än gäller. Varmt välkommen till en värd bortom det förväntade.

Liknande lokaler i Jönköping