Gå till huvudinnehåll

Malmö Hyllie

Malmö Mässhallen 2 (eXlent)

Kontor

Fastighetsbeteckning

Malmö Mässhallen 2

Adress

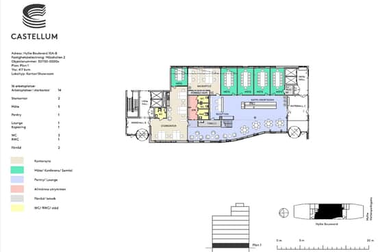
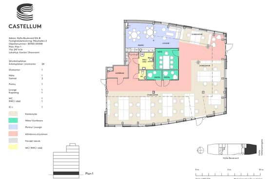
Hyllie Boulevard 10 A-B

Byggnadsår

2016

Total area

7 318 kvm

Om fastigheten

Den högkvalitativa byggnaden har åtta plan fördelat på knappt ca 7 300 m² kontor.

Fastigheten har en solcellsanläggning och är miljöklassad enlighet BREEAM New Construction, Excellent

Bland hyresgästerna finns bl a NCC, Tunstall och Zumtobel.

Området

I området Hyllie finns kontor, bostäder, multiarenan Malmö Arena, Malmömässan och köpcentrumet Emporia. Här finns och planeras för all tänkbar service som Hyllie behöver i dag och i framtiden.

Kommunikationer

I Hyllie är kommunikationerna utmärkta med närhet till både tågstation och bussförbindelser. 400 meter till Hyllie station, en av citytunnelns tre stationer.

Copenhagen Airport och Köpenhamn nås på bara några få minuter och gör Hyllie till ett attraktivt läge för flera verksamheter och huvudkontor.

Parkering

Parkeringsplatser finns att hyra i källarplanet.

Service

Emporia köpcentrum ligger ett stenkast bort och erbjuder shopping, lunchmöjligheter och även matvarubutiker om du vill handla hem mat efter jobbet. Malmö Mässan ligger precis brevid fastigheten och du har även Malmö Arena inom gångavstånd. Du finner även två hotell i området, Quality Hotel View och Malmö Arena Hotel.

  • Skyltläge
  • Restaurang 100 meter
  • Cykelparkering

Energi & hållbarhet

  • Certifieringar: BREEAM New Construction,Excellent
  • Total energianvändning (2025): 12 kWh/m²
  • Klimatpåverkan: 4,27 kg CO₂e/m² (platsbaserad)

Hyresgäster i fastigheten

NCC Sverige AB - Mässhallen 2 - Tunstall Nordic Aktiebolag - Unilin Nordic AB - ZG Lighting Nordic AB - Teleservicegruppen Skåne AB - NOHA Sweden AB - Stille AB

Karta

Kontaktperson

Kommersiell Förvaltare

Malin Andersson

Anmäl intresse

Är du intresserad av att sitta i den här fastigheten? Gör en intresseanmälan så hör vi av oss om det dyker upp någon lämplig lokal.

Intresseanmälan

Kontaktinformation

All behandling av personuppgifter sker i enlighet med dataskyddsförordningen och annan dataskyddslagstiftning. Läs mer om GDPR

Lediga lokaler i eXlent