Gå till huvudinnehåll

Jönköping Centrum

Hoppets Torg 4

Kontor

Hyresindikation

53 000 kr/mån

Detaljerad hyresinformation

Hyresindikation 2700 kr/kvm inkl drift och fastighetsskatt

Yta

237 kvm

Arbetsplatser

14 - 20 st

Så räknar vi antal arbetsplatser

Detta spann är en uppskattning. Det finns flera faktorer som påverkar hur många arbetsplatser som kan rymmas i en lokal. Inte bara storleken på själva lokalen utan även hur den disponeras. Exempelvis kräver en lokal med många enskilda kontor mer plats än öppen planlösning. Andra begränsningar kan vara tillgången på luft och kyla, eller utrymningsvägar.

Tillträdesdatum

Enl. ök.

Våningsplan

1

Unikt kontor med fantastiskt skyltläge i Jönköping City!

Letar du efter ett kontor i absolut toppklass med ett oslagbart läge i hjärtat av Jönköping? Nu har du chansen att skapa din drömlokal i en nyrenoverad och modern miljö, där stora fönster ger optimal synlighet mitt i citykärnan.

Förutom ett fantastiskt exponeringsläge för ditt företag och varumärke så har du nära till allt du behöver såsom restauranger, caféer, butiker och gym. Och vill du se vackra vyer så är det perfekt med en lunchpromenad längs Vättern. Dessutom går bussarna precis utanför och erbjuder smidiga kommunikationer.

Planlösningen är flexibel och det finns möjlighet att dela av lokalen och skapa ett showroom i en del om man så önskar.

Här kombineras synlighet, tillgänglighet och en inspirerande arbetsmiljö.

Intresserad? Kontakta oss för mer information och visning!

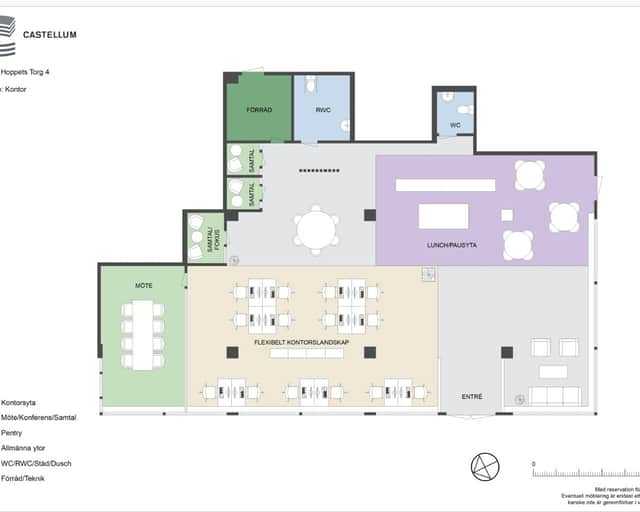
Planlösning

Lokalen är idag fördelat i en stor öppen butiksyta samt en lageryta. Möjlighet finns att anpassa lokalen utifrån din verksamhet och på så sätt vara med och förändra utformning av planlösning och ytskikt.

Området

Fastigheten är belägen mitt i city, gågata med affärer och restauranger och med resecentrum inom 3 min promenad. Närhet till både Vättern och Munksjön med fina promenadstråk. Sommartid finns många uteserveringar vid Hamnkanalen, Vättern och Munksjön.

Kommunikationer

Lokalbussar i direkt anslutning samt närhet till Resecentrum med tåg och bussförbindelser.

Parkering

Garage i källaren.

Service

Mitt i centrum med närhet till all tänkbar service. Restauranger, vårdcentral, banker, apotek, caféer, kiosk, och butiker.

Fastigheten

Fastigheten är belägen i kv Ansvaret mitt i city och gågata med affärer och restauranger och med resecentrum inom 3 min promenad. Närhet till både Vättern och Munksjön. Sommartid finns många uteserveringar vid Hamnkanalen, Vättern och Munksjön.

  • Läget med exponering mot gångstråk
  • Modernt och nyrenoverat
  • Närhet till all service

Faciliteter i fastigheten

Restaurang

Service i området

Buss Gym

Energi & hållbarhet

  • Certifieringar: LEED O+M, Gold
  • Total energianvändning (2025): 27 kWh/m²
  • Klimatpåverkan: 4,54 kg CO₂e/m² (platsbaserad)

Andra hyresgäster i fastigheten

Swedbank AB-Ansvaret 1 - Pontarius AB- Ansvaret 1 - Sparbanksstiftelsen ALFA - Kvadrat Jönköping AB - Nikki Jönköping AB - Contruster Engineering AB - Subcom Sweden AB - Bankomat

Karta

Dokument

Kontaktperson

Kommersiell Förvaltare

Josefine Junefelt

Fråga oss!

Nyfiken på den här lokalen? Eller behöver du hjälp att hitta rätt lokal för din verksamhet? Oavsett om du vet exakt vad du söker eller om du behöver rådgivning, så finns vi här och hjälper till.

Vi ser fram emot att höra av dig.

Intresseanmälan

Kontaktinformation

All behandling av personuppgifter sker i enlighet med dataskyddsförordningen och annan dataskyddslagstiftning. Läs mer om GDPR

Liknande lokaler i Jönköping