Gå till huvudinnehåll

Stockholm Slakthusområdet

Slakthusgatan 20

Lager/Logistik

Yta

180 kvm

Tillträdesdatum

2026-03-01

Våningsplan

−1

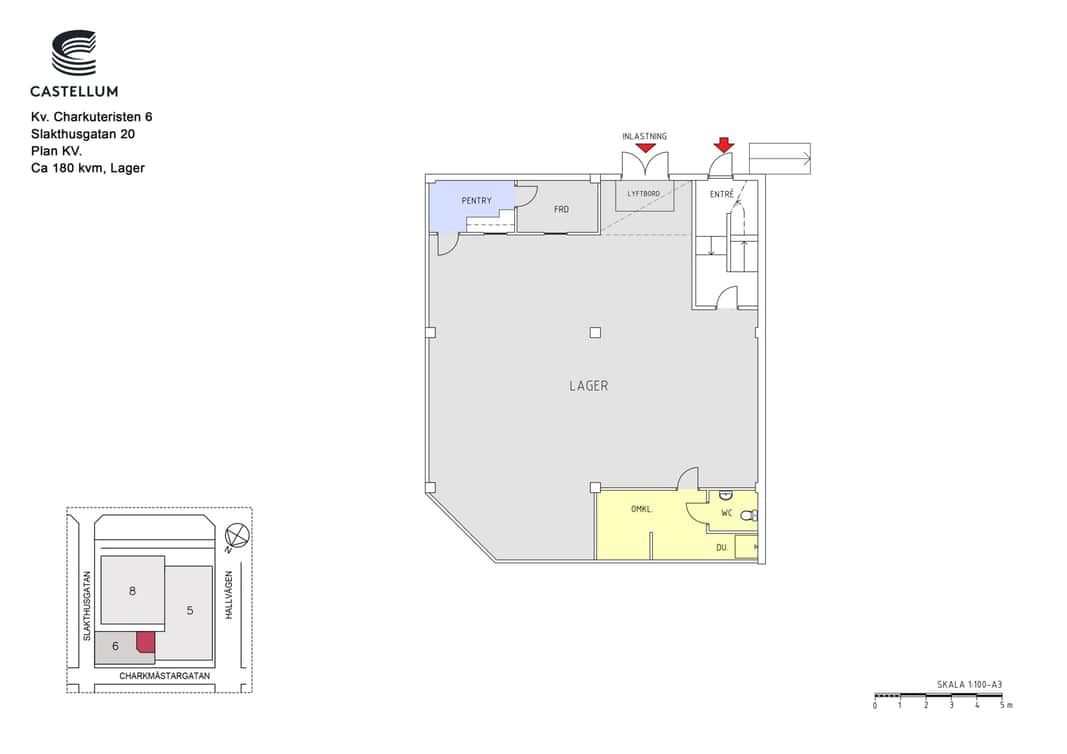
Lagerlösning för det mindre bolaget

Nu finns möjlighet att hyra en lagerlokal om cirka 180 kvm. Lokalen passar det mindre bolaget som söker sällanlager.
Lokalen har access via ett höj- och sänkbart lyftbord, lämpat för exempelvis EU-pall. Lagret har öppen planlösning samt mindre omklädningsrum med dusch.

En praktisk lagerlösning för verksamheter som behöver sällanlager i ett attraktivt läge.

Planlösning

Lokalen omfattar cirka 180 kvm och består huvudsakligen av en större lageryta. Planlösningen är enkel och funktionell med tydliga rumsligheter och god logistik mellan lager och stödfunktioner.

Området

Slakthusområdets strategiska läge ger närhet till det mesta. Endast ett par minuters promenad bort ligger köpcentret Globen Shopping, där all tänkbar service såsom restauranger, butiker och närservice finns vilket gör lunchärendena snabbt avhandlade.
Unikt för området är dessutom Tele 2 Arena, en modern idrotts- och evenemangsarena alldeles i närheten av Slakthusområdet. Nedre plan i arenan går under namnet ”Tolv Stockholm” som är ett unikt mat- och nöjeskoncept som höjer lunchupplevelsen lite extra.

Slakthusområdet är också ett av Stockholms mest spännande utvecklingsområden. Här pågår ett detaljplanearbete som syftar till att utveckla en levande stadsdel där bostäder, handel, kultur och företagande samexisterar. Områdets tradition ska bevaras genom att de kulturhistoriskt värdefulla byggnaderna ska bibehållas och stå sida vid sida med den nya arkitekturen. Historien tas också tillvara genom att många av de publika verksamheterna kommer vara kopplade till bland annat mat, dryck och evenemang.

Castellum äger i dagsläget fyra fastigheter i området och vårt mål är att utveckla vårt bestånd och addera fler attraktiva och moderna arbetsplatser i takt med att området utvecklas, men vi vill också lyfta fram byggnadernas kulturella och arkitektoniska värden.
I och med utvecklingen av Slakthusområdet så planeras även tunnelbanans gröna linje att dras om och få en ny station inne i Slakthusområdet. Castellums byggnader hamnar precis vid den nya centrala stationen - precis där ditt företag också vill vara.

Kommunikationer

Åker du kommunalt har du flera resvägsalternativ. Två tunnelbanestationer finns inom gångavstånd. Det är Globen, endast ett par minuters promenad. Med dessutom flertalet busslinjer och Tvärbanan tar du dig både snabbt och enkelt till Slakthusområdet.

För dig som hellre tar bilen finns det också flera smidiga vägar tack vare närheten till de stora genomfarts- och kringleder som t ex södra länken samt E4/E20.

Byggnaden har inte en egen accesspunkt (fiberkoppling) från Stokab men kan hämta koppling från närbelägna Charkuteristen 5 med benämning GLOB1481. Från den går att beställa mycket hög digital uppkoppling via flera olika internetleverantörer.

Parkering

Här finns det parkeringsplatser att hyra. Är du intresserad kontakta din Biträdande förvaltare.

Fastigheten

Fastigheten är en industrifastighet ritad av den välrenommerade arkitekten Ralph Erskine. Sen 1950-talet belägen i Slakthusområdet med över 100-åriga anor och som nu är ett av Stockholms mest intressanta utvecklingsområden. Fastigheten är oklassad med en gedigen bakgrund.

  • Mindre lager
  • Attraktivt läge strax utanför tull
  • Nära till service & Globen Shopping

Service i området

Buss Restaurang Café Hotell Shopping Gym Tvärbana Grönområde T-bana

Energi & hållbarhet

  • Certifieringar: BREEAM In-Use, Pass
  • Total energianvändning (2025): 7 kWh/m²
  • Klimatpåverkan: 2,84 kg CO₂e/m² (platsbaserad)

Andra hyresgäster i fastigheten

Eventopia AB - Indigofera Jeans AB - P-Service

Karta

Dokument

Kontaktperson

Uthyrare

Mia Idre

Fråga oss!

Nyfiken på den här lokalen? Eller behöver du hjälp att hitta rätt lokal för din verksamhet? Oavsett om du vet exakt vad du söker eller om du behöver rådgivning, så finns vi här och hjälper till.

Vi ser fram emot att höra av dig.

Intresseanmälan

Kontaktinformation

All behandling av personuppgifter sker i enlighet med dataskyddsförordningen och annan dataskyddslagstiftning. Läs mer om GDPR

Liknande lokaler i Stockholm