Gå till huvudinnehåll

Stockholm Lunda

Gunnebogatan 26

Industri Lager/Logistik

Yta

1 362 - 2 711 kvm

Tillträdesdatum

Enl. ök.

Möjlighet till egen fastighet i Lunda Industriområde.

Välkommen till en flexibel och välplanerad egen fastighet om totalt 2 711 kvm, belägen i attraktivt läge i Lunda. Fastigheten erbjuder en perfekt kombination av lager, verkstad och kontor, anpassad för verksamheter med höga krav på logistik, funktionalitet och arbetsmiljö.

Fördelar med fastigheten

- Egen fastighet som hyrs ut – ger er verksamhet exklusivitet och kontroll.

- Flexibel planlösning som passar både produktions-, lager- och serviceverksamheter.

- Strategiskt läge i Bromsten/Spånga med goda kommunikationer och närhet till större trafikleder.

- Möjlighet att anpassa ytorna efter verksamhetens specifika behov i dialog med fastighetsägaren.

Lokalen kan också delas upp i två, med verkstad i markplan och kontor på på plan 1. Lokalens area är då från 1 362kvm.

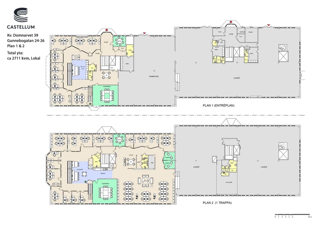
Planlösning

Effektivt lager & verkstad

- Generös takhöjd på ca 5 meter i lager- och verkstadsdelen.

- Tre lastportar för smidig in- och utlastning.

- Stora öppna ytor som möjliggör effektiv logistik och flexibel användning.

Funktionella kontor & mötesrum

- Två plan med ljusa och moderna kontorsytor.

- Flera öppna kontorslandskap kombinerat med mötesrum och pausytor.

- Sociala ytor såsom konferensrum, pentryn och lounge för trivsam arbetsmiljö.

Området

Lunda industriområde är placerat i nordvästra Stockholm, mellan Tensta/Hjulsta, Spånga och Barkarby.
Området blandas upp med både handel, kontor och klassiska industrifastigheter.
Service hittar du på gångavstånd till Spånga Centrum och Hjulsta samt med en kort bilfärd tar du dig enkelt till Spånga sporthall, IKEA och ett flertal restauranger. Runt omkring finns även trevliga grönområden.

Kommunikationer

Spånga pendeltågsstation ligger cirka tio minuters promenad bort. Med pendeln är du sedan inne i city på en kvart. Närmaste tunnelbana hittar du i Hjulsta Centrum. Flera bussar går genom området och tar dig snabbt och enkelt till och från de olika knutpunkterna.

Med bil har du bra parkeringsmöjligheter och E18 alldeles i närheten, samt att du med Bergslagsvägen lätt når E4:an. Området kommer att få ett ännu mer attraktivt läge efter att Förbifart Stockholm blir verklighet.

Parkering

Här finns det parkeringsplatser att hyra. För mer information kontakta din biträdande förvaltare.

Fastigheten

I denna fastighet skapas innovativa lösningar. En av de större hyresgästerna är ett företag som utvecklar rullstolar, en egen erfarenhet som skapat en hel verksamhet. Fastigheten passar för lättindustri med lager och kontor.

Faciliteter i fastigheten

Parkering

Service i området

Buss Restaurang Hotell Shopping Grönområde T-bana

Energi & hållbarhet

  • Total energianvändning (2025): 14 kWh/m²
  • Klimatpåverkan: 2,65 kg CO₂e/m² (platsbaserad)

Karta

Dokument

Kontaktperson

Uthyrare

Alan Badareh Marofi

Fråga oss!

Nyfiken på den här lokalen? Eller behöver du hjälp att hitta rätt lokal för din verksamhet? Oavsett om du vet exakt vad du söker eller om du behöver rådgivning, så finns vi här och hjälper till.

Vi ser fram emot att höra av dig.

Intresseanmälan

Kontaktinformation

All behandling av personuppgifter sker i enlighet med dataskyddsförordningen och annan dataskyddslagstiftning. Läs mer om GDPR

Ett eget husteam ingår i hyran

Som hyresgäst hos oss får ni ett lokalt husteam som ser till att ni trivs och att allt fungerar som det ska. Vi hjälper till med allt från fastighetsskötsel och energioptimering till skyltning och parkering. Ingen fråga är för stor eller för liten. Och skulle era behov förändras brukar vi alltid kunna erbjuda en lösning, vad det än gäller. Varmt välkommen till en värd bortom det förväntade.

Liknande lokaler i Stockholm