Gå till huvudinnehåll

Stockholm Lunda

Fagerstagatan 19 C

Industri Kontor Lager/Logistik

Yta

3 720 kvm

Tillträdesdatum

Enl. ök.

Effektiv logistikfastighet med stort höglager!

Möjlighet till egen fastighet!

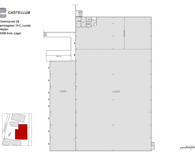
Lokalen är en kombilokal med en kontorsdel i ett plan samt en lagerdel bestående av ett höglager med drygt 8 meter i takhöjd.

Kontorsdelen består av öppna ytor och två större konferensrum. Lagerdelen har tio lastportar, en stor öppen yta och ett entresol. Lagerlokalen har en bärighet på 2 000 kg/ kvm och på entresolplan 500 kg /kvm.

Välkommen på visning!

Planlösning

Lokalen har en välplanerad mix av öppna arbetsytor, mötesrum och pausytor som skapar en flexibel och trivsam arbetsmiljö. Lagerdelen utgörs av stora sammanhängande ytor med goda logistikmöjligheter och smidig åtkomst.

Området

Lunda industriområde är placerat i nordvästra Stockholm, mellan Tensta/Hjulsta, Spånga och Barkarby.
Området blandas upp med både handel, kontor och klassiska industrifastigheter.
Service hittar du på gångavstånd till Spånga Centrum och Hjulsta samt med en kort bilfärd tar du dig enkelt till Spånga sporthall, IKEA och ett flertal restauranger. Runt omkring finns även trevliga grönområden.

Kommunikationer

Spånga pendeltågsstation ligger cirka tio minuters promenad bort. Med pendeln är du sedan inne i city på en kvart. Närmaste tunnelbana hittar du i Hjulsta Centrum. Flera bussar går genom området och tar dig snabbt och enkelt till och från de olika knutpunkterna.

Med bil har du bra parkeringsmöjligheter och E18 alldeles i närheten, samt att du med Bergslagsvägen lätt når E4:an. Området kommer att få ett ännu mer attraktivt läge efter att Förbifart Stockholm blir verklighet.

Parkering

För mer information kontakta din biträdande förvaltare.

Fastigheten

Byggnaden är en kombifastighet med en kontorsdel i ett plan samt en lagerdel bestående av ett höglager med 8 meter fri höjd. In- och utlastning till lagret sker via någon av de åtta lastportar.

  • Höglager
  • Kombilokal
  • 10 Lastportar

Service i området

Restaurang Tåg Shopping Grönområde

Energi & hållbarhet

  • Klimatpåverkan: 0 kg CO₂e/m² (platsbaserad)

Karta

Dokument

Kontaktperson

Uthyrare

Alan Badareh Marofi

Fråga oss!

Nyfiken på den här lokalen? Eller behöver du hjälp att hitta rätt lokal för din verksamhet? Oavsett om du vet exakt vad du söker eller om du behöver rådgivning, så finns vi här och hjälper till.

Vi ser fram emot att höra av dig.

Intresseanmälan

Kontaktinformation

All behandling av personuppgifter sker i enlighet med dataskyddsförordningen och annan dataskyddslagstiftning. Läs mer om GDPR

Ett eget husteam ingår i hyran

Som hyresgäst hos oss får ni ett lokalt husteam som ser till att ni trivs och att allt fungerar som det ska. Vi hjälper till med allt från fastighetsskötsel och energioptimering till skyltning och parkering. Ingen fråga är för stor eller för liten. Och skulle era behov förändras brukar vi alltid kunna erbjuda en lösning, vad det än gäller. Varmt välkommen till en värd bortom det förväntade.

Liknande lokaler i Stockholm