Gå till huvudinnehåll

Stockholm Lunda

Avestagatan 29

Kontor

Yta

225 kvm

Arbetsplatser

14 st

Så räknar vi antal arbetsplatser

Detta spann är en uppskattning. Det finns flera faktorer som påverkar hur många arbetsplatser som kan rymmas i en lokal. Inte bara storleken på själva lokalen utan även hur den disponeras. Exempelvis kräver en lokal med många enskilda kontor mer plats än öppen planlösning. Andra begränsningar kan vara tillgången på luft och kyla, eller utrymningsvägar.

Tillträdesdatum

Enl. ök.

Våningsplan

4

Kontor högst upp i huset

Välkommen upp till toppen!

Här möts ni av en ljus och trivsam kontorslokal högst upp i huset, där utsikten ger arbetsdagen ett lyft och skapar en inspirerande miljö för hela teamet. Den generösa mängden dagsljus och det öppna läget ger lokalen en luftig och behaglig atmosfär från första steget in.

Lokalen erbjuder en smart och effektiv planlösning med rumsindelade kontor och ett mötesrum – perfekt för det mindre bolaget som vill arbeta ostört, professionellt och med hög komfort. De strategiskt placerade arbetsrummen ger både fokus och integritet, samtidigt som flödet i lokalen skapar en naturlig koppling mellan arbets- och mötesyta.

Pentry, pausyta, förråd, kopieringsyta och WC/dusch är praktiskt samlade i lokalens kärna, vilket gör vardagen smidig och lättorienterad. Den moderna utformningen och de rena linjerna bidrar till en arbetsmiljö som känns både välkomnande och genomtänkt.

Kom förbi och upplev känslan på plats – varmt välkommen på visning!

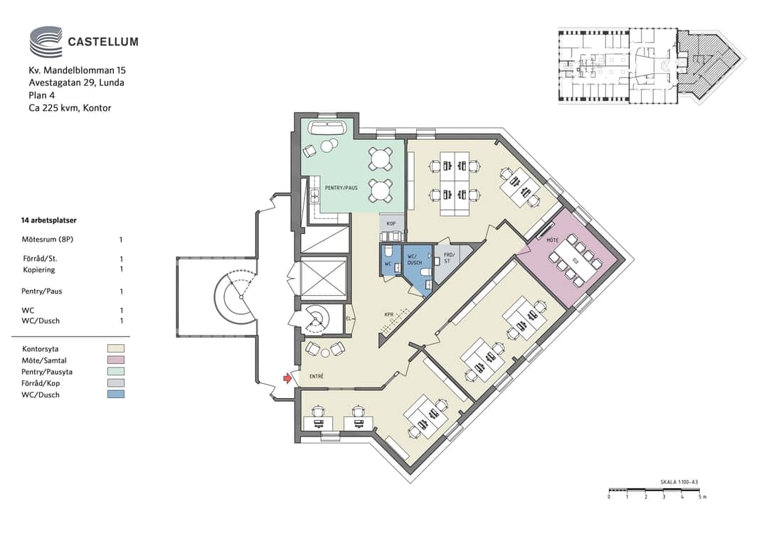
Planlösning

Denna kontorslokal om ca 225 kvm erbjuder en välplanerad och yteffektiv layout anpassad för cirka 14 arbetsplatser. Planlösningen kombinerar öppna arbetsytor med flera avskilda kontorsrum, vilket skapar god flexibilitet för olika arbetssätt och teamkonstellationer.

Entrén leder in till en sammanhängande kontorsyta med fint ljusinsläpp från fönster längs fasaden och ett naturligt flöde mellan arbetsplatser, mötesytor och sociala zoner.

I lokalens centrala del finns ett välutrustat pentry med pausyta, ett mötesrum och ett mindre samtalsrum. Här finns även praktiska serviceytor såsom kopieringsplats, förråd/städutrymme samt både WC och WC med dusch. Dessa funktioner ligger samlade för att skapa en lättorienterad och logisk planlösning.

Helheten ger en trivsam och funktionell arbetsmiljö som passar mindre till medelstora verksamheter som söker ett modernt kontor med bra rumsindelning och effektiv ytanvändning.

Området

Lunda är placerat i nordvästra Stockholm, mellan Barkarby och Spånga. Området har en blandning av bostäder, kontor, logistikfastigheter, samhällsfastigheter såsom utbildning, vård- och omsorg, service och handel. På gångavstånd ligger Spånga och Barkarby Centrum, med en kort bilfärd tar du dig enkelt både till Veddesta Handel och Barkarby Staden med all tänkbar service & handel, IKEA och ett flertal restauranger.
Spånga Sporthall med träningsmöjligheter ligger ett stenkast bort. I närområdet finns även trevliga grönområden.

Kommunikationer

Pendeltåg från Barkarby- eller Spånga station ligger en promenad bort. Bussar från pendeltåg stannar utanför fastigheten. Tunnelbanan till Hjulsta ligger några minuters promenad ifrån.
Det stora lederna E18, E4:an och Bergslagsvägen, ligger i nära anknytning till området, smidigt att ta sig till med fordon. Området kommer att få ett ännu mer attraktivt läge efter att Förbifart Stockholm blir verklighet.

Parkering

Parkeringsplatser finns att hyra intill fastigheten och i området.

Service

Lunda erbjuder ett område med närhet till det mesta!

Fastigheten

Denna kontorsbyggnad uppfördes redan 1950, men genomgick en omfattande ombyggnad 1990.
Fastigheten består av kontor och lager i olika plan. Användningsområdet är idag som kontor, utbildning, vård & omsorg samt viss produktion.

Faciliteter i fastigheten

Parkering

Service i området

Utegym Tåg

Energi & hållbarhet

  • Total energianvändning (2025): 8 kWh/m²
  • Klimatpåverkan: 3,53 kg CO₂e/m² (platsbaserad)

Andra hyresgäster i fastigheten

Stockholms kommun - Mandelblomman 15 - KMH TEAM AB - Stockholms Kommun

Karta

Dokument

Kontaktperson

Uthyrare

Alan Badareh Marofi

Fråga oss!

Nyfiken på den här lokalen? Eller behöver du hjälp att hitta rätt lokal för din verksamhet? Oavsett om du vet exakt vad du söker eller om du behöver rådgivning, så finns vi här och hjälper till.

Vi ser fram emot att höra av dig.

Intresseanmälan

Kontaktinformation

All behandling av personuppgifter sker i enlighet med dataskyddsförordningen och annan dataskyddslagstiftning. Läs mer om GDPR

Liknande lokaler i Stockholm