Gå till huvudinnehåll

Göteborg Centrum

Lilla Bommen 6

Kontor

Yta

682 kvm

Arbetsplatser

25 - 40 st

Så räknar vi antal arbetsplatser

Detta spann är en uppskattning. Det finns flera faktorer som påverkar hur många arbetsplatser som kan rymmas i en lokal. Inte bara storleken på själva lokalen utan även hur den disponeras. Exempelvis kräver en lokal med många enskilda kontor mer plats än öppen planlösning. Andra begränsningar kan vara tillgången på luft och kyla, eller utrymningsvägar.

Tillträdesdatum

Enl. ök.

Våningsplan

5

Attraktivt ljust kontor i toppenläge

Beläget i ett centralt område med närhet till kommunikationer, restauranger och andra bekvämligheter. Detta sparar tid och attraherar både kunder och medarbetare.

Möjligheter att anpassa planlösningen efter verksamhetens behov – öppna landskap, mötesrum eller privata kontor. I dag är det till största delen enskilda kontorsrum. I samband med lokalanpassning eller ombyggnad är vår ambition att använda återbrukat material så långt det är möjligt och vi prioriterar hållbarhet för minsta möjliga miljöpåverkan.

Det är en trevlig miljö i området med närhet till Lilla Bommens hamn och närhet till köpcentrat Nordstan men all tänkbar service i form av handel, livsmedel, restauranger och caféer.

Välkommen att kontakta oss för mer info och visning!

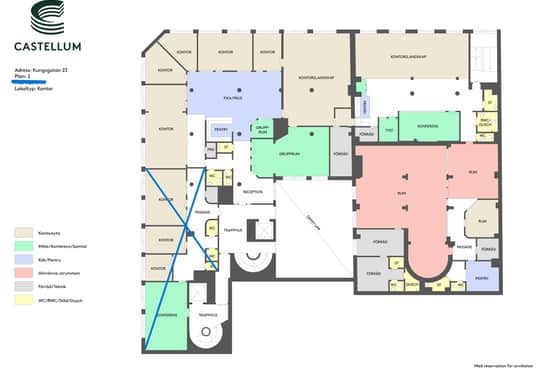
Planlösning

Planlösningen består idag till mesta dels av kontorsrum men går att anpassa efter önskemål.

Området

Det unika vattennära läget mitt i staden, med GöteborgsOperan bara ett stenkast bort och närheten till Centralstationen gör detta till ett av Göteborgs mest attraktiva lägen. Med närhet till restauranger, butiker och andra bekvämligheter blir det enkelt för både medarbetare och kunder att nå din verksamhet. Du har möjligheten att njuta av stadens puls och energi strax utanför dörren.

Smidig access via de stora trafiklederna.

Kommunikationer

Fastigheten ligger i närheten till alla allmänna kommunikationer. På några minuter når du hållplats för buss och spårvagn. Cykelleder finns precis utanför dörren och passagerarbåtarna från Hisingen lägger till vid Lilla Bommens hamn och Stenpiren. Till tågen vid Centralstationen är det några minuters promenad. Där finns även bussterminalen för flygbussar till Landvetter Flygplats samt expressbussar till närområdena kring Göteborg.

Parkering

Garageplatser finns att hyra i byggnaden. Via hissen når man källarplanet där garaget är beläget.

Service

Fastigheten ligger ett stenakst från Nordstan med tillgång till all tänkbar service och butiker som erbjuds i Sveriges tredje största shoppingcenter, Nordstan Affärscentrum.

Fastigheten

Fastighet i åtta våningsplan som består av kontor och ett fåtal butiker. Tegelbyggnad med vissa burspåksfönster.
Garage finns i källarplanet som nås via hiss.
I juni 2022 invigdes Playce, en energisk punkt mitt i Göteborg. En plats för nya möten och inspirerande aktiviteter har vuxit fram mellan husen på Lilla Bommen. Playce är en yta som är till för alla. Det finns gott om sittplatser och trappavsatser att slå sig ner på.

  • Läge
  • Centralt
  • Nära vatten

Faciliteter i fastigheten

Garage Restaurang

Service i området

Buss Tåg Spårvagn

Energi & hållbarhet

  • Certifieringar: BREEAM In-Use, Very Good
  • Total energianvändning (2025): 15 kWh/m²
  • Klimatpåverkan: 2,32 kg CO₂e/m² (platsbaserad)

Andra hyresgäster i fastigheten

Capio Medocular AB - 3bits Consulting AB - Luxoft Sweden AB - Spinverse Sweden AB - Passal AB - CVS Center AB - NEP Sweden AB - dotter t Capio - Beyers Blommor AB - Bohus Sushi AB

Karta

Dokument

Kontaktperson

Uthyrare

Helena Dellborg

Fråga oss!

Nyfiken på den här lokalen? Eller behöver du hjälp att hitta rätt lokal för din verksamhet? Oavsett om du vet exakt vad du söker eller om du behöver rådgivning, så finns vi här och hjälper till.

Vi ser fram emot att höra av dig.

Intresseanmälan

Kontaktinformation

All behandling av personuppgifter sker i enlighet med dataskyddsförordningen och annan dataskyddslagstiftning. Läs mer om GDPR

Ett eget husteam ingår i hyran

Som hyresgäst hos oss får ni ett lokalt husteam som ser till att ni trivs och att allt fungerar som det ska. Vi hjälper till med allt från fastighetsskötsel och energioptimering till skyltning och parkering. Ingen fråga är för stor eller för liten. Och skulle era behov förändras brukar vi alltid kunna erbjuda en lösning, vad det än gäller. Varmt välkommen till en värd bortom det förväntade.

Liknande lokaler i Göteborg