Gå till huvudinnehåll

Göteborg Olskroken

Grönsaksgatan 5

Butik Industri Kontor Lager/Logistik

Hyresindikation

287 000 kr/mån

Detaljerad hyresinformation

Kallhyra i befintligt skick: 1000 kr/kvm
Driftkostnad inkl. el och bevaktning: 228 kr/kvm
Fastighetskatt: 22 kr/kvm

Yta

3 448 kvm

Arbetsplatser

5 - 50 st

Så räknar vi antal arbetsplatser

Detta spann är en uppskattning. Det finns flera faktorer som påverkar hur många arbetsplatser som kan rymmas i en lokal. Inte bara storleken på själva lokalen utan även hur den disponeras. Exempelvis kräver en lokal med många enskilda kontor mer plats än öppen planlösning. Andra begränsningar kan vara tillgången på luft och kyla, eller utrymningsvägar.

Tillträdesdatum

Enl. ök.

Våningsplan

0

Lager eller företagsbutik och kontor i attraktiva Partihallarna

Nu finns möjlighet att hyra en välanpassad och funktionell lokal med ett strategiskt läge i Partihallarna. Lokalen lämpar sig väl för verksamheter inom livsmedel, grossist, logistik eller liknande. Ytan kan även nyttjas för annan lagerverksamhet, helt eller delvis. Idag finns det en port via två lasthus men det är möjligt att sätta in fler portar.

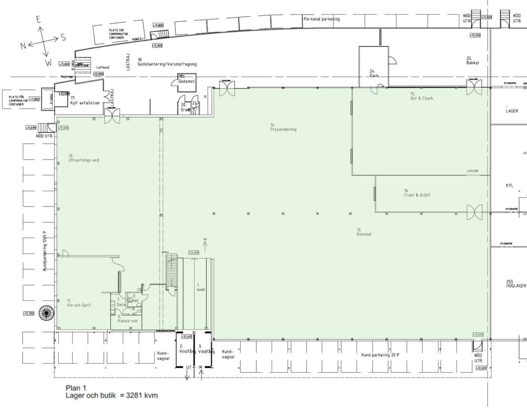
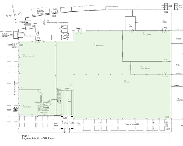
Plan 1 – 3 281 kvm
Här erbjuds generösa lager- och logistikytor kombinerat med företagsbutik, samt kyl- och frysrum. Lokalen har smidig inlastning via två lasthus. Fastighetens detaljplan godkänner försäljning till andra företag (B2B).

Lagret har ca 6 meter i takhöjd.

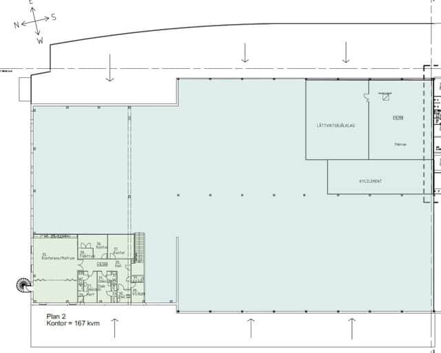
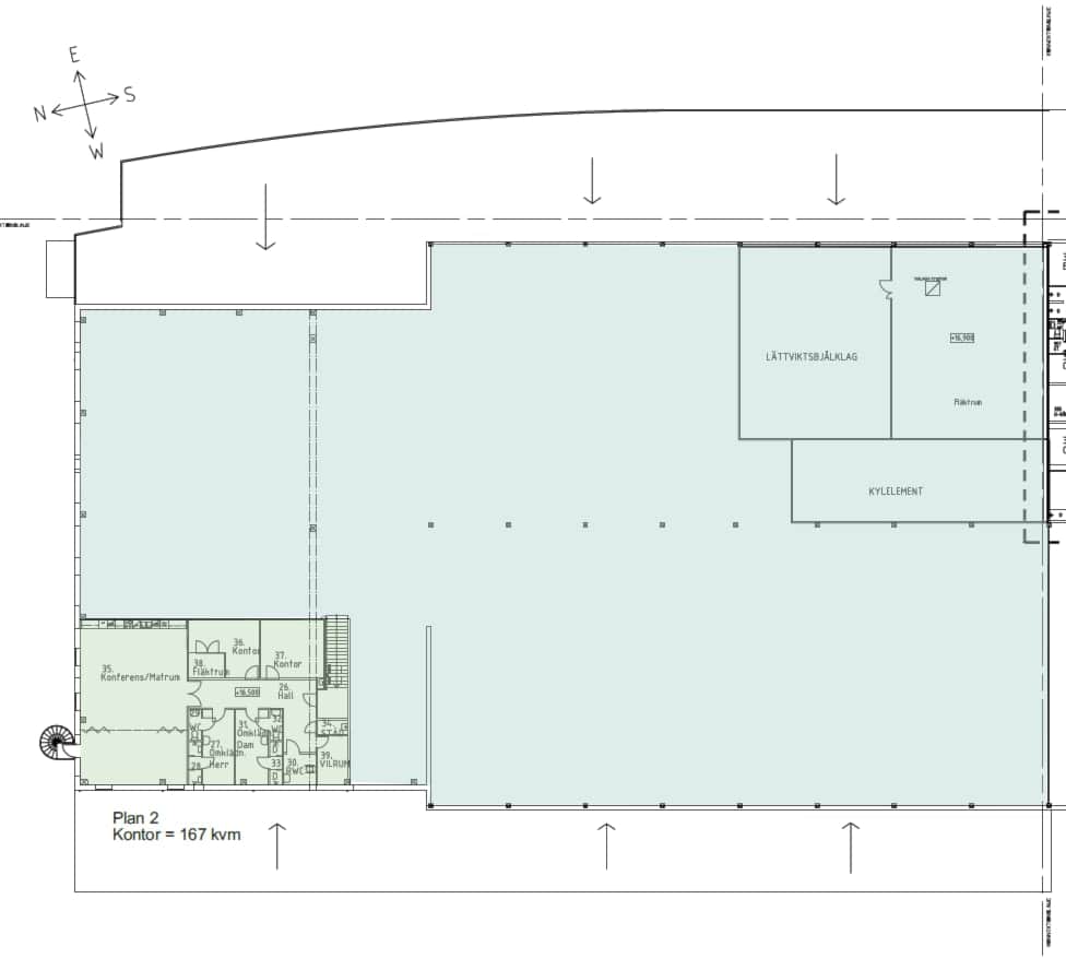
Plan 2 – 167 kvm
Här finns ljusa kontorsytor med god standard, lämpliga för administration, försäljning eller ledning. Det finns även möjlighet att hyra till ytterligare kontorsytor i samma fastighet vid behov.

Välkommen att kontakta oss för mer info och visning!

Planlösning

Plan 1 består av lager, kyl- och frysrum samt företagsbutik samt plan 2 med kontor och omklädningsrum.

Området

Fastigheten ligger mitt i Partihallsområdet. Området består av diverse grossister inom bl.a. grönsaker, frukt, mat samt blommor.

Fastigheten

Fastighet med stort lager och kontor. P-pl finns runt fastigheten.

  • Flexibel yta
  • Effektiv logistik
  • B2B-fokuserad butik

Faciliteter i fastigheten

Omklädningsrum Lastkaj Parkering Skyltläge

Energi & hållbarhet

  • Total energianvändning (2025): 6 kWh/m²
  • Klimatpåverkan: 0,81 kg CO₂e/m² (platsbaserad)

Andra hyresgäster i fastigheten

AB Malte Gustavsson Frukt & Bär

Karta

Dokument

Kontaktperson

Uthyrare

Ylva Brodin

Fråga oss!

Nyfiken på den här lokalen? Eller behöver du hjälp att hitta rätt lokal för din verksamhet? Oavsett om du vet exakt vad du söker eller om du behöver rådgivning, så finns vi här och hjälper till.

Vi ser fram emot att höra av dig.

Intresseanmälan

Kontaktinformation

All behandling av personuppgifter sker i enlighet med dataskyddsförordningen och annan dataskyddslagstiftning. Läs mer om GDPR

Ett eget husteam ingår i hyran

Som hyresgäst hos oss får ni ett lokalt husteam som ser till att ni trivs och att allt fungerar som det ska. Vi hjälper till med allt från fastighetsskötsel och energioptimering till skyltning och parkering. Ingen fråga är för stor eller för liten. Och skulle era behov förändras brukar vi alltid kunna erbjuda en lösning, vad det än gäller. Varmt välkommen till en värd bortom det förväntade.

Liknande lokaler i Göteborg