Gå till huvudinnehåll

Stockholm Kista

Skalholtsgatan 6-8

Kontor

Yta

700 - 7 292 kvm

Arbetsplatser

70 - 600 st

Så räknar vi antal arbetsplatser

Detta spann är en uppskattning. Det finns flera faktorer som påverkar hur många arbetsplatser som kan rymmas i en lokal. Inte bara storleken på själva lokalen utan även hur den disponeras. Exempelvis kräver en lokal med många enskilda kontor mer plats än öppen planlösning. Andra begränsningar kan vara tillgången på luft och kyla, eller utrymningsvägar.

Tillträdesdatum

Enl. ök.

Våningsplan

5

Egen kontorsfastighet med möjlighet till lager alternativt produktionsytor

Här finns möjligheten att etablera er i ett av Stockholms bästa skyltlägen!

Lokalen erbjuder stor flexibilitet för verksamheten och en bra kombination av ytor för såväl logistik som kontor.

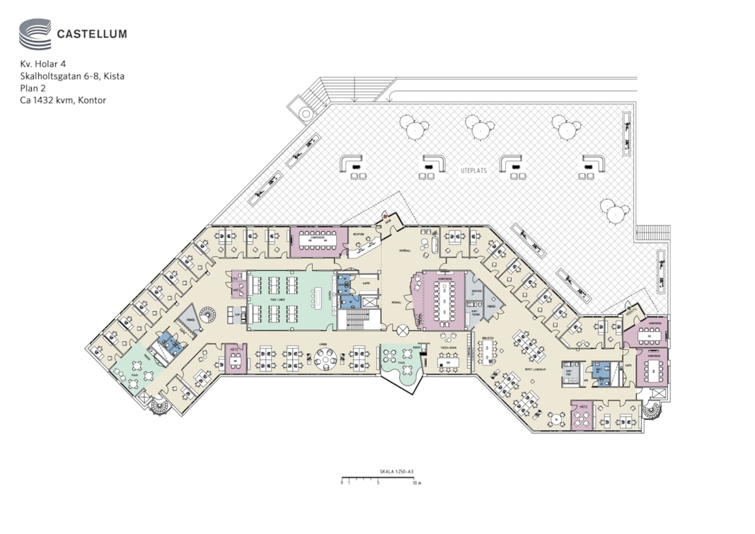
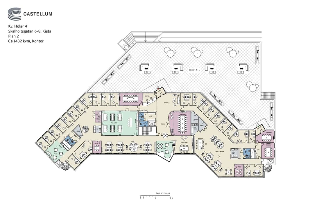
Fastigheten är ca. 7300 kvm fördelat på 5 plan där anpassningsbara och moderna kontorsytor kan erbjudas från plan 2 till plan 5.

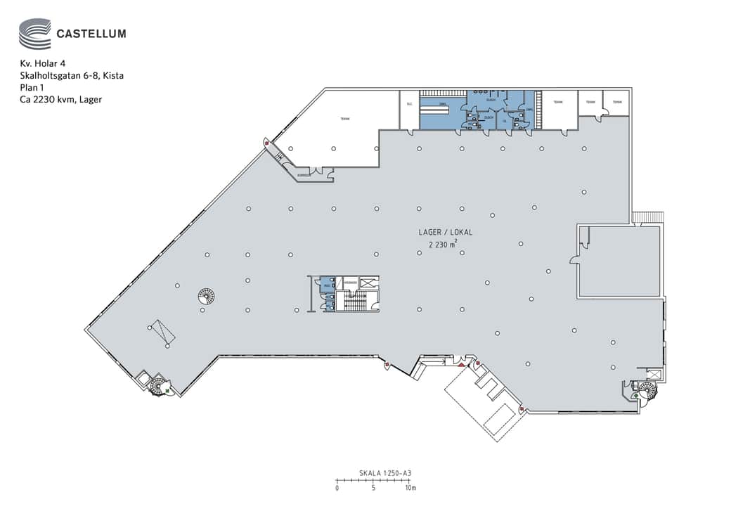
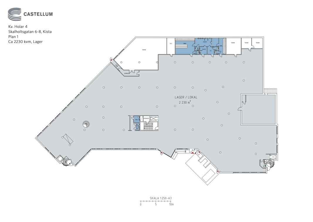
I fastighetens nedre plan finns möjlighet till logistik- alt. produktionsytor upp till 2 400 kvm med egen lastkaj.

Med detta fantastiska läge når ni med enkelhet E18 på ca. 1 min samt E4 inom 3 min.

Låter detta intressant? Hör gärna av er till oss så diskuterar vi hur dessa lokaler kan stödja just er verksamhet.

Varmt välkomna på visning!

Området

Hej, hello, guten tag, ni hao, marhaba. Välkommen till Kista. Platsen där människor från hela världen samlas för att upptäcka, utforska, uppfinna och uppleva. Här testkörs ny teknik, här breder gatukonsten ut sig, här överraskar restaurangerna och här frodas grönska och innovationer, precis som nya förmågor och forskarstjärnor.

Ändå har Kista mer att erbjuda. De närmaste åren kommer stadsdelen få flera tusen nya bostäder och arbetsplatser samt bli en del av tvärbanan, så att livet kan sprudla i varje hörn och under dygnets alla timmar. Och för att ytterligare ta vara på Kistas fulla potential har vi på Castellum gått samman med andra aktörer i ett initiativ som ger stadsdelen en kulturell och social skjuts.

Vad som händer mellan milstolparna är det ingen som vet. Men hör ni hemma bland de nytänkande, är detta platsen för er. Vi lovar att alltid vara på tårna för att hålla jämna steg med både ert företags och Kistas utveckling.

Kommunikationer

Med ett promenadavstånd på 8-10 minuter tar man sig till tunnelbanan och det busstorg som finns. Med vissa busslinjer tar du dig lätt upp till pendeltåget, Helenelunds Station. Om man inte vill ta taxi eller bill till de båda flygplatserna (Bromma samt Arlanda), går flygbussarna genom Kista.

Service

Serviceutbudet är högt då Kista Galleria är en utav de mer välkända Gallerior och ett av de mest välbesökta. Många stora butikskedjor är etablerade här och restaurangutbudet är över förväntan. Är det nöjen man söker rekommenderar vi SF-Bio samt O´learys, som förutom bowling även erbjuder GoCart. Glöm inte heller att besöka det digitala biblioteket som nyligen öppnade.

Fastigheten

Kontorsfastighet

  • 1 min till E18
  • Kontor & logistikytor
  • Bra med parkeringsplatser

Faciliteter i fastigheten

Lastkaj

Service i området

Buss Restaurang Café Tåg Shopping T-bana

Energi & hållbarhet

  • Certifieringar: LEED O+M, Silver
  • Klimatpåverkan: 1,74 kg CO₂e/m² (platsbaserad)

Andra hyresgäster i fastigheten

Tele2 Sverige Aktiebolag - Holar 4

Karta

Dokument

Kontaktperson

Uthyrare

Rolf Marias

Fråga oss!

Nyfiken på den här lokalen? Eller behöver du hjälp att hitta rätt lokal för din verksamhet? Oavsett om du vet exakt vad du söker eller om du behöver rådgivning, så finns vi här och hjälper till.

Vi ser fram emot att höra av dig.

Intresseanmälan

Kontaktinformation

All behandling av personuppgifter sker i enlighet med dataskyddsförordningen och annan dataskyddslagstiftning. Läs mer om GDPR

Ett eget husteam ingår i hyran

Som hyresgäst hos oss får ni ett lokalt husteam som ser till att ni trivs och att allt fungerar som det ska. Vi hjälper till med allt från fastighetsskötsel och energioptimering till skyltning och parkering. Ingen fråga är för stor eller för liten. Och skulle era behov förändras brukar vi alltid kunna erbjuda en lösning, vad det än gäller. Varmt välkommen till en värd bortom det förväntade.

Liknande lokaler i Stockholm