Gå till huvudinnehåll

Stockholm Kista

Borgarfjordsgatan 7

Kontor

Hyresindikation

99 000 kr/mån

Detaljerad hyresinformation

Bashyra

Yta

594 kvm

Tillträdesdatum

Enl. ök.

Kontor högst upp i fastigheten

Välkommen till detta fina och välplanerade kontor!

Här kan gästerna tas emot i en fin och representativ reception.

Som hyresgäst får ni härliga öppna ytor med generöst ljusinsläpp.

Välkommen på visning!

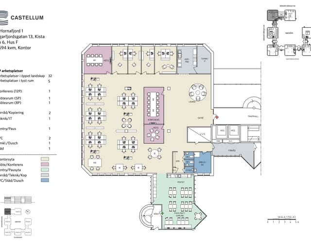
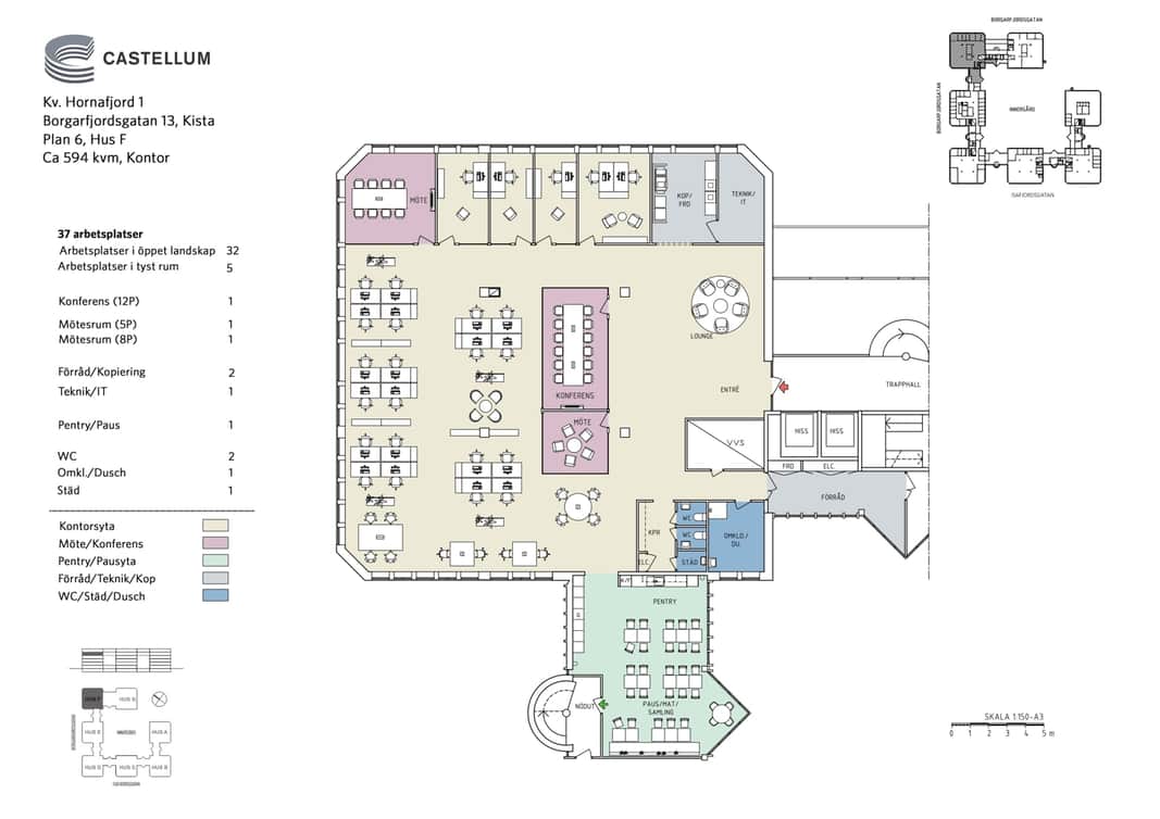
Planlösning

Planlösningen består av ett öppet kontorslandskap med flera mötesrum, arbetsplatser och sociala ytor samlade kring en central zon för samarbete. I anslutning finns även pentry, pausytor och stödutrymmen som förråd, teknikrum och hygienutrymmen.

Området

Hej, hello, guten tag, ni hao, marhaba. Välkommen till Kista. Platsen där människor från hela världen samlas för att upptäcka, utforska, uppfinna och uppleva. Här testkörs ny teknik, här breder gatukonsten ut sig, här överraskar restaurangerna och här frodas grönska och innovationer, precis som nya förmågor och forskarstjärnor.

Ändå har Kista mer att erbjuda. De närmaste åren kommer stadsdelen få flera tusen nya bostäder och arbetsplatser samt bli en del av tvärbanan, så att livet kan sprudla i varje hörn och under dygnets alla timmar. Och för att ytterligare ta vara på Kistas fulla potential har vi på Castellum gått samman med andra aktörer i ett initiativ som ger stadsdelen en kulturell och social skjuts.

Vad som händer mellan milstolparna är det ingen som vet. Men hör ni hemma bland de nytänkande, är detta platsen för er. Vi lovar att alltid vara på tårna för att hålla jämna steg med både ert företags och Kistas utveckling.

Kommunikationer

Från fastigheten till tunnelbanan tar det 2-3 minuter att promenera. Flera busslinjer går genom området, även en buss som tar dig lätt upp till Pendeltågsstationen Helenelund. Till Arlanda och Bromma tar man sig både med taxi, flygbussar eller Pendeltåg (Arlanda). Kista är svårslaget om man vill sitta i ett område med bra kommunikationer.
Snart kommer även Tvärbanan att korsa Kista. Den byggs ut från Norra Ulvsunda via Bromma flygplats, Kista och vidare till Helenelund. Kistagrenen ger möjlighet till smarta byten till tunnelbana, pendeltåg och bussar.

Service

Kista Galleria erbjuder all den service man kan tänka sig och är en av Stockholms mest välbesökta Gallerior. Allt från shopping, restauranger och olika nöjesaktiviteter erbjuds. För den biosugne erbjuder SF en fin och ombygg biograf. Gillar man racing erbjuder O'Learys, förutom bowling även GoCart. Många välkända märken som H&M, KappAhl, Nilsson Shoes, Vero Moda, Indiska mfl finns etablerade här.

Fastigheten

En fin och välrenoverad kontorsfastighet om ca 23 000 kvm med en trevlig utemiljö och flertalet entréer. Intill fastigheten ligger det populära Memory Hotel. Parkering erbjuds i garage och utomhus.

  • Ljus lokal
  • Blandad planlösnig

Faciliteter i fastigheten

Parkering Garage

Service i området

Buss Parkering Restaurang Café Shopping T-bana

Energi & hållbarhet

  • Certifieringar: LEED O+M, Gold
  • Total energianvändning (2025): 21 kWh/m²
  • Klimatpåverkan: 3,21 kg CO₂e/m² (platsbaserad)

Andra hyresgäster i fastigheten

BYA - Flowbird Sverige AB - Jobbtorg Stockholm - Prevas - Däckia AB - KYOCERA Document Solutions Nordic AB - Firstcom Europe Voip och Dist - AB Individkraft - Zebra Technologies AB - Karvas Biltvätt AB - AB IPS Alarm Direct - Nextron AS, Filial Sverige - Smart Solutions M.S AB - Astimex Pharma AB - Vironova AB Konkurs

Karta

Dokument

Kontaktperson

Uthyrare

Rolf Marias

Fråga oss!

Nyfiken på den här lokalen? Eller behöver du hjälp att hitta rätt lokal för din verksamhet? Oavsett om du vet exakt vad du söker eller om du behöver rådgivning, så finns vi här och hjälper till.

Vi ser fram emot att höra av dig.

Intresseanmälan

Kontaktinformation

All behandling av personuppgifter sker i enlighet med dataskyddsförordningen och annan dataskyddslagstiftning. Läs mer om GDPR

Liknande lokaler i Stockholm