Gå till huvudinnehåll

Göteborg Högsbo/Sisjön

Järnbrotts Prästväg 2

Kontor

Hyresindikation

66 000 kr/mån

Detaljerad hyresinformation

Indikativ hyra: 1300 kr/kvm

Tillkommande kostnader
Driftkostnad: 245 kr/kvm
Fastighetshatt: 54 kr/kvm
Verksamhetsel tillkommer
Moms om 25% tillkommer på samtliga kostnader

Yta

608 kvm

Arbetsplatser

20 - 45 st

Så räknar vi antal arbetsplatser

Detta spann är en uppskattning. Det finns flera faktorer som påverkar hur många arbetsplatser som kan rymmas i en lokal. Inte bara storleken på själva lokalen utan även hur den disponeras. Exempelvis kräver en lokal med många enskilda kontor mer plats än öppen planlösning. Andra begränsningar kan vara tillgången på luft och kyla, eller utrymningsvägar.

Tillträdesdatum

Enl. ök.

Våningsplan

1

Stor och flexibel kontorslokal med konferensrum och nyrenoverade ytskikt inför inflytt

Bilder på lokalen kommer inom kort!

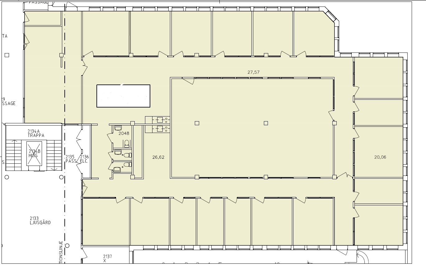
Välkommen till en rymlig lokal om 608 kvm på Järnbrotts Prästväg 2, med stor flexibilitet att anpassa planlösningen efter just era behov. Lokalen erbjuder möjligheter till både öppna kontorsytor, separata kontorsrum och tysta arbetszoner – allt utformat för att skapa en effektiv och trivsam arbetsmiljö.

Inför inflytt kommer lokalen genomgå en renovering med uppfräschning av samtliga ytskikt, vilket ger en modern och fräsch känsla från dag ett. Den generösa ytan och den flexibla planlösningen gör detta till en lokal som kan formas helt efter verksamhetens krav och önskemål.

Planlösning

Lokalen erbjuder en flexibel och välplanerad planlösning med många separata rum, perfekt för kontor, mötesrum eller tysta arbetszoner. Vill ni ändra detta till större kontorslandskap, är vi välkomna för det.
Här finns även ett stort konferensrum ger goda möjligheter för utbildningar, presentationer eller större möten samt tillgång till 3 wc:n.

Vi bygger ett nytt pentry för att skapa en modern och funktionell samlingspunkt för paus och lunch.
Lokalen kommer genomgå en renovering med uppfräschning av samtliga ytskikt, vilket ger en fräsch och inbjudande arbetsmiljö.

Området

Fastigheten ligger i stadsdelen Järnbrott i hjärtat av Västra Frölunda. I omgivningen finns bostadsområden, två välbesökta köpcentrum och bra kommunikationer.

En kort promenad bort finns livliga Frölunda centrum.
Där hittar du bland annat ett köpcentrum med en mängd olika butiker, gym, apotek, postombud, systembolag, caféer och restauranger.

Kommunikationer

Härifrån har du nära till flera kommunikationsnav. Det tar fem minuter att gå till den nya knutpunkten för bussar i Järnbrott.
I närheten finns även knutpunkterna Frölunda Torg och Marklandsgatan. Det är enkelt att ta sig hit med bil också eftersom både Söderleden och Dag Hammarskjöldsleden ligger nära byggnaden.

Service

I byggnaden ligger uppskattade lunchrestaurangen Kockar & Kastruller som lagar husmanskost med mycket hjärta.
I källaren finns ett gym med bastu och omklädningsrum som är tillgängligt för alla hyresgäster.
I fastigheten finns det möjlighet att hyra olika konferensrum i olika storlekar som går att hyra. Antingen heldag eller halvdagar. De går även att beställa till fika och catering.
I entrén har vi en receptionstjänst under dagtid, där du kan få hjälp med post,felanmälan , nycklar och konferensbokningar.

Fastigheten

Kontorsfastighet i Järnbrotts bästa läge!
Fastigheten erbjuder en modern och bekväm arbetsmiljö med ett brett utbud av service direkt i huset, smidigt tillgängligt via vår receptionstjänst. Här får hyresgästerna stöd i vardagen och en professionell första kontakt för besökare.

I hjärtat av byggnaden finns en ny, ljus och inbjudande ljusgård som erbjuder en naturlig mötesplats för både spontana samtal och bokade möten. Den passar lika bra för en avkopplande fika som för inspirerande arbetsstunder i en trivsam miljö.

Som en extra förmån ingår även tillgång till ett gym med bastu för alla hyresgäster och konferensmöjligheter för allt mellan 16-50 personer.

  • Flexibel planlösning
  • Stort konferensrum
  • Nyrenoverad inför inflytt

Faciliteter i fastigheten

Motionsrum Sopsortering Omklädningsrum Café Paketbox Uteplats Parkering Reception Skyltläge Konferensservice Restaurang Skyltfönster Gym

Service i området

Buss Parkering Restaurang Café Gym

Energi & hållbarhet

  • Total energianvändning (2025): 20 kWh/m²
  • Klimatpåverkan: 4 kg CO₂e/m² (platsbaserad)

Andra hyresgäster i fastigheten

Stiftelsen Ebba Petterssons Privatskola - LSS-Konsult AB - Restaurang Kockar och Kastruller AB - Samordningsförbundet Göteborg - Marlink AB - Taxi Göteborg Ekonomisk Förening - DS Smith Packaging - Rimab Facility Service AB - Wesmans Scandinavia AB - InfraCom Managed Services AB - Energiprojekt E&S AB - iLab Medical AB - Claes-Göran Svensson Invest AB - Gynius Plus AB - Castellum Väst Aktiebolag - EON Development AB - Taxinet Sverige AB

Karta

Dokument

Kontaktperson

Uthyrare

Denise Ström

Fråga oss!

Nyfiken på den här lokalen? Eller behöver du hjälp att hitta rätt lokal för din verksamhet? Oavsett om du vet exakt vad du söker eller om du behöver rådgivning, så finns vi här och hjälper till.

Vi ser fram emot att höra av dig.

Intresseanmälan

Kontaktinformation

All behandling av personuppgifter sker i enlighet med dataskyddsförordningen och annan dataskyddslagstiftning. Läs mer om GDPR

Liknande lokaler i Göteborg