Gå till huvudinnehåll

Stockholm Kista

Kistagången 20B

Kontor

Yta

450 kvm

Arbetsplatser

20 - 37 st

Så räknar vi antal arbetsplatser

Detta spann är en uppskattning. Det finns flera faktorer som påverkar hur många arbetsplatser som kan rymmas i en lokal. Inte bara storleken på själva lokalen utan även hur den disponeras. Exempelvis kräver en lokal med många enskilda kontor mer plats än öppen planlösning. Andra begränsningar kan vara tillgången på luft och kyla, eller utrymningsvägar.

Tillträdesdatum

Enl. ök.

Modern kontorslokal med eget lastintag

Välkommen till en modern och flexibel kontorslokal i vårt populära Kista One – ett av Kistas mest attraktiva kontorshus. Här erbjuds en ljus och rymlig yta på plan 3 med generöst dagsljus från två väderstreck, vilket skapar en trivsam och inspirerande arbetsmiljö. En unik fördel är det egna lastintaget som leder direkt in i lokalen, perfekt för verksamheter med behov av smidiga leveranser och logistiklösningar.
Planlösningen kombinerar öppet landskap med flera mötes- och samtalsrum, ett stort pentry och välplacerade stödfunktioner som förråd och serverrum – allt utformat för att stödja både effektivt teamwork och ostört fokusarbete.
I fastighetens bottenplan finns ett brett serviceutbud med restauranger, gemensam reception och tillgång till mötesrum. Strax intill ligger Kista Galleria, där ni har all tänkbar service, restauranger och utmärkta kommunikationer direkt runt hörnet.
Lokalen kan självklart anpassas helt efter era behov, önskemål och framtida arbetssätt.
Varmt välkomna att boka visning – vi hjälper er gärna att hitta er nästa kontorslösning i Kista One!

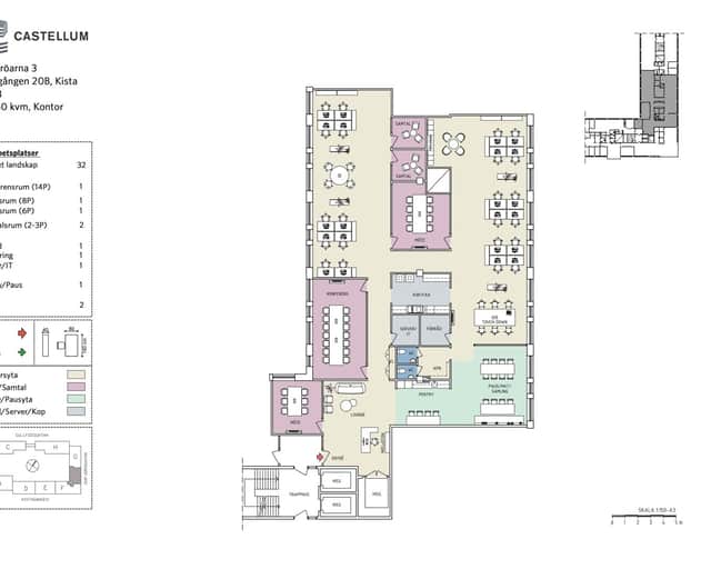
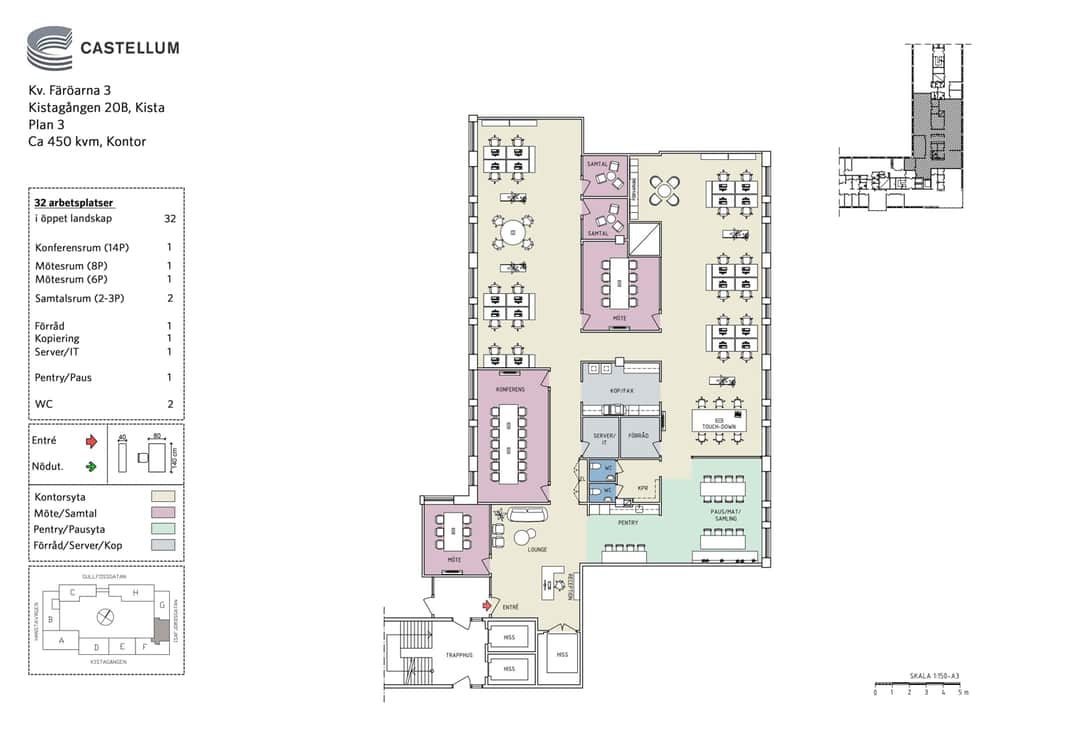
Planlösning

Denna välplanerade kontorslokal om cirka 450 kvm erbjuder en modern arbetsmiljö med fokus på funktion, flöde och trivsel. Här finns 32 arbetsplatser i ett luftigt öppet landskap med generöst ljusinsläpp från fasadens stora fönster. Lokalen kompletteras av flera mötesrum i olika storlekar – från mindre samtalsrum till ett större konferensrum – vilket skapar goda förutsättningar för både samarbete och ostört arbete. Centralt i lokalen finns ett rymligt pentry med tillhörande pausytor och lounge, perfekta för informella möten och återhämtning. Effektiv ytdisponering med server- och kopieringsrum samlade i nära anslutning till arbetsplatserna bidrar till en smidig vardag. Entré och kommunikationer är strategiskt placerade för att skapa en välkomnande och lättnavigerad miljö. Sammantaget en flexibel och genomtänkt lokal som stödjer ett modernt och hållbart arbetssätt.

Området

Välkommen till Kista. Platsen där människor från hela världen samlas för att upptäcka, utforska, uppfinna och uppleva. Här testkörs ny teknik, här breder gatukonsten ut sig, här överraskar restaurangerna och här frodas grönska och innovationer, precis som nya förmågor och forskarstjärnor.

Ändå har Kista mer att erbjuda. De närmaste åren kommer stadsdelen få flera tusen nya bostäder och arbetsplatser samt bli en del av tvärbanan, så att livet kan sprudla i varje hörn och under dygnets alla timmar. Och för att ytterligare ta vara på Kistas fulla potential har vi på Castellum gått samman med andra aktörer i ett initiativ som ger stadsdelen en kulturell och social skjuts.

Vad som händer mellan milstolparna är det ingen som vet. Men hör ni hemma bland de nytänkande, är detta platsen för er. Vi lovar att alltid vara på tårna för att hålla jämna steg med både ert företags och Kistas utveckling.

Kommunikationer

Kista är svårslaget om man vill sitta i ett område med bra kommunikationer. Det tar 3 minuter att promenera från fastigheten till Kista tunnelbanestation. Flera busslinjer går genom området, bland annat buss 523 och 178 som stannar vid pendeltågsstationen Helenelund. Du tar dig till Arlanda och Bromma flygplats med pendeltåg eller flygbuss. Snart kommer även Tvärbanan att korsa Kista. Just nu byggs den ut från Norra Ulvsunda via Bromma flygplats till Ursvik för att sedan fortsätta till Kista och Helenelund.

Service

Som hyresgäst på Kista One får du tillgång till en rad olika tjänster som förenklar vardagen för dig och dina kollegor. De två bemannade receptionerna vid huvudentréerna erbjuder receptionsservice och uthyrning av gemensamma konferensrum. Ett fullt utrustat fastighetsgym som drivs av Motion Studios är öppet för samtliga hyresgäster. Garage och separat cykelrum finns i fastigheten och hissar går direkt mellan de olika planen. Där finns laddningsstationer för elbilar och elcyklar tillsammans med tryckluft för pumpning av däck. I garaget erbjuds också biltvätt med service.

Kista One erbjuder nu ett nytt gym och en rad andra bekvämligheter för hyresgästerna – allt för att underlätta och höja vardagsupplevelsen i fastigheten.

En kort promenad från fastigheten ligger Kista Galleria. Den är en av Stockholms mest välbesökta gallerior och har ett stort utbud av shopping, restauranger och nöjesaktiviteter - bland annat bowling, bio och gokart.

Fastigheten

Fastigheten Kista One är platsen för alla. Vi erbjuder en rad olika kontorslösningar med ett serviceutbud som innehåller allt ett företag behöver. Med två bemannade receptioner och fyra konferensrum, som drivs av teamet på I Know A Guy, sträcker sig vår service från effektiv posthantering till professionell eventplanering, och såklart allt där emellan!

På innergården har vi skapat en inbjudande miljö med mängder av sittplatser, en terrass och massor av grönytor. Dessutom har Fastigheten Kista One investerat i hållbarhet. Med en solcellsanläggning, geoanläggning och en egen biodling strävar vi mot att minska vår påverkan på miljön. Vår fastighet är stolt certifierad som LEED Gold, vilket understryker vårt engagemang för hållbarhet och miljöansvar.

  • Närhet till service och kommunikationer
  • Lastintag direkt in i lokalen.

Faciliteter i fastigheten

Lastkaj Elbilsladdning Reception

Service i området

T-bana

Energi & hållbarhet

  • Certifieringar: LEED New Construction, Gold
  • Total energianvändning (2025): 35 kWh/m²
  • Klimatpåverkan: 0,27 kg CO₂e/m² (platsbaserad)

Andra hyresgäster i fastigheten

Excillum AB - ACO Hud Nordic AB - Regus - Cellmax Technologies AB - Signify Sweden AB - Sigma Connectivity WSI AB - Pirelli Tyre Nordic Aktiebolag - Wind River AB - Joyweek - Grenkeleasing AB - Responda Group AB - Synoptik - Tillmobil i Norden AB - Analog Devices AB - Mama Mia - MACOM - Hamilton Nordic AB - Comfort-Kedjan AB - Akkodis Edge Sweden AB - TeraSi AB - Nefab Aktiebolag - Castellum Stockholm AB - Din Vårdcentral i Stockholm AB - Bitlog Nordic AB - Init Sweden AB - Sunway Communication AB - ResMed Sweden AB - T2 Data Aktiebolag - Altegra Consulting AB - Microchip Technology Sweden AB - Photomate Scandinavia AB - Retail 24 - Excedo Networks AB - Global House AB - Swereco AB - VFS Global Sweden AB - Nordic Bulkers AB - Innophase IoT AB - Holy Greens AB - Bramsburgers AB - Audika AB - Färöarna 3 - Molex Sweden - Intersurgical AB - Ugglan Dental

Karta

Dokument

Kontaktperson

Uthyrare

Jessica Andrée

Fråga oss!

Nyfiken på den här lokalen? Eller behöver du hjälp att hitta rätt lokal för din verksamhet? Oavsett om du vet exakt vad du söker eller om du behöver rådgivning, så finns vi här och hjälper till.

Vi ser fram emot att höra av dig.

Intresseanmälan

Kontaktinformation

All behandling av personuppgifter sker i enlighet med dataskyddsförordningen och annan dataskyddslagstiftning. Läs mer om GDPR

Liknande lokaler i Stockholm