Gå till huvudinnehåll

Östersund Centrala Östersund

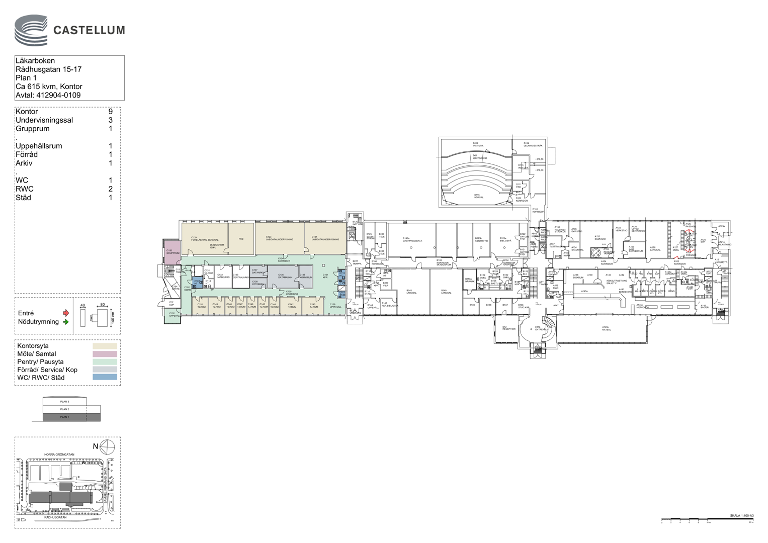
Rådhusgatan 15

Kontor

Yta

615 kvm

Arbetsplatser

40 - 80 st

Så räknar vi antal arbetsplatser

Detta spann är en uppskattning. Det finns flera faktorer som påverkar hur många arbetsplatser som kan rymmas i en lokal. Inte bara storleken på själva lokalen utan även hur den disponeras. Exempelvis kräver en lokal med många enskilda kontor mer plats än öppen planlösning. Andra begränsningar kan vara tillgången på luft och kyla, eller utrymningsvägar.

Tillträdesdatum

Enl. ök.

Våningsplan

1

Lokal för utbildning eller kontor

Kontor/ utbildningslokal i markplan. Lokalen består av både kontor och utbildningslokaler i form av lärosalar, lokalen är även möjlig att dela av till två separata lokaler. Egen parkering finns i anslutning till fastigheten. Tillgång till gemensamt omkl.rum med tillhörande bastu. Byggnaden ligger inom 1 minuts avstånd till centrala Östersund med tillgång till butiker och restauranger.

Området

Fastigheten ligger i ett centralt men avskilt läge. Hyresgäster är blan annat CGI, Skanska AB, Ramböll AB, Lernia AB samt Hellström & Hjelm Revision AB.

Kommunikationer

Samtliga stadsbussar passerar Kyrkgatan ett kvarter från fastigheten. Parkering finns inom fastigheten.

Service

I huset finns en lunchrestaurang. Fastigheten är belägen två kvarter från Östersunds gågata med all tänkbar service.

Fastigheten

Byggnaden uppfördes 1974 och har genom åren genomgått ombyggnationer i samråd med sittande hyresgäster. Huset består av tre huskroppar sammanfogade med gemensamma trapphus. Norra halvan av fastigheten utgörs av parkeringsyta. Fastigheten har ett mycket gott skyltläge och det finns en skyltpelare längs Rådhusgatan med möjlighet till skyltning. För skyltar på fasad söker varje enskild hyresgäst bygglov för i samråd med hyresvärden.

  • Centralt beläget
  • Parkering
  • Möjlighet till bastu och omklädning

Energi & hållbarhet

  • Total energianvändning (2025): 48 kWh/m²
  • Klimatpåverkan: 0,91 kg CO₂e/m² (platsbaserad)

Andra hyresgäster i fastigheten

CGI Sverige AB - Läkarboken 5 - Hellström & Hjelm Revision AB - Jämtlands Gymnasieförbund - Läkarboken 5 - Skanska Sverige AB - Läkarboken 5 - Ramboll Sweden AB - Läkarboken 5 - Lernia Utbildning AB - Astar AB - Läkarboken 5

Karta

Dokument

Kontaktperson

Affärsområdeschef Östersund

Per Englund

Fråga oss!

Nyfiken på den här lokalen? Eller behöver du hjälp att hitta rätt lokal för din verksamhet? Oavsett om du vet exakt vad du söker eller om du behöver rådgivning, så finns vi här och hjälper till.

Vi ser fram emot att höra av dig.

Intresseanmälan

Kontaktinformation

All behandling av personuppgifter sker i enlighet med dataskyddsförordningen och annan dataskyddslagstiftning. Läs mer om GDPR

Liknande lokaler i Östersund