Gå till huvudinnehåll

Stockholm Kungsholmen

Warfvinges väg 31

Kontor

Yta

1 216 kvm

Arbetsplatser

70 - 106 st

Så räknar vi antal arbetsplatser

Detta spann är en uppskattning. Det finns flera faktorer som påverkar hur många arbetsplatser som kan rymmas i en lokal. Inte bara storleken på själva lokalen utan även hur den disponeras. Exempelvis kräver en lokal med många enskilda kontor mer plats än öppen planlösning. Andra begränsningar kan vara tillgången på luft och kyla, eller utrymningsvägar.

Tillträdesdatum

Enl. ök.

Det du söker hittar du här!

Ibland händer det! Nu kan detta fantastiska kontor för 70 - 90 arbetsplatser bli ditt.

Ett kontor med hög standard i en LEED guld certifierad fastighet. Ni kommer sitta i ett nav av god service i form av gym, matbutiker, ett flertal restauranger. I fastigheten finns även Eatery som förser er med ett bra utbud av frukost, lunch och catering.

Fina promenadstråk längs vattnet i Hornsbergstrand och Kungsholms strand. Här är det enkelt att skapa värde för både företag och medarbetare.

Hit tar du dig både med buss som stannar bara några meter från fastigheten, Stadshagens tunnelbanestation samt bil via E20. På bara 15 minuters promenad är ni vid Fridhemsplan som erbjuder ytterligare service samt 10 min bussresa till Hornstull.

Vill du skapa en arbetsplats att längta till? Behöver du hjälp att utforma ditt framtida kontor?
Ta gärna hjälp av oss på Castellum! Vi har nycklarna för att utforma en hållbar och attraktiv arbetsplats, där medarbetarna mår bra och presterar på topp.

Välkommen på visning!

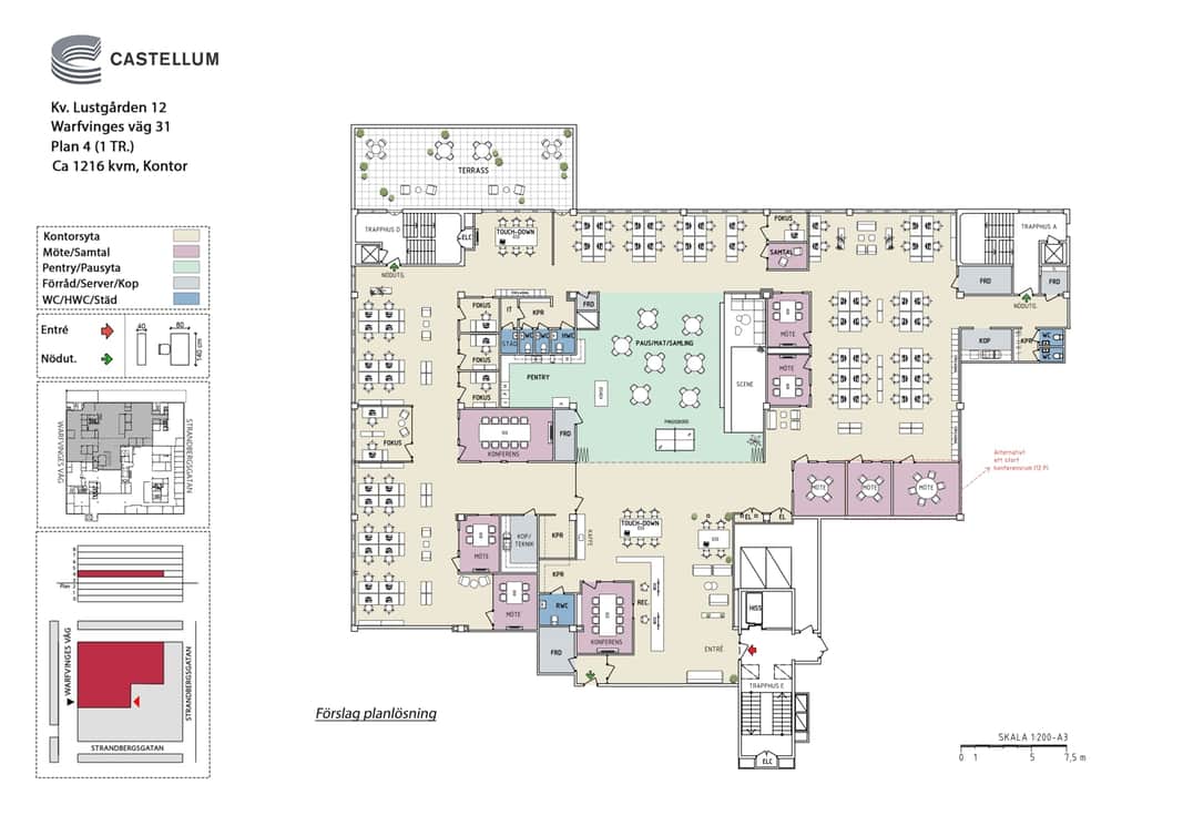
Planlösning

NO:
En modern och öppen kontorsyta sträcker sig längs med fasaden medan mötesrum och sociala ytor ligger mer centralt i lokalen. Pentry- och pausutrymme finns mitt i lokalen med en scen som kan passa till samlingar. Vid entrén finns en reception med loungeyta och kaffestation. Lokalen har åtta mötesrum samt touchdown-platser och några fokusrum utspridda i lokalen. Praktiska utrymmen som teknikrum, förråd etc. finns även lättillgängligt i lokalen.

Området

Kungsholmen är idag en pulserande stadsdel i ständig utveckling. Det som en gång var ett industriområde har förvandlats till en modern blandstad där bostäder, arbetsplatser, idrottshallar, butiker och restauranger samsas längs livliga gator.

Samtidigt har områdets unika parkytor och strandpromenader varsamt bevarats och förädlats, vilket ger Kungsholmen sin speciella charm. Resultatet är en levande stadsdel som förenar historia och nutid, perfekt anpassad för dagens behov.

Kommunikationer

Området är vältrafikerat med flera busslinjer som passerar i närheten. För dig som pendlar med den gröna tunnelbanelinjen ligger Fridhemsplan, Thorildsplan och Kristineberg på bekvämt promenadavstånd.

Cykelpendlare kan dra nytta av de väl utbyggda cykelbanorna i området. Fastigheten har dessutom ett utmärkt läge vid Essingeleden, med smidiga på- och avfarter i både norr- och södergående riktning.

Parkering

Det finns gott om garageplatser i fastigheten och området. Är du intresserad? Kontakta Corepark på telefonnummer 08-650 02 15.

Fastigheten

Kontorsbyggnaden uppfördes 1948 som garage- och industrilokal för Bilägarnas Inköpscentral, föregångaren till OK. Byggnadens ursprungliga kvaliteter lever kvar än idag och präglar de ljusa och flexibla kontorslokalerna.

Fastigheten erbjuder ett brett serviceutbud, inklusive restaurang, garage med biluthyrning, biltvätt, gym och frisör. För cyklister finns bekvämligheter i form av gemensamma cykelrum och omklädningsrum, vilket gör pendlingen smidigare och enklare.

  • Goda kommunikationer
  • Moderna och ljusa lokaler
  • Restaurang i huset

Faciliteter i fastigheten

Cykelrum Garage Restaurang

Service i området

Buss Gym

Energi & hållbarhet

  • Certifieringar: LEED O+M, Gold
  • Total energianvändning (2025): 29 kWh/m²
  • Klimatpåverkan: 4,55 kg CO₂e/m² (platsbaserad)

Andra hyresgäster i fastigheten

Kungsholmens Kontorshotell AB - Designgymnasiet i Sverige AB - Eatery - Framtiden i Sverige AB - DOiNC AB - Kemakta Konsult AB - Reed & Mackay Sverige AB - Molöf Bygg AB - Hermes Medical Solutions AB - Strategia Projektledning AB - TeleTornet Sales AB - Newsafe Sweden AB - Svenska Hem Bygg & Entreprenad AB - Pokayoke AB - Kungsholmens träningsklubb AB - Pricka AB - NC Network Construction AB - Hertz - Castellum - Zanna Frisör Studie AB - Dynamite Carwash AB - Vaktmästeriet Företagsservice i Sthlm AB - Rimbo Hus AB - Byggmontage Forsell AB - Cloudberry Care AB - Framtiden

Karta

Dokument

Kontaktperson

Uthyrare

Hannah Karlöf

Fråga oss!

Nyfiken på den här lokalen? Eller behöver du hjälp att hitta rätt lokal för din verksamhet? Oavsett om du vet exakt vad du söker eller om du behöver rådgivning, så finns vi här och hjälper till.

Vi ser fram emot att höra av dig.

Intresseanmälan

Kontaktinformation

All behandling av personuppgifter sker i enlighet med dataskyddsförordningen och annan dataskyddslagstiftning. Läs mer om GDPR

Liknande lokaler i Stockholm