Gå till huvudinnehåll

Stockholm Spånga

Avestagatan 29

Kontor

Yta

110 - 2 600 kvm

Tillträdesdatum

Enl. ök.

Våningsplan

4

Lokal för utbildning eller vård- med närhet till pendeltåget

På Avestagatan 29, nära Spånga pendeltågsstation, finns denna flexibla lokal, fördelad på två plan med möjligheter för anpassning efter just ert verksamhetsbehov.

Lokalen lämpar sig utmärkt för vuxenutbildning eller vårdverksamhet, som till exempel rehabilitering. Byggnadens stora fönster och ljusgård skapar en ljus och inbjudande arbetsmiljö.

Observera att de interiöra bilderna i annonsen är E-stylade (digitalt möblerade) för att illustrera hur lokalen kan användas.

Välkommen på visning!

Planlösning

Fastigheten på Avestagatan 29 erbjuder en flexibel och sammanhängande lokalyta om flera plan, med goda möjligheter till uppdelning eller samutnyttjande mellan verksamheter.

Plan 0 (källarplan), ca 100 kvm – Lager
På källarplanet finns en lageryta med tillhörande förråd och sluss. Ytan nås via trapphus och lämpar sig väl för arkiv, materialförvaring eller stödytor till kontorsverksamheten.

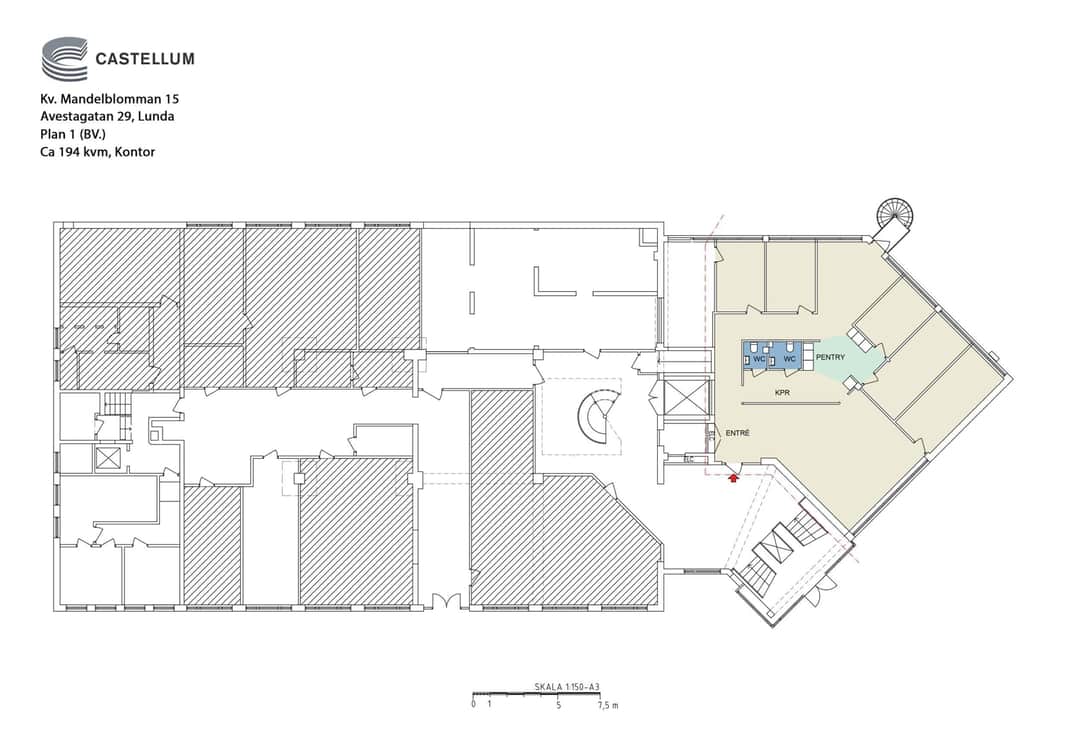
Plan 1 (BV), ca 194 kvm – Kontor
Entréplanet inrymmer kontorsytor med rum i varierande storlek. Här finns entré, pentry, WC-grupper samt kommunikationsytor som knyter samman planet med övriga delar av byggnaden. Planlösningen lämpar sig för både cellkontor och mindre team.

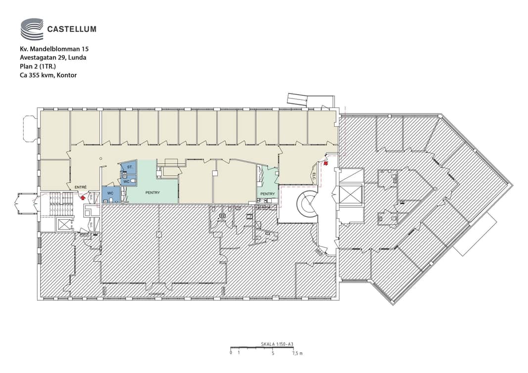
Plan 2 (1 tr), ca 355 kvm – Kontor
Detta plan består huvudsakligen av kontorsrum längs fasad med god tillgång till dagsljus. Centralt placerade pentryn och WC-grupper skapar funktionella flöden. Planet kan anpassas för en sammanhängande verksamhet eller delas upp vid behov.

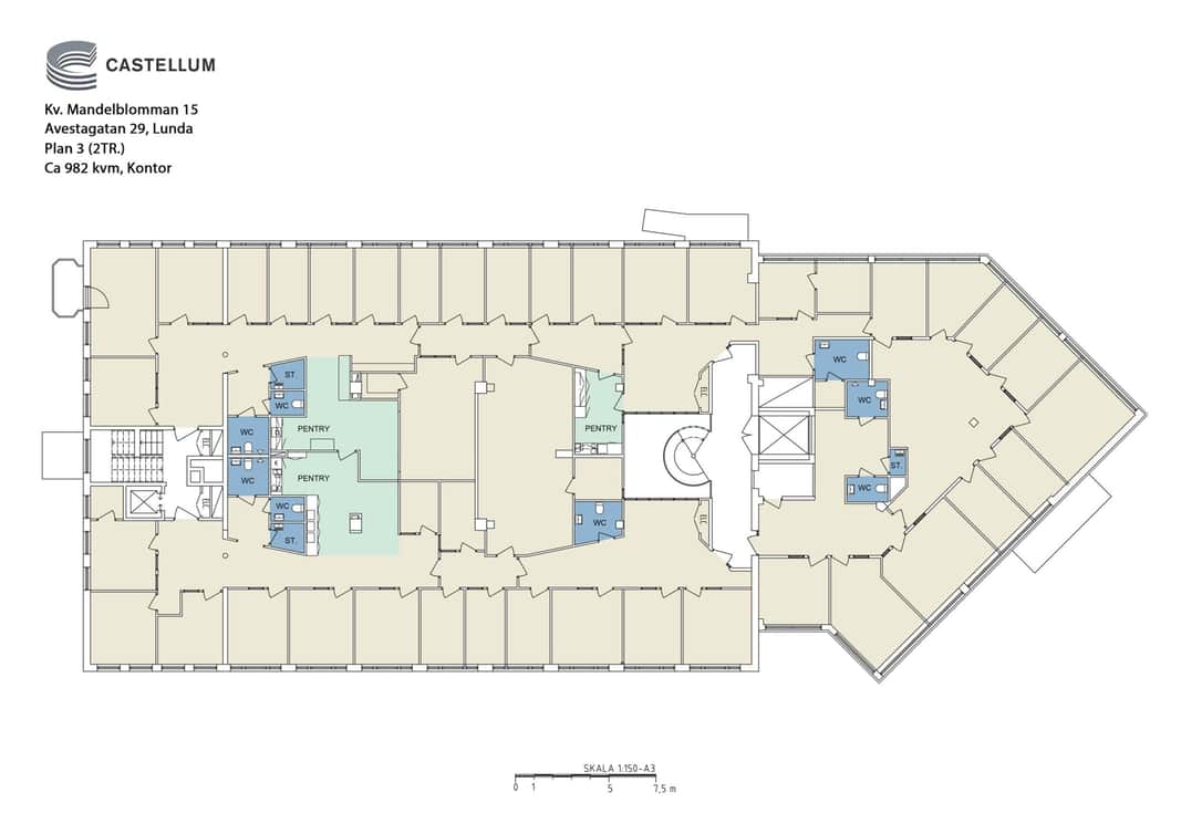
Plan 3 (2 tr), ca 982 kvm – Kontor
Ett större kontorsplan med generösa ytor, flera pentryn och WC-grupper. Planlösningen ger möjlighet till både öppna kontorslandskap och rumsindelade lösningar. Lämpligt för större organisationer eller utbildningsverksamhet.

Plan 4 (3 tr), ca 867 kvm – Kontor
Översta planet erbjuder ytterligare rymliga kontorsytor med liknande struktur som plan 3. Flera pentryn och WC-grupper finns strategiskt placerade. Ytan lämpar sig väl för huvudkontor, utbildning eller kombinerad kontors- och mötesverksamhet.

Området

Lunda är placerat i nordvästra Stockholm, mellan Barkarby och Spånga. Området har en blandning av bostäder, kontor, logistikfastigheter, samhällsfastigheter såsom utbildning, vård- och omsorg, service och handel. På gångavstånd ligger Spånga och Barkarby Centrum, med en kort bilfärd tar du dig enkelt både till Veddesta Handel och Barkarby Staden med all tänkbar service & handel, IKEA och ett flertal restauranger.
Spånga Sporthall med träningsmöjligheter ligger ett stenkast bort. I närområdet finns även trevliga grönområden.

Kommunikationer

Pendeltåg från Barkarby- eller Spånga station ligger en promenad bort. Bussar från pendeltåg stannar utanför fastigheten. Tunnelbanan till Hjulsta ligger några minuters promenad ifrån.
Det stora lederna E18, E4:an och Bergslagsvägen, ligger i nära anknytning till området, smidigt att ta sig till med fordon. Området kommer att få ett ännu mer attraktivt läge efter att Förbifart Stockholm blir verklighet.

Parkering

Parkeringsplatser finns att hyra intill fastigheten och i området.

Service

Lunda erbjuder ett område med närhet till det mesta!

Fastigheten

Denna kontorsbyggnad uppfördes redan 1950, men genomgick en omfattande ombyggnad 1990.
Fastigheten består av kontor och lager i olika plan. Användningsområdet är idag som kontor, utbildning, vård & omsorg samt viss produktion.

  • Perfekt för utbildning
  • Goda kommunikationer

Faciliteter i fastigheten

Parkering

Service i området

Tåg

Energi & hållbarhet

  • Total energianvändning (2025): 8 kWh/m²
  • Klimatpåverkan: 3,53 kg CO₂e/m² (platsbaserad)

Andra hyresgäster i fastigheten

Stockholms kommun - Mandelblomman 15 - KMH TEAM AB - Stockholms Kommun

Karta

Dokument

Kontaktperson

Uthyrare

Alan Badareh Marofi

Fråga oss!

Nyfiken på den här lokalen? Eller behöver du hjälp att hitta rätt lokal för din verksamhet? Oavsett om du vet exakt vad du söker eller om du behöver rådgivning, så finns vi här och hjälper till.

Vi ser fram emot att höra av dig.

Intresseanmälan

Kontaktinformation

All behandling av personuppgifter sker i enlighet med dataskyddsförordningen och annan dataskyddslagstiftning. Läs mer om GDPR

Liknande lokaler i Stockholm