Gå till huvudinnehåll

Stockholm Upplands Väsby

Jupitervägen 2

Industri Lager/Logistik

Yta

10 556 kvm

Tillträdesdatum

Enl. ök.

Modern och flexibel logistik- och industrilokal i Upplands Väsby – 10 556 kvm

Letar ni efter en rymlig, funktionell och strategiskt belägen lokal för logistik, lättindustri, handel eller kontor? På Jupitervägen 2 i Upplands Väsby erbjuds nu en anläggning på hela 10 556 kvm med alla förutsättningar för att stödja en effektiv och modern verksamhet.

Lokalfakta & fördelar

- Optimala logistiklösningar: Lokalen är utrustad med lasthus och markportar för smidiga in- och utlastningar.

- Goda rangerytor: Stora uppställningsytor för lastbilar och transporter underlättar den dagliga driften.

- Höglager med volym: En imponerande takhöjd på 8,90 meter ger goda lagringsmöjligheter och flexibilitet.

- Starkt golv: Lagergolv med bärighet om 2 ton/m².

- Robust infrastruktur: Elkapacitet om 800 A ger er möjligheter att driva energikrävande verksamheter.

Kostnadseffektiv drift:

- Värme: 52 kr/kvm/år

- El och vatten: 95 kr/kvm/år

Användningsområden

Lokalen lämpar sig för en rad olika verksamheter, bland annat:

- Tung industri

- Handel och distribution

- Kontorsverksamhet kopplat till logistik eller produktion


Upplands Väsby erbjuder ett strategiskt läge i norra Storstockholm med närhet till E4:an, Arlanda och goda kommunikationer in mot centrala Stockholm. Detta ger både logistikfördelar och enkel tillgänglighet för personal och kunder.

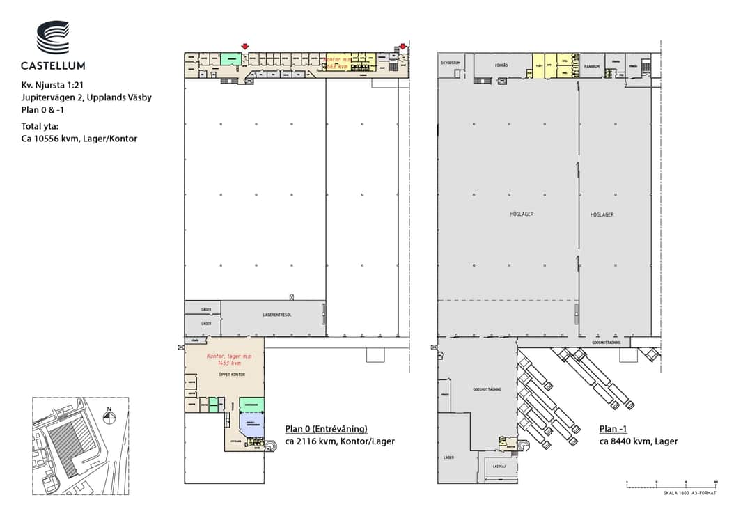
Planlösning

Planritningen visar en kombination av kontors- och lagerlokaler där entréplanet rymmer kontorsrum, personalutrymmen och en mindre lagerdel som ansluter direkt till de större lagerytorna. På det nedre planet finns den huvudsakliga lagerverksamheten med stora sammanhängande ytor, lastzoner och logistikutrymmen som möjliggör effektiv hantering och flöden

Fastigheten

Fastigheten ligger i Njursta industriområde ca 7 minuter från E4:an.

  • Lasthus
  • Markport
  • God bärighet

Faciliteter i fastigheten

Parkering

Energi & hållbarhet

  • Total energianvändning (2025): 4 kWh/m²
  • Klimatpåverkan: 0,1 kg CO₂e/m² (platsbaserad)

Karta

Dokument

Kontaktperson

Uthyrare

Alan Badareh Marofi

Fråga oss!

Nyfiken på den här lokalen? Eller behöver du hjälp att hitta rätt lokal för din verksamhet? Oavsett om du vet exakt vad du söker eller om du behöver rådgivning, så finns vi här och hjälper till.

Vi ser fram emot att höra av dig.

Intresseanmälan

Kontaktinformation

All behandling av personuppgifter sker i enlighet med dataskyddsförordningen och annan dataskyddslagstiftning. Läs mer om GDPR

Liknande lokaler i Stockholm