Gå till huvudinnehåll

Borås Centrum

Norrby Långgata 18

Industri Kontor Lager/Logistik

Yta

2 687 kvm

Arbetsplatser

10 - 30 st

Så räknar vi antal arbetsplatser

Detta spann är en uppskattning. Det finns flera faktorer som påverkar hur många arbetsplatser som kan rymmas i en lokal. Inte bara storleken på själva lokalen utan även hur den disponeras. Exempelvis kräver en lokal med många enskilda kontor mer plats än öppen planlösning. Andra begränsningar kan vara tillgången på luft och kyla, eller utrymningsvägar.

Tillträdesdatum

2027-02-01

Våningsplan

4

Flexibel kontors- och lagerlokal i centralt läge!

Nu har du chansen att hyra en mångsidig lokal som kombinerar funktion och logistik – mitt i centrum. Här får du en lösning för företag inom service, varuhantering, e-handel eller lättare lagerverksamhet som vill samla allt under ett och samma tak.
Lokalen erbjuder en planlösning med både kontorsytor och lagerdel. Kontorsdelen rymmer enskilda rum, större öppna kontor samt konferensrum och mindre mötesrum – perfekt för både fokuserat arbete och samarbete. Har du en trivsam arbetsmiljö.
För logistik och lagerhantering finns goda in- och utlastningsmöjligheter via både markplan, lastbrygga och lasthiss vilket underlättar den dagliga driften. Lagerdelen har en takhöjd om ca 2,50 meter.
Två stycken omklädningsrum med duschar finns i anslutning till lagerdelen samt en bastu.
Ytan är fördelad över två våningsplan med interna trappor i både kontors- och lagerdelen – en genomtänkt lösning som skapar ett bra flöde i verksamheten.
Här får du en flexibel och komplett lokal med stora möjligheter att anpassa efter just ditt företags behov.
Kontakta oss redan idag för mer information eller för att boka en visning!

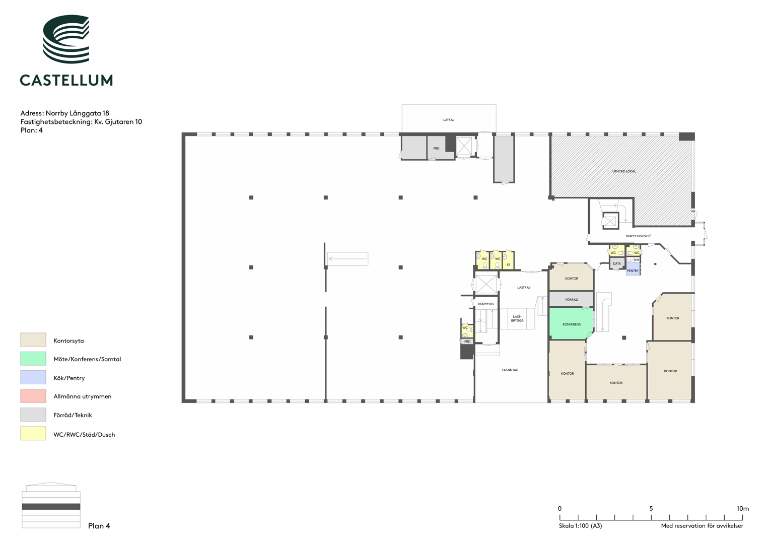
Planlösning

Stora lagerytor samt kontorsdelar med både öppna ytor och kontorsrum. Lokalen är födelad mellan två våningsplan. In- och utlastning via både markport och lastbrygga samt lasthiss.

Kommunikationer

På 5 minuters promenadavstånd når man Resecentrum / Centralstationen.

Parkering

Parkeringsplatser finns i anslutning till fastigheten och allmän parkering ligger ett stenkast därifrån.

Service

Nära till lunchrestauranger och livsmedelsbutiker.

Fastigheten

Mycket eftertraktat läge i Borås centrum endast 5 min promenad till absoluta city med dess utbud.

  • Centralt läge
  • Port och lastbrygga
  • Skyltläge

Faciliteter i fastigheten

Lastport Lastkaj Parkering Skyltläge

Service i området

Resecentrum Buss Parkering Restaurang Café

Energi & hållbarhet

  • Total energianvändning (2025): 7 kWh/m²
  • Klimatpåverkan: 3,04 kg CO₂e/m² (platsbaserad)

Andra hyresgäster i fastigheten

Bording AB - Medborgarskolan Region Väst - AU Utbildning AB - Georgsson Mail AB - Kultur-och idrottsföreningen Dardania - Dance Movement Borås - Arbetslivsresurs AR AB - Kolego AB - Åhman & Partner Redovisning i Borås AB - Securitas Sverige Aktiebolag

Karta

Dokument

Kontaktperson

Uthyrare

Erik Williamson

Fråga oss!

Nyfiken på den här lokalen? Eller behöver du hjälp att hitta rätt lokal för din verksamhet? Oavsett om du vet exakt vad du söker eller om du behöver rådgivning, så finns vi här och hjälper till.

Vi ser fram emot att höra av dig.

Intresseanmälan

Kontaktinformation

All behandling av personuppgifter sker i enlighet med dataskyddsförordningen och annan dataskyddslagstiftning. Läs mer om GDPR

Liknande lokaler i Borås