Gå till huvudinnehåll

Göteborg Centrum

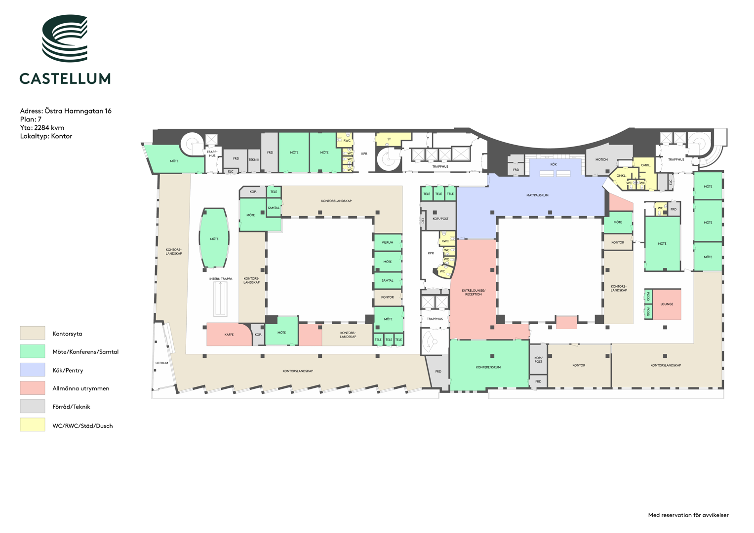
Östra Hamngatan 16

Kontor Nyproduktion

Yta

3 442 kvm

Arbetsplatser

150 - 250 st

Så räknar vi antal arbetsplatser

Detta spann är en uppskattning. Det finns flera faktorer som påverkar hur många arbetsplatser som kan rymmas i en lokal. Inte bara storleken på själva lokalen utan även hur den disponeras. Exempelvis kräver en lokal med många enskilda kontor mer plats än öppen planlösning. Andra begränsningar kan vara tillgången på luft och kyla, eller utrymningsvägar.

Tillträdesdatum

Enl. ök.

Våningsplan

7

Modernt kontor med en arbetsmiljö i två plan, härlig utsikt och terrass!

Välkommen till ett unikt kontorsutrymme som kombinerar stilren design och funktionalitet! Detta kontor, fördelat på två plan, erbjuder en smart och inbjudande planlösning med ett generöst ljusinsläpp som skapar en inspirerande arbetsmiljö. Det finns stora öppna arbetsytor samt mindre kontorsrum. Den tillhörande terrassen ger utrymme för avkoppling och kreativa möten utomhus. Utsikten mot GöteborgsOperan och hamnen är oslagbar!

Beläget på en av Göteborgs bästa adresser har du nära till allt! Omgiven av butiker, lunchrestauranger, caféer och annan service i Nordstan köpcentrum och kollektivtrafik får du tillgång till allt som gör din arbetsdag smidigare och mer bekväm.

Välkommen att kontakta oss för mer info och visning!

Planlösning

Stora öppna arbetsytor blandat med mindre kontorsrum.

Området

Läget på Östra Hamngatan 16 är oslagbart. Beläget mitt i hjärtat av Göteborg har du tillgång till allt du behöver inom bekvämt avstånd. Med närhet till kollektivtrafik, restauranger, butiker och andra bekvämligheter blir det enkelt för både medarbetare och kunder att nå din verksamhet. Dessutom har du möjligheten att njuta av stadens puls och energi direkt utanför dörren.

Kommunikationer

Fastigheten ligger mitt i knutpunkten för alla allmänna kommunikationer. Buss, spårvagn och cykelleder finns precis utanför dörren, passagerarbåtarna från Hisingen lägger till vid Lilla Bommens hamn och Stenpiren. Till tågen vid Centralstationen är det några minuters promenad. Där finns även bussterminalen för flygbussar till Landvetter Flygplats samt expressbussar till närområdena kring Göteborg.

Parkering

Nordstans parkeringshus är granne med fastigheten.

Service

Fastigheten ligger i Nordstan med tillgång till all tänkbar service och butiker som erbjuds i Sveriges tredje största shoppingcenter, Nordstan Affärscentrum.

Fastigheten

Fastighet i sex våningsplan som består av kontor och butiker.
Under 2016 genomgick fastigheten genomgripande renovering och fick en rejäl ansiktslyftning. Utvändigt har huset fått en helt ny karaktär med en ny glasfasad samtidigt som husets entréer lyfts.

  • Utsikt
  • City
  • Kollektivtrafik

Faciliteter i fastigheten

Cykelrum Elbilsladdning Reception Garage

Service i området

Buss Tåg Spårvagn

Energi & hållbarhet

  • Certifieringar: Miljöbyggnad nyproduktion, Silver
  • Total energianvändning (2025): 24 kWh/m²
  • Klimatpåverkan: 2 kg CO₂e/m² (platsbaserad)

Karta

Dokument

Kontaktperson

Uthyrare

Helena Dellborg

Fråga oss!

Nyfiken på den här lokalen? Eller behöver du hjälp att hitta rätt lokal för din verksamhet? Oavsett om du vet exakt vad du söker eller om du behöver rådgivning, så finns vi här och hjälper till.

Vi ser fram emot att höra av dig.

Intresseanmälan

Kontaktinformation

All behandling av personuppgifter sker i enlighet med dataskyddsförordningen och annan dataskyddslagstiftning. Läs mer om GDPR

Liknande lokaler i Göteborg